7677 CLOVERDELL DRIVE, Pinson, AL 35126
Local realty services provided by:ERA Waldrop Real Estate
Listed by: chris hicks
Office: hicks realty llc.
MLS#:21443974
Source:AL_BAMLS
Price summary
- Price:$390,000
- Price per sq. ft.:$220.71
About this home
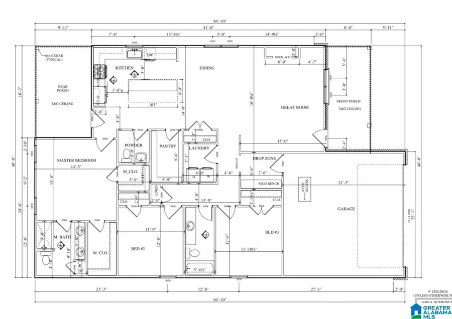
Under construction! This 3BR/2.5BA home offers approx. 1,767± sq ft with a well-designed open layout. The kitchen flows into the dining area and great room, creating an inviting space for everyday living and entertaining. The private primary suite features a spacious bath and walk-in closet. Bedrooms 2 and 3 share a full bath and are thoughtfully positioned for privacy. Additional highlights include a powder room, laundry room, drop zone, covered front porch, rear porch, and 2-car garage. Still time to select some finishes. Great opportunity to own new construction!
Contact an agent
Home facts
- Year built:2026
- Listing ID #:21443974
- Added:45 day(s) ago
- Updated:April 05, 2026 at 02:27 PM
Rooms and interior
- Bedrooms:3
- Total bathrooms:3
- Full bathrooms:2
- Half bathrooms:1
- Flooring:Hardwood Laminate, Tile Floor
- Dining Description:Dining Room
- Bathrooms Description:Separate Shower, Separate Vanities, Tub/Shower Combo
- Kitchen Description:Dishwasher Built-In, Island, Microwave Built-In, Pantry, Stone Counter, Stove-Gas
- Bedroom Description:Split Bedrooms, Walk-In Closets
- Living area:1,767 sq. ft.
Heating and cooling
- Cooling:Central
- Heating:Central
Structure and exterior
- Year built:2026
- Building area:1,767 sq. ft.
- Lot area:0.57 Acres
- Construction Materials:Brick Over Foundation, Siding-Hardiplank
- Exterior Features:Covered Deck, Porch
- Foundation Description:Crawl Space
- Levels:1 Story
Schools
- High school:CLAY-CHALKVILLE
- Middle school:CLAY-CHALKVILLE
- Elementary school:CLAY
Utilities
- Water:Public Water
- Sewer:Septic
Finances and disclosures
- Price:$390,000
- Price per sq. ft.:$220.71
Features and amenities
- Appliances:Dishwasher Built-In, Microwave Built-In, Stove - Gas
- Laundry features:Dryer-Electric, Laundry in Middle Level, Washer Hookup
- Amenities:Pull-Down Attic, Smooth Ceilings
Parking
- Parking description:Attached, Driveway Parking, Parking (MLVL)
- Garage spaces:2
New listings near 7677 CLOVERDELL DRIVE
- New
$100,000Active2 beds 1 baths816 sq. ft.9410 OLD TENNESSEE PIKE ROAD, Pinson, AL 35126
MLS# 21448774Listed by: REALTYSOUTH-ONEONTA/BLOUNT CO - New
$215,000Active3 beds 2 baths1,525 sq. ft.6473 CLAY PALMERDALE ROAD, Pinson, AL 35126
MLS# 21448747Listed by: KELLER WILLIAMS HOMEWOOD - New
$240,000Active3 beds 2 baths1,815 sq. ft.4133 MAIN STREET, Pinson, AL 35126
MLS# 21448685Listed by: NORLUXE REALTY BIRMINGHAM LLC - New
$299,900Active4 beds 2 baths3,246 sq. ft.4874 HACKBERRY CIRCLE, Pinson, AL 35126
MLS# 21448433Listed by: KELLER WILLIAMS - New
$195,000Active3 beds 2 baths1,321 sq. ft.6813 SAN MOORE DRIVE, Pinson, AL 35126
MLS# 21448361Listed by: EXP REALTY, LLC CENTRAL - New
$340,000Active4 beds 3 baths2,269 sq. ft.5096 GOLD LEAF LANE, Pinson, AL 35126
MLS# 21448398Listed by: REALTYSOUTH-OTM-ACTON RD - New
$259,000Active3 beds 2 baths1,697 sq. ft.6333 YELLOWHAMMER DRIVE, Pinson, AL 35126
MLS# 21448205Listed by: REALTYSOUTH-TRUSSVILLE OFFICE - New
$249,900Active3 beds 3 baths2,005 sq. ft.7386 WHITNEY DRIVE, Pinson, AL 35126
MLS# 21448114Listed by: KELLER WILLIAMS REALTY HOOVER - New
$299,900Active3 beds 2 baths1,610 sq. ft.5934 SHILO RUN, Pinson, AL 35126
MLS# 21448071Listed by: REALTYSOUTH-TRUSSVILLE OFFICE - New
$240,000Active3 beds 2 baths1,826 sq. ft.9295 WHIPPOORWILL LANE, Pinson, AL 35126
MLS# 21448068Listed by: EXIT REALTY SOUTHERN SELECT