208 Aberina Street #H, Hot Springs, AR 71913
Local realty services provided by:ERA Doty Real Estate
208 Aberina Street #H,Hot Springs, AR 71913
$200,000
- 2 Beds
- 2 Baths
- 1,048 sq. ft.
- Townhouse
- Active
Listed by: kent dover
Office: cbrpm hot springs
MLS#:26010199
Source:AR_CARMLS
Price summary
- Price:$200,000
- Price per sq. ft.:$190.84
- Monthly HOA dues:$433
About this home
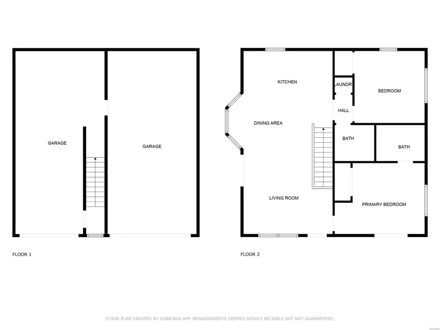
Exceptional 2-bed, 2-bath condo in gated Buena Vista with 1,048 sq ft of thoughtfully designed living space. Enjoy complete privacy—NO shared walls, a rare condo feature. Unique two-story layout with ground-floor garage and elevated living. Vaulted ceilings create an airy ambiance in the living room. The kitchen offers granite countertops, a functional island, and ample cabinetry. The spacious primary suite includes a private bath, and the second bedroom adapts to your lifestyle—guest room, office, or creative space. Step onto your private deck and take in serene Lake Hamilton views. Built in 2006, the home features a low-maintenance stucco exterior, blending curb appeal with durability. Buena Vista’s resort-style amenities include a sparkling pool, manicured lawns, and secure gated entry. Enjoy peaceful lakeside living with quick access to top shopping, dining, outdoor recreation, and Oaklawn Racing Casino.
Contact an agent
Home facts
- Year built:2006
- Listing ID #:26010199
- Added:53 day(s) ago
- Updated:May 10, 2026 at 02:36 PM
Rooms and interior
- Bedrooms:2
- Total bathrooms:2
- Full bathrooms:2
- Flooring:Carpet, Tile
- Dining Description:Breakfast Bar, Living/Dining Combo
- Kitchen Description:Dishwasher, Electric Range, Free-Standing Stove, Ice Maker Connection, Microwave
- Bedroom Description:2 Bedrooms Same Level
- Living area:1,048 sq. ft.
Heating and cooling
- Cooling:Central Cool-Electric
Structure and exterior
- Roof:Composition
- Year built:2006
- Building area:1,048 sq. ft.
- Lot Features:In Subdivision, Level
- Architectural Style:Townhouse, Traditional
- Construction Materials:Stucco
- Exterior Features:Deck
- Foundation Description:Slab
- Levels:2 Stories
Schools
- High school:Hot Springs
- Middle school:Hot Springs
- Elementary school:Hot Springs
Utilities
- Water:Water-Public
- Sewer:Sewer-Public
Finances and disclosures
- Price:$200,000
- Price per sq. ft.:$190.84
- Tax amount:$875 (2025)
Features and amenities
- Appliances:Dishwasher, Electric Range, Free-Standing Stove, Ice Maker Connection, Microwave
- Laundry features:Dryer Connection-Electric, Laundry Room, Washer Connection
- Amenities:Gated Entrance, Picnic Area, Sheet Rock, Tray Ceiling, Vault Ceiling
- Pool features:Swimming Pool(s)
Parking
- Parking description:Garage, Two Car
New listings near 208 Aberina Street #H
- New
$475,000Active3 beds 4 baths3,506 sq. ft.201 Green Willow Lane, Hot Springs, AR 71913
MLS# 26018731Listed by: CBRPM GROUP - New
$79,000Active2 AcresAddress Withheld By Seller, Hot Springs, AR 71913
MLS# 26018705Listed by: MCGRAW REALTORS - HS - New
$599,900Active4 beds 3 baths2,780 sq. ft.532 C6 Grand Point Drive, Hot Springs, AR 71901
MLS# 26018666Listed by: CENTURY 21 PARKER & SCROGGINS REALTY - BRYANT - New
$448,000Active4 beds 2 baths2,617 sq. ft.102 Raintree Court, Hot Springs, AR 71901
MLS# 26018648Listed by: IREALTY ARKANSAS - LR - New
$236,000Active0.49 Acres109 Bayshore Cove, Hot Springs, AR 71901
MLS# 26018642Listed by: LAKE HAMILTON REALTY, INC. - New
$2,900,000Active5 beds 6 baths4,607 sq. ft.1531 Marion Anderson Road, Hot Springs, AR 71913
MLS# 155411Listed by: ESQ. REALTY GROUP - New
$1,100,000Active66.87 Acres000 Park Avenue, Hot Springs, AR 71901
MLS# 155412Listed by: ESQ. REALTY GROUP - New
$320,000Active3 beds 2 baths1,960 sq. ft.203 Chase Place, Hot Springs, AR 71901
MLS# 26018617Listed by: WHITE STONE REAL ESTATE - New
$479,900Active2 beds 2 baths1,308 sq. ft.200 Hamilton Oaks Drive #M-1, Hot Springs, AR 71913
MLS# 26018472Listed by: TRADEMARK REAL ESTATE, INC. - New
$25,000Active0.4 Acres103 Wedgewood Terrace, Hot Springs, AR 71901
MLS# 26018616Listed by: MCGRAW REALTORS - HS