5309 Orchard Pass, Jonesboro, AR 72404
Local realty services provided by:ERA Doty Real Estate
5309 Orchard Pass,Jonesboro, AR 72404
$224,900
- 4 Beds
- 2 Baths
- 1,470 sq. ft.
- Single family
- Active
Listed by: jennifer owens
Office: lennar realty
MLS#:10128626
Source:AR_JBOR
Price summary
- Price:$224,900
- Price per sq. ft.:$152.99
About this home
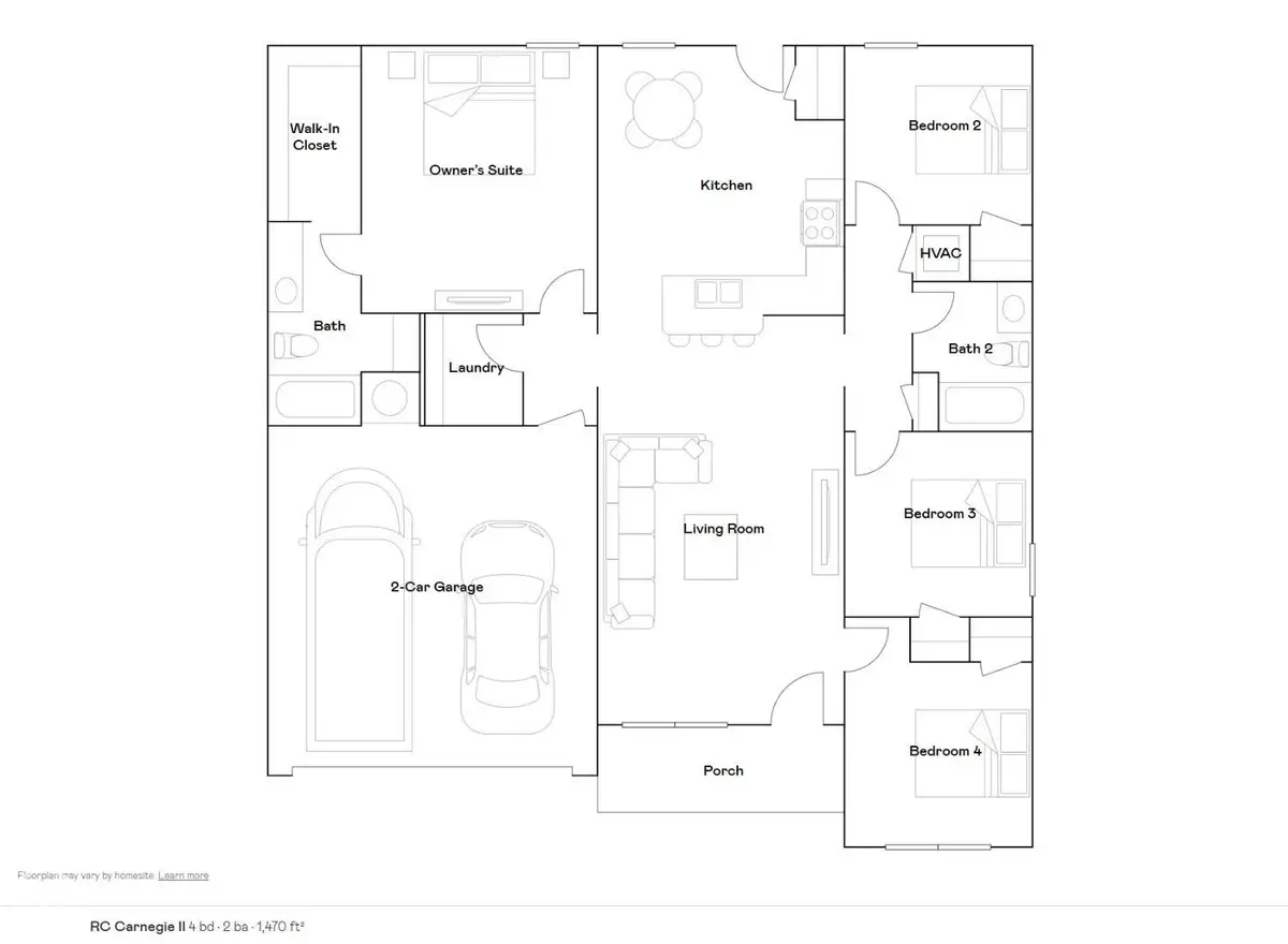
Discover the captivating Carnegie II plan, distinguished by its inviting covered entryway and beautifully landscaped front yard that exudes curb appeal. This thoughtfully designed home encompasses 4 bedrooms and 2 bathrooms, providing ample space for comfort and privacy. The spacious living room offers a welcoming environment for relaxation and gatherings. The kitchen is a chef's delight, equipped with energy-efficient appliances, abundant counterspace, and a convenient pantry for storage. The adjacent laundry room, situated just off the garage, ensures practicality for families of any size. The master suite includes a luxurious walk-in closet, enhancing the home's appeal and functionality. Explore more about this remarkable home today! **SEE ADDITIONAL REMARKS FOR INFORMATION ON DUES**
Contact an agent
Home facts
- Year built:2026
- Listing ID #:10128626
- Added:40 day(s) ago
- Updated:May 11, 2026 at 07:44 PM
Rooms and interior
- Bedrooms:4
- Total bathrooms:2
- Full bathrooms:2
- Flooring:Carpet, Vinyl
- Kitchen Description:Dishwasher Built-In, Disposal
- Bedroom Description:Master Bedroom on Main Level
- Living area:1,470 sq. ft.
Heating and cooling
- Cooling:Heat Pump(s)
- Heating:Heat Pump
Structure and exterior
- Roof:Shingles
- Year built:2026
- Building area:1,470 sq. ft.
- Lot area:0.17 Acres
- Architectural Style:Traditional
- Construction Materials:Brick, Vinyl Siding
- Foundation Description:Slab
- Levels:1 Story
Schools
- High school:Valley View
- Middle school:Valley View
- Elementary school:Valley View
Utilities
- Water:City
- Sewer:City Sewer
Finances and disclosures
- Price:$224,900
- Price per sq. ft.:$152.99
Parking
- Parking description:Garage-Attached
- Garage spaces:2
New listings near 5309 Orchard Pass
- New
$275,000Active3 beds 2 baths1,903 sq. ft.2112 Quarry Cove, Jonesboro, AR 72404
MLS# 26018843Listed by: COLDWELL BANKER VILLAGE COMMUNITIES - New
$184,900Active3 beds 2 baths1,172 sq. ft.1302 Medallion Circle, Jonesboro, AR 72404
MLS# 10129589Listed by: CENTURY 21 PORTFOLIO
$249,900Pending3 beds 2 baths1,650 sq. ft.1008 Pomona Street, Jonesboro, AR 72405
MLS# 10129578Listed by: NEW HORIZON REAL ESTATE- New
$574,900Active4 beds 4 baths3,550 sq. ft.2807 Tower Park Drive, Jonesboro, AR 72404
MLS# 10129583Listed by: JONESBORO REALTY COMPANY - New
$360,000Active3 beds 2 baths2,047 sq. ft.4004 Sandra Lane, Jonesboro, AR 72404
MLS# 26018710Listed by: HALSEY REAL ESTATE - New
$279,900Active3 beds 2 baths1,978 sq. ft.3717 Ridgeway Circle, Jonesboro, AR 72404
MLS# 26018703Listed by: HALSEY REAL ESTATE - New
$289,000Active3 beds 2 baths1,950 sq. ft.3707 Catalina, Jonesboro, AR 72405
MLS# 10129469Listed by: CENTURY 21 PORTFOLIO - New
$899,000Active4 beds 3 baths2,800 sq. ft.1323 Cr 304, Jonesboro, AR 72401
MLS# 10129575Listed by: SELECT PROPERTIES - New
$625,000Active4 beds 3 baths2,800 sq. ft.1323 Cr 304, Jonesboro, AR 72401
MLS# 10129574Listed by: SELECT PROPERTIES - New
$224,900Active3 beds 2 baths1,450 sq. ft.2520 Britton Drive, Jonesboro, AR 72405
MLS# 26018638Listed by: CRYE-LEIKE REALTORS JONESBORO