2104 Junior Deputy Road, Little Rock, AR 72205
Local realty services provided by:ERA Doty Real Estate
2104 Junior Deputy Road,Little Rock, AR 72205
$285,000
- 3 Beds
- 2 Baths
- 1,529 sq. ft.
- Single family
- Active
Listed by: barbara swesey
Office: adkins & associates real estate
MLS#:25040619
Source:AR_CARMLS
Price summary
- Price:$285,000
- Price per sq. ft.:$186.4
About this home
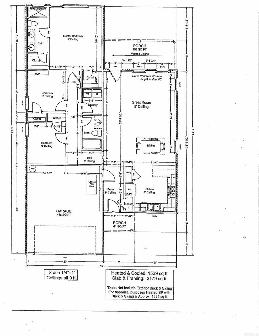
There is a demand for AFFORDABLE HOUSING .... this builder is offering BRAND NEW affordable homes next door to each other. QUALITY construction 3 BR, 2 full baths, spacious greatroom-dining area opens to kitchen w/ pantry. Breakfast bar for bar chairs /stools. Quality cabinets w/ quartz countertops. Electric range, microwave & dishwasher. 9' Ceilings throughout. Laundry room, 2 walk-in closets in primary bedroom. Primary bath with tiled walk-in shower and double vanity. Vinyl plank flooring throughout. Double garage. Porch with vaulted ceiling off the greatroom. So convenient to Baptist Hospital & doctors' offices and just off Shackleford to the West. Completion in December. Information on finish features, colors & light fixtures in Associated Docs and in the house. AFFORDABLE QUALITY!!
Contact an agent
Home facts
- Year built:2025
- Listing ID #:25040619
- Added:46 day(s) ago
- Updated:November 25, 2025 at 03:23 PM
Rooms and interior
- Bedrooms:3
- Total bathrooms:2
- Full bathrooms:2
- Living area:1,529 sq. ft.
Heating and cooling
- Cooling:Central Cool-Electric
- Heating:Central Heat-Electric
Structure and exterior
- Roof:Architectural Shingle
- Year built:2025
- Building area:1,529 sq. ft.
- Lot area:0.16 Acres
Utilities
- Water:Water Heater-Electric, Water-Public
- Sewer:Sewer-Public
Finances and disclosures
- Price:$285,000
- Price per sq. ft.:$186.4
- Tax amount:$165
New listings near 2104 Junior Deputy Road
- New
$240,000Active3 beds 2 baths1,792 sq. ft.304 Johnson Street, Little Rock, AR 72205
MLS# 25046970Listed by: MID SOUTH REALTY - New
$234,900Active3 beds 3 baths1,292 sq. ft.Address Withheld By Seller, Little Rock, AR 72202
MLS# 25046965Listed by: BLUE INK REAL ESTATE - New
$56,500Active1 beds 1 baths1,107 sq. ft.3211 Walker Street, Little Rock, AR 72204
MLS# 25046960Listed by: HOME DESIGN AND REALTY L.L.C. - New
$23,500Active3 beds 1 baths784 sq. ft.2323 S Valmar, Little Rock, AR 72204
MLS# 25046949Listed by: HOME DESIGN AND REALTY L.L.C. - New
$19,900Active3 beds 1 baths1,004 sq. ft.5001 W 31st St, Little Rock, AR 72204
MLS# 25046952Listed by: IHP REAL ESTATE - New
$75,000Active3 beds 2 baths1,062 sq. ft.2620 Bishop Street, Little Rock, AR 72206
MLS# 25046954Listed by: HOME DESIGN AND REALTY L.L.C. - New
$195,000Active2 beds 1 baths918 sq. ft.304 Walnut Street, Little Rock, AR 72205
MLS# 25046929Listed by: DEATON GROUP REALTY
$185,000Pending3 beds 2 baths1,456 sq. ft.7520 M Street, Little Rock, AR 72207
MLS# 25046919Listed by: REALTY ONE GROUP - PINNACLE- New
$190,000Active3 beds 2 baths2,028 sq. ft.6018 Timberside Road, Little Rock, AR 72204
MLS# 25046897Listed by: MID SOUTH REALTY - New
$267,900Active3 beds 2 baths1,588 sq. ft.13618 Woodbrook Drive, Little Rock, AR 72211
MLS# 25046731Listed by: CRYE-LEIKE REALTORS NLR BRANCH