11014 W Jefferson Street, Avondale, AZ 85323
Local realty services provided by:HUNT Real Estate ERA
Listed by: beth m rider
Office: keller williams arizona realty
MLS#:6968384
Source:ARMLS
Price summary
- Price:$495,000
- Price per sq. ft.:$170.04
- Monthly HOA dues:$80.33
About this home
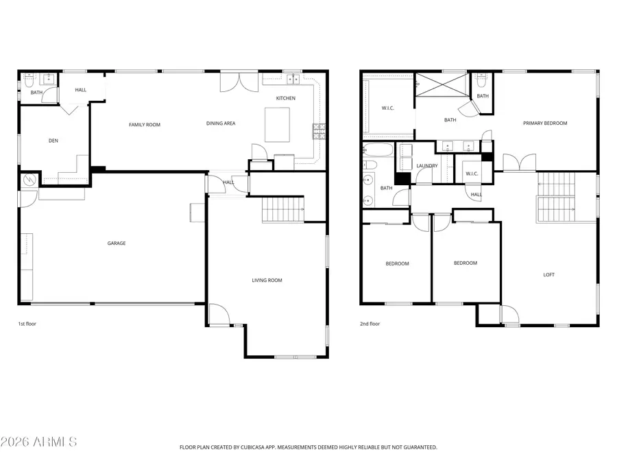
This beautifully upgraded and impressively spacious home offers 3 large bedrooms, a versatile den, and 2.5 baths across 2,911 SqFt of thoughtfully designed living space. A welcoming front living/dining area flows into an inviting family room that opens to the kitchen, creating an ideal setting for everyday comfort and entertaining. The kitchen stands out with espresso maple cabinetry, granite countertops, a stylish glass tile backsplash, stainless steel appliances, a center island with breakfast bar, and a pantry. French doors lead to an expansive covered patio with ceiling fans overlooking a lush backyard complete with grass for play, mature shade trees, and a storage shed The side yard includes a concrete slab with RV gate and direct access to the oversized 3‑car garage. On the main level, the den features sleek sliding doors with frosted glass for added privacy. Upstairs, all bedrooms are thoughtfully situated, including a spacious primary suite with double-door entry, a private bath offering a dual-sink vanity, an oversized tiled shower with rain showerhead and bench seating, and a walkin closet. The updated upstairs bath showcases a modern vanity with vessel sinks and framed mirrors, while the conveniently located laundry room provides upper and lower cabinetry for extra storage. Additional highlights include plantation shutters, newer interior paint, updated tile flooring, and a 3car garage enhanced with cabinetry, epoxy flooring, and a utility sink.
Contact an agent
Home facts
- Year built:2005
- Listing ID #:6968384
- Updated:January 16, 2026 at 04:48 PM
Rooms and interior
- Bedrooms:3
- Total bathrooms:3
- Full bathrooms:2
- Half bathrooms:1
- Living area:2,911 sq. ft.
Heating and cooling
- Heating:Natural Gas
Structure and exterior
- Year built:2005
- Building area:2,911 sq. ft.
- Lot area:0.18 Acres
Schools
- High school:La Joya Community High School
- Middle school:Collier Elementary School
- Elementary school:Collier Elementary School
Utilities
- Water:City Water
Finances and disclosures
- Price:$495,000
- Price per sq. ft.:$170.04
- Tax amount:$2,611 (2024)
New listings near 11014 W Jefferson Street
- New
$420,000Active4 beds 3 baths1,823 sq. ft.10766 W Del Rio Lane, Avondale, AZ 85323
MLS# 6969163Listed by: REALTY ONE GROUP - New
$370,000Active3 beds 2 baths1,617 sq. ft.11321 W Piccadilly Road, Avondale, AZ 85392
MLS# 6968542Listed by: DONE DEAL - New
$431,215Active4 beds 2 baths1,697 sq. ft.12592 W Mountain View Drive, Avondale, AZ 85323
MLS# 6968521Listed by: DRH PROPERTIES INC - New
$442,000Active3 beds 2 baths1,528 sq. ft.12646 W Avalon Drive, Avondale, AZ 85392
MLS# 6968188Listed by: CENTURY 21 NORTHWEST - New
$220,000Active0.26 Acres003 N 107th Avenue #3, Tolleson, AZ 85392
MLS# 6968122Listed by: REAL BROKER - New
$499,000Active3 beds 2 baths1,857 sq. ft.614 S 119th Avenue, Avondale, AZ 85323
MLS# 6967542Listed by: EXP REALTY - New
$525,000Active4 beds 3 baths2,306 sq. ft.3226 N 108th Lane, Avondale, AZ 85392
MLS# 6967562Listed by: 72SOLD - New
$478,460Active3 beds 2 baths1,700 sq. ft.9956 W Mitchell Avenue, Avondale, AZ 85392
MLS# 6967592Listed by: WILLIAM LYON HOMES - New
$399,900Active3 beds 3 baths1,460 sq. ft.419 N 110th Drive, Avondale, AZ 85323
MLS# 6967463Listed by: JASON MITCHELL REAL ESTATE