4676 E Shasta Drive, San Tan Valley, AZ 85143
Local realty services provided by:ERA Four Feathers Realty, L.C.
4676 E Shasta Drive,San Tan Valley, AZ 85143
$462,090
- 5 Beds
- 3 Baths
- 2,252 sq. ft.
- Single family
- Active
Listed by: joanne l hall, kathleen j spencer
Office: lennar sales corp
MLS#:6931236
Source:ARMLS
Price summary
- Price:$462,090
- Price per sq. ft.:$205.19
- Monthly HOA dues:$95
About this home
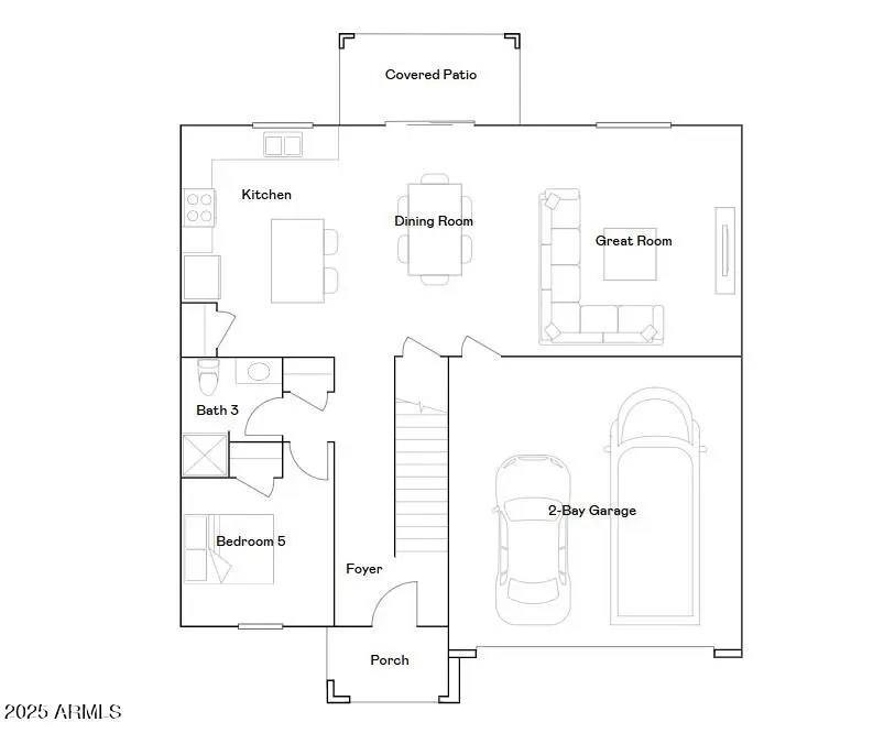
Seller will provide a credit towards a rate buydown and closing costs with preferred lender. Ask us how to save thousands over the life of your loan. Bella Vista Farms is a beautiful, growing, master-planned community in San Tan Valley, AZ. Residents enjoy an amenity-rich lifestyle with a swimming pool, picnic area, splash park, soccer field, playground, multiple sport courts, and a spacious greenbelt. This home comes fully equipped with all brand-new stainless steel kitchen appliances and features 18x18 tile flooring, elegant quartz countertops, and stylish maple almond cabinetry, thoughtfully designed for comfort and functionality. Photos are of a model home. A copy of the public report is available on the ADRE's website.
Contact an agent
Home facts
- Year built:2025
- Listing ID #:6931236
- Updated:November 15, 2025 at 06:42 PM
Rooms and interior
- Bedrooms:5
- Total bathrooms:3
- Full bathrooms:3
- Living area:2,252 sq. ft.
Heating and cooling
- Cooling:ENERGY STAR Qualified Equipment, Programmable Thermostat
- Heating:Ceiling
Structure and exterior
- Year built:2025
- Building area:2,252 sq. ft.
- Lot area:0.14 Acres
Schools
- High school:Poston Butte High School
- Middle school:Magma Ranch K8 School
- Elementary school:Magma Ranch K8 School
Utilities
- Water:Private Water Company
Finances and disclosures
- Price:$462,090
- Price per sq. ft.:$205.19
- Tax amount:$1,841 (2024)
New listings near 4676 E Shasta Drive
- New
$375,000Active3 beds 2 baths1,721 sq. ft.1991 W Vineyard Plains Drive, San Tan Valley, AZ 85144
MLS# 6947815Listed by: MY HOME GROUP REAL ESTATE - New
$329,999Active3 beds 2 baths1,555 sq. ft.2810 W San Carlos Lane, San Tan Valley, AZ 85144
MLS# 6947703Listed by: REAL BROKER - New
$705,000Active4 beds 3 baths2,605 sq. ft.3922 E Kenley Lane, San Tan Valley, AZ 85143
MLS# 6946224Listed by: LIMITLESS REAL ESTATE - New
$599,990Active6.01 Acres8752 E Bella Vista Road, San Tan Valley, AZ 85143
MLS# 6946252Listed by: R & I REALTY - New
$509,990Active3 beds 3 baths2,485 sq. ft.32116 N Buckaroo Road, San Tan Valley, AZ 85140
MLS# 6946328Listed by: COMPASS - New
$300,000Active3 beds 2 baths1,269 sq. ft.31724 N Cheyenne Drive, San Tan Valley, AZ 85143
MLS# 6946417Listed by: RE/MAX SOLUTIONS - New
$399,000Active3 beds 2 baths1,825 sq. ft.602 E Baker Drive, San Tan Valley, AZ 85140
MLS# 6946465Listed by: REAL BROKER - New
$440,000Active3 beds 2 baths1,983 sq. ft.1592 E Luna Blanca Way, San Tan Valley, AZ 85140
MLS# 6946483Listed by: COLDWELL BANKER REALTY - New
$398,990Active3 beds 2 baths1,400 sq. ft.3041 E Barrel Race Road, San Tan Valley, AZ 85140
MLS# 6946695Listed by: LENNAR SALES CORP - New
$635,490Active4 beds 3 baths2,163 sq. ft.3298 E Craftsman Lane, San Tan Valley, AZ 85140
MLS# 6946700Listed by: LENNAR SALES CORP