XX1 N 211th Avenue, Wittmann, AZ 85361
Local realty services provided by:ERA Four Feathers Realty, L.C.
XX1 N 211th Avenue,Wittmann, AZ 85361
$549,000
- 4.38 Acres
- Lots / Land
- Active
Listed by: nikkie miller
Office: homesmart
MLS#:6978356
Source:ARMLS
Price summary
- Price:$549,000
About this home
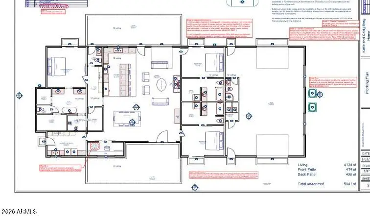
Income-producing opportunity in the heart of Wittmann's sought-after roping community! This fully fenced 4.383-acre parcel offers a rare combination of infrastructure, approved development work, and western lifestyle potential. Included in the purchase price are approved building plans designed with flexibility in mind—ideal for a large family home or a rental investment. The floor plan is designed to allow the property to be rented out up to four separate ways, offering privacy and strong income potential.Extensive groundwork has already been completed, including approved plans, perk test, planning & drainage completion, making this property truly build-ready. Equestrian improvements are already in motion as well, with 20 stalls approved and permitted, along with an approved arena, creating the perfect setup for serious horse enthusiasts.
The land is flat, usable, and serviced by a private well with two 5,200-gallon holding tanks and dual pressure system pumps, providing an excellent foundation for future development. Located just off a paved road, this parcel offers easy year-round access while maintaining a peaceful rural setting.
Enjoy being only 10 minutes from Fry's and Starbucks, approximately 20 minutes from Lake Pleasant, and just 20 minutes to Wickenburg, all while surrounded by a strong western lifestyle community. This is a rare opportunity to own a well-improved property with both investment potential and equestrian-ready possibilities in one of Arizona's most desirable horse property locations.
Contact an agent
Home facts
- Listing ID #:6978356
- Updated:February 13, 2026 at 09:18 PM
Structure and exterior
- Lot area:4.38 Acres
Schools
- High school:Wickenburg High School
- Middle school:Nadaburg Elementary School
- Elementary school:Nadaburg Elementary School
Utilities
- Water:Domestic Well
Finances and disclosures
- Price:$549,000
- Tax amount:$1 (2025)
New listings near XX1 N 211th Avenue
- New
$995,000Active3 beds 4 baths3,958 sq. ft.28538 N 203rd Avenue, Wittmann, AZ 85361
MLS# 6983942Listed by: WEST USA REALTY - New
$60,000Active5 Acres314x W Montgomery Road #189, Wittmann, AZ 85361
MLS# 6983944Listed by: AMERICAN FREEDOM REALTY - New
$344,900Active3 beds 2 baths1,404 sq. ft.21721 W Laura Street, Wittmann, AZ 85361
MLS# 6983244Listed by: ARIZONA PREMIER REALTY HOMES & LAND, LLC - New
$350,000Active3 beds 2 baths1,568 sq. ft.30520 N 226th Avenue, Wittmann, AZ 85361
MLS# 6982531Listed by: WEST USA REALTY - New
$487,000Active5.24 Acres287XX N 205th Avenue #5 Acres, Wittmann, AZ 85361
MLS# 6982156Listed by: HOMESMART - New
$137,000Active1.13 Acres207XX N 205th (503-47-129) Avenue #1.13 Acres, Wittmann, AZ 85361
MLS# 6982141Listed by: HOMESMART - New
$110,000Active1.17 Acres0 N 239th Avenue #503-30-065A, Wittmann, AZ 85361
MLS# 6981954Listed by: BERKSHIRE HATHAWAY HOMESERVICES ARIZONA PROPERTIES - New
$965,000Active4 beds 4 baths3,534 sq. ft.20019 W Mazatzal Drive, Wittmann, AZ 85361
MLS# 6981659Listed by: REALTY ONE GROUP - New
$215,000Active5.01 Acres0 W Lone Mountain Road, Wittmann, AZ 85361
MLS# 6980637Listed by: RUSS LYON SOTHEBY'S INTERNATIONAL REALTY - New
$575,000Active4 beds 2 baths1,810 sq. ft.28409 N 243rd Drive, Wittmann, AZ 85361
MLS# 6978623Listed by: EXP REALTY