245 N Evans Street, Banning, CA 92220

Local realty services provided by:ERA North Orange County Real Estate
245 N Evans Street,Banning, CA 92220
$599,899
  • 4 Beds
  • 3 Baths
  • 2,144 sq. ft.
  • Single family
  • Active
Listed by: darren jenkins
Office: great day realty
MLS#:IG25196997
Source:San Diego MLS via CRMLS

Price summary

  • Price:$599,899
  • Price per sq. ft.:$279.8

About this home

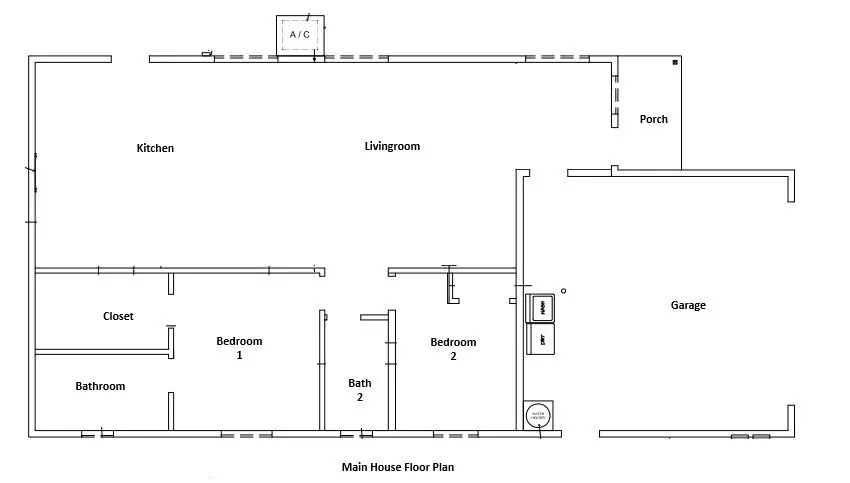
Your opportunity to own a BRAND new home plus an Accessory Dwelling unit (ADU)! The home is a 2 bedroom, 2 bath 1,222 sq ft home with a 2 car garage. Walk in closet in the main bedroom. The ADU is a 2 bedroom, 1 bath 922 sq ft ADU. Both are smartly designed for comfortable living! The kitchen and baths will come with White Shaker style cabinets and white quartz counter tops. The exterior walls are made with 2x6 lumber and filled with insulation. The windows are dual pane windows. New technology to keep your home cool in the summer and warm in the winter. The solar production system is fully paid for and will be owned by you with no payments to anyone for the power it produces. The home and ADU both have vinyl flooring throughout. They are currently under construction BUT we ARE now ready for showings. There is still work needed to be done to complete the project which is on going. Yet, you can come see it for yourself now to make it yours before someone else does.

Contact an agent

contact an agent

Yes, I would like more information. Please use and/or share my information with an ERA®  affiliated agent to contact me about my real estate needs. By clicking Send message, I request to be contacted by phone or text message and consent to being contacted by automated means. I understand that my consent to receive calls or texts is not a condition of purchasing any property, goods, or services. Alternatively, I understand that I can access real estate services by email or I can contact the agent myself.

If an ERA®  affiliated agent is not available in the area where I need assistance, I agree to be contacted by a real estate agent affiliated with another brand owned or licensed by Anywhere Real Estate (BHGRE® , CENTURY 21® , Coldwell Banker® , Corcoran® , Sotheby's International Realty® ).
 I acknowledge that I have read and agree to theTerms of useandPrivacy notice

Home facts

  • Year built:2025
  • Listing ID #:IG25196997
  • Added:207 day(s) ago
  • Updated:March 29, 2026 at 01:58 PM

Rooms and interior

  • Bedrooms:4
  • Total bathrooms:3
  • Full bathrooms:3
  • Flooring:Linoleum/Vinyl
  • Kitchen Description:Electric Range
  • Living area:2,144 sq. ft.

Heating and cooling

  • Cooling:Central Forced Air
  • Heating:Forced Air Unit

Structure and exterior

  • Roof:Composition
  • Year built:2025
  • Building area:2,144 sq. ft.
  • Construction Materials:Stucco
  • Levels:1 Story

Utilities

  • Water:Public, Water Connected
  • Sewer:Public Sewer, Sewer Connected

Finances and disclosures

  • Price:$599,899
  • Price per sq. ft.:$279.8

Features and amenities

  • Appliances:Electric Range
  • Laundry features:Electric

Parking

  • Total parking spaces:2
  • Garage spaces:2
MLS LogoThis information is deemed reliable but not guaranteed. You should rely on this information only to decide whether or not to further investigate a particular property. BEFORE MAKING ANY OTHER DECISION, YOU SHOULD PERSONALLY INVESTIGATE THE FACTS (e.g. square footage and lot size) with the assistance of an appropriate professional. You may use this information only to identify properties you may be interested in investigating further. All uses except for personal, non-commercial use in accordance with the foregoing purpose are prohibited. Redistribution or copying of this information, any photographs or video tours is strictly prohibited. This information is derived from the Internet Data Exchange (IDX) service provided by San Diego MLS®. Displayed property listings may be held by a brokerage firm other than the broker and/or agent responsible for this display. The information and any photographs and video tours and the compilation from which they are derived is protected by copyright. Compilation © 2020 San Diego MLS®, Inc.