2311 Montgomery Avenue, Cardiff By The Sea, CA 92007

Local realty services provided by:ERA Excel Realty
2311 Montgomery Avenue,Cardiff by the Sea, CA 92007
$2,175,000
  • 0.11 Acres
  • Lots / Land
  • Active
Listed by:mike mullins
Office:coldwell banker west
MLS#:NDP2509143
Source:CRMLS

Price summary

  • Price:$2,175,000

About this home

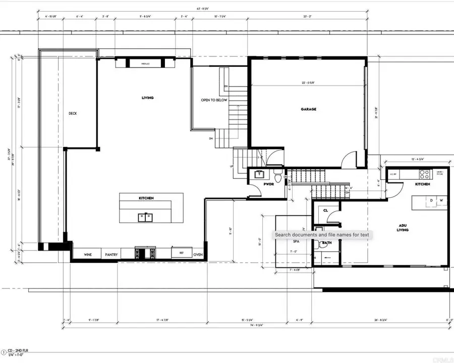
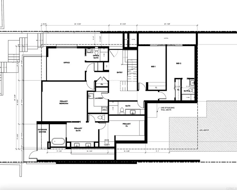
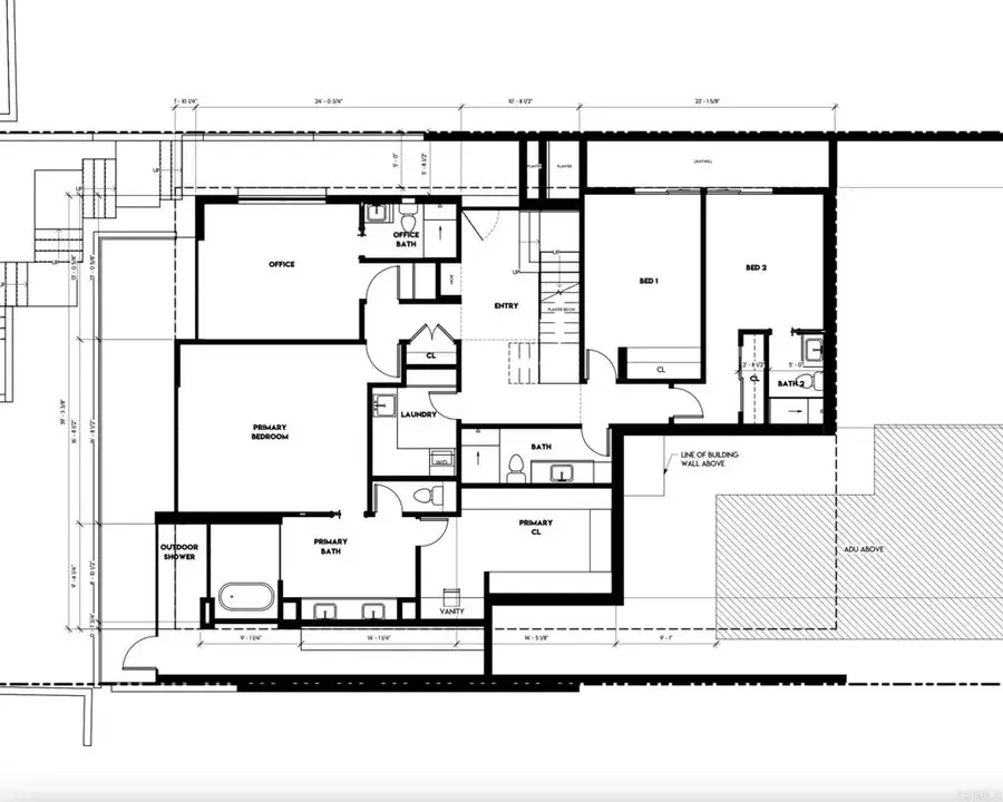
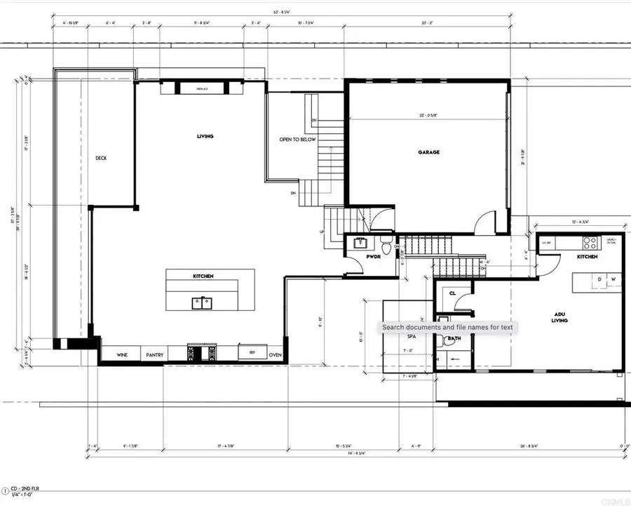
Located in the highly sought-after Walking District, this unique property offers breathtaking ocean views and endless possibilities. Sitting on two legal lots, the site currently features a charming 1920s beach bungalow — 2 bedrooms, 1 bath, 572 sq ft.. The true value lies in the potential: develop or build up to capture expansive whitewater and panoramic ocean views. Whether you’re looking to restore, expand, or create a stunning new coastal retreat, this is a rare blank canvas in one of North County's most desirable beach communities. Conceptual plans are available for review for a single family residence. Enjoy the ultimate coastal lifestyle just blocks from: Seaside Market, Glen Park, Popular cafes and restaurants, Boutique shopping, Scenic hiking and biking trails, The Costal Rail Trail & World-class beaches and surf spots. This is a rare chance to own a prime piece of coastal real estate in one of San Diego’s most beloved neighborhoods. Don’t miss out!

Contact an agent

contact an agent

Yes, I would like more information from ERA®. Please use and/or share my information with an ERA affiliated agent to contact me about my real estate needs. By clicking Send message, I agree an ERA affiliated agent may contact me by phone or text message including by automated means about real estate services, and that I can access real estate services without providing my phone number. I acknowledge that I have read and agree to theTerms of useandPrivacy notice

Home facts

  • Listing ID #:NDP2509143
  • Added:44 day(s) ago
  • Updated:November 01, 2025 at 01:22 PM

Structure and exterior

  • Lot area:0.11 Acres

Finances and disclosures

  • Price:$2,175,000
Based on information from California Regional Multiple Listing Service, Inc. as of November 1, 2025 . This information is for your personal, non-commercial use and may not be used for any purpose other than to identify prospective properties you may be interested in purchasing. Display of MLS data is usually deemed reliable but is NOT guaranteed accurate by the MLS. Buyers are responsible for verifying the accuracy of all information and should investigate the data themselves or retain appropriate professionals. Information from sources other than the Listing Agent may have been included in the MLS data. Unless otherwise specified in writing, Broker/Agent has not and will not verify any information obtained from other sources. The Broker/Agent providing the information contained herein may or may not have been the Listing and/or Selling Agent. The information provided is for consumers' personal, non-commercial use and may not be used for any purpose other than to identify prospective properties consumers may be interested in purchasing. All properties are subject to prior sale or withdrawal. All information provided is deemed reliable but is not guaranteed accurate, and should be independently verified.