32702 Seven Seas Drive, Dana Point, CA 92629
Local realty services provided by:ERA North Orange County Real Estate
32702 Seven Seas Drive,Dana Point, CA 92629
$6,750,000
- 6 Beds
- 6 Baths
- 3,789 sq. ft.
- Single family
- Active
Listed by:traci frost
Office:estatex inc.
MLS#:OC25188224
Source:San Diego MLS via CRMLS
Price summary
- Price:$6,750,000
- Price per sq. ft.:$1,781.47
About this home
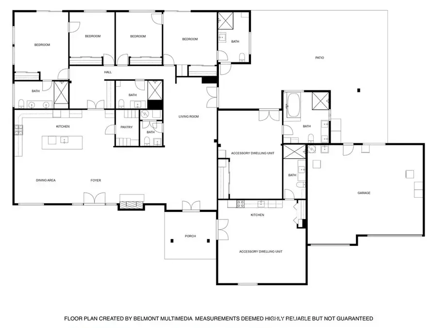
Coastal Elegance Meets Modern Luxury in this completely renovated, single-level masterpiece that truly shows like a model home. Perched within the prestigious enclave of Monarch Bay Terrace, this reimagined ranch-style estate embodies the pinnacle of sophistication, serenity, and coastal living along one of Orange Countys most coveted shorelines. Set on nearly 15,000 sq. ft. of private grounds, the home spans 3,789 sq. ft. and offers 6 bedrooms and 5.5 bathrooms, including four en-suite bedrooms and a private guest suite with kitchenetteperfect for multigenerational living or long-term guests. Inside, a seamless blend of timeless design and modern finishes creates a light-filled, open-concept flow ideal for both casual living and sophisticated entertaining. The chefs gourmet kitchen features designer appliances, quartz countertops, and an expansive island that anchors the heart of the home. Walls of glass open effortlessly to the wraparound yard and courtyard, where multiple entertaining spaces invite you to relax, dine, and savor ocean breezes year-round. Every areaindoors and outfeels like a curated experience in coastal tranquility. Located just a 10-minute stroll to the sand and moments from the Ritz-Carlton, Monarch Beach Resort, world-class golf, and the vibrant Lantern District, this address defines convenience and prestige. With the Dana Point Harbor revitalization underway, this property is not only a showpiece residence but a savvy investment in one of Southern Californias fastest-rising coastal markets. Step into the backyard retreat and youll understand why the
Contact an agent
Home facts
- Year built:1962
- Listing ID #:OC25188224
- Added:45 day(s) ago
- Updated:October 05, 2025 at 04:29 AM
Rooms and interior
- Bedrooms:6
- Total bathrooms:6
- Full bathrooms:5
- Half bathrooms:1
- Living area:3,789 sq. ft.
Heating and cooling
- Cooling:Whole House Fan
Structure and exterior
- Year built:1962
- Building area:3,789 sq. ft.
Utilities
- Water:Public
Finances and disclosures
- Price:$6,750,000
- Price per sq. ft.:$1,781.47
New listings near 32702 Seven Seas Drive
- New$4,150,000Active6.01 Acres
1 O'Hill, Laguna Niguel, CA 92677
MLS# NP25231364Listed by: BAC REAL ESTATE GROUP, INC. - New$1,075,000Active2 beds 2 baths930 sq. ft.
34010 Selva Rd, Dana Point, CA 92629
MLS# OC25221187Listed by: DOUGLAS ELLIMAN OF CALIFORNIA - Open Sun, 2 to 4pmNew$1,075,000Active2 beds 2 baths930 sq. ft.
34010 Selva Rd, Dana Point, CA 92629
MLS# OC25221187Listed by: DOUGLAS ELLIMAN OF CALIFORNIA - New$599,950Active1 beds 1 baths650 sq. ft.
33852 Del Obispo #80, Dana Point, CA 92629
MLS# OC25230508Listed by: PATRIOT REAL ESTATE - Open Sun, 12 to 3pmNew$599,950Active1 beds 1 baths650 sq. ft.
33852 Del Obispo #80, Dana Point, CA 92629
MLS# OC25230508Listed by: PATRIOT REAL ESTATE - New$1,039,000Active2 beds 2 baths1,225 sq. ft.
33651 Surfside, Dana Point, CA 92629
MLS# PW25229791Listed by: ALLVIEW REAL ESTATE - New$1,290,000Active2 beds 3 baths1,387 sq. ft.
24616 Polaris Drive #272, Dana Point, CA 92629
MLS# OC25228905Listed by: BULLOCK RUSSELL RE SERVICES - New$3,475,000Active3 beds 2 baths1,754 sq. ft.
23835 Bluehill Bay, Dana Point, CA 92629
MLS# LG25228511Listed by: COMPASS - New$2,650,000Active3 beds 3 baths2,005 sq. ft.
33925 Cape Cv, Dana Point, CA 92629
MLS# IG25229501Listed by: BERKSHIRE HATHAWAY HOMESERVICES CALIFORNIA REALTY - New$895,000Active2 beds 2 baths870 sq. ft.
33852 Del Obispo Street #2, Dana Point, CA 92629
MLS# LG25228643Listed by: THE AGENCY