0 15th Avenue Avenue, Desert Hot Springs, CA 92240
Local realty services provided by:ERA North Orange County Real Estate
0 15th Avenue Avenue,Desert Hot Springs, CA 92240
$150,000
- 1.26 Acres
- Lots / Land
- Active
Listed by: paula turner, rebecca ramirez
Office: desert pacific properties
MLS#:219138783
Source:CA_DAMLS
Price summary
- Price:$150,000
About this home
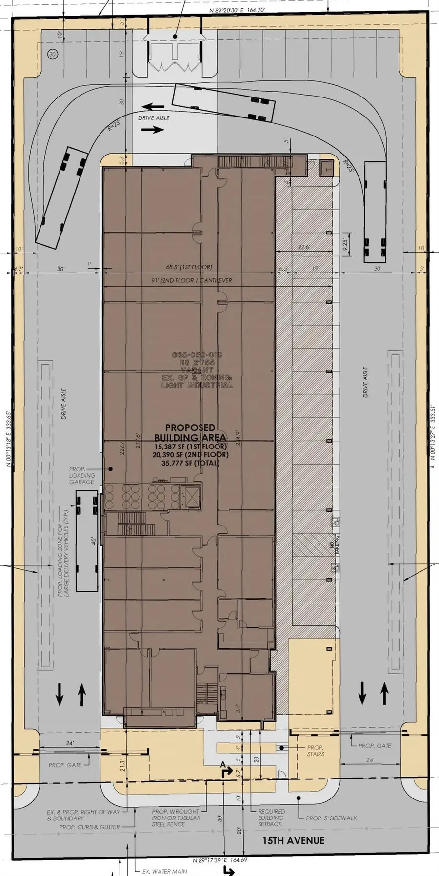
* Price Reduced from $399,000. * Expired CUP 31-17 * The proposed project consists of a two-story building totaling 35,777 s/f Office / Administration: 2,463 s/f; Cultivation: 29,215 s/f; Processing: 4,099 s/f; * Building Height 42' * No Manufacturing Tax in Desert Hot Springs * Desert Hot Springs Industrial Park *Across from DHS 109 - A Proposed 109 acre Master Planned Cultivation Park
Contact an agent
Home facts
- Listing ID #:219138783
- Added:33 day(s) ago
- Updated:December 18, 2025 at 03:28 PM
Structure and exterior
- Lot area:1.26 Acres
Utilities
- Water:In Street
Finances and disclosures
- Price:$150,000
New listings near 0 15th Avenue Avenue
- New
$139,900Active2 beds 2 baths1,150 sq. ft.74711 Dillon Road #421, Desert Hot Springs, CA 92241
MLS# 219140131Listed by: DESERT ELITE PROPERTIES, INC. - New
$356,900Active3 beds 2 baths1,250 sq. ft.9676 Del Ray Lane, Desert Hot Springs, CA 92240
MLS# 219140125PSListed by: DESERT DUNES REALTY - New
$65,000Active0 Acres0 Rockies, Desert Hot Springs, CA 92440
MLS# PW25274247Listed by: FIRST TEAM REAL ESTATE - New
$575,000Active4 beds 4 baths2,430 sq. ft.66915 Vista Place, Desert Hot Springs, CA 92240
MLS# 219140105Listed by: COMPASS - New
$35,000Active1 beds 1 baths400 sq. ft.70200 Dillon Road #350, Desert Hot Springs, CA 92241
MLS# 219140100Listed by: SUN REAL ESTATE TEAM, INC - New
$479,000Active3 beds 3 baths1,050 sq. ft.19107 Desert Haven Road, Desert Hot Springs, CA 92241
MLS# 219140102PSListed by: BENNION DEVILLE HOMES - New
$250,000Active10 Acres0 22nd Ave. Avenue, Desert Hot Springs, CA 92241
MLS# 219140084Listed by: RE/MAX DESERT PROPERTIES - New
$425,000Active3 beds 2 baths1,835 sq. ft.9086 Silver Star Avenue, Desert Hot Springs, CA 92240
MLS# 219140080DAListed by: HOMESMART - New
$685,000Active3 beds 2 baths1,878 sq. ft.12220 Skyline Drive, Desert Hot Springs, CA 92240
MLS# SR25276958Listed by: JOHNHART REAL ESTATE - New
$685,000Active3 beds 2 baths1,878 sq. ft.12220 Skyline Drive, Desert Hot Springs, CA 92240
MLS# SR25276958Listed by: JOHNHART REAL ESTATE