Lot 285 Under Construction, Desert Hot Springs, CA 92240

Local realty services provided by:ERA North Orange County Real Estate
Lot 285 Under Construction,Desert Hot Springs, CA 92240
$599,000
  • 5 Beds
  • 2 Baths
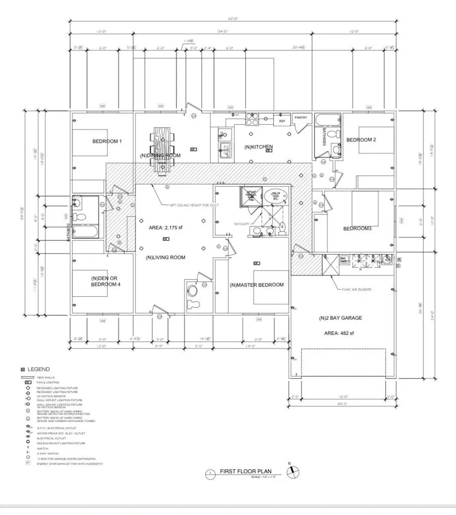
  • 2,300 sq. ft.
  • Single family
  • Active
Listed by: jeff lander
Office: hacienda agency, inc.
MLS#:219137467DA
Source:CRMLS

Price summary

  • Price:$599,000
  • Price per sq. ft.:$260.43

About this home

An excellent construction team from architect to interiors ensured that this home flows with added features for luxurious and practical living. 4 en-suite bedrooms, plenty of light, sparkling pool and stunning forest views. The streamlined kitchen boasts high-end appliances and a built-in coffee machine and breakfast bar. Home automation and audio, with underfloor heating throughout. An inter-leading garage with additional space for golf cart. The main entrance has an attractive feature wall and water feature. The asking price is VAT inclusive = no transfer duty on purchase. The 'Field of Dreams" is situated close by with tennis courts and golf driving range. Horse riding is also available to explore the estate, together with organised hike and canoe trips on the Noetzie River. Stunning rural living with ultimate security, and yet within easy access of Pezula Golf Club, Hotel and world-class Spa, gym and pool.

Contact an agent

contact an agent

Yes, I would like more information. Please use and/or share my information with an ERA®  affiliated agent to contact me about my real estate needs. By clicking Send message, I request to be contacted by phone or text message and consent to being contacted by automated means. I understand that my consent to receive calls or texts is not a condition of purchasing any property, goods, or services. Alternatively, I understand that I can access real estate services by email or I can contact the agent myself.

If an ERA®  affiliated agent is not available in the area where I need assistance, I agree to be contacted by a real estate agent affiliated with another brand owned or licensed by Anywhere Real Estate (BHGRE® , CENTURY 21® , Coldwell Banker® , Corcoran® , Sotheby's International Realty® ).
 I acknowledge that I have read and agree to theTerms of useandPrivacy notice

Home facts

  • Year built:2026
  • Listing ID #:219137467DA
  • Added:60 day(s) ago
  • Updated:December 19, 2025 at 02:27 PM

Rooms and interior

  • Bedrooms:5
  • Total bathrooms:2
  • Full bathrooms:2
  • Living area:2,300 sq. ft.

Heating and cooling

  • Heating:Central Furnace

Structure and exterior

  • Year built:2026
  • Building area:2,300 sq. ft.
  • Lot area:0.17 Acres

Finances and disclosures

  • Price:$599,000
  • Price per sq. ft.:$260.43
Based on information from California Regional Multiple Listing Service, Inc. as of December 23, 2025 . This information is for your personal, non-commercial use and may not be used for any purpose other than to identify prospective properties you may be interested in purchasing. Display of MLS data is usually deemed reliable but is NOT guaranteed accurate by the MLS. Buyers are responsible for verifying the accuracy of all information and should investigate the data themselves or retain appropriate professionals. Information from sources other than the Listing Agent may have been included in the MLS data. Unless otherwise specified in writing, Broker/Agent has not and will not verify any information obtained from other sources. The Broker/Agent providing the information contained herein may or may not have been the Listing and/or Selling Agent. The information provided is for consumers' personal, non-commercial use and may not be used for any purpose other than to identify prospective properties consumers may be interested in purchasing. All properties are subject to prior sale or withdrawal. All information provided is deemed reliable but is not guaranteed accurate, and should be independently verified.