th E Ave I, Lancaster, CA 93535
Local realty services provided by:ERA Excel Realty
th E Ave I,Lancaster, CA 93535
$700,000
- 8.69 Acres
- Lots / Land
- Active
Listed by: ronald halcrow
Office: coldwell banker hartwig661-948-8424
MLS#:SR26088166
Source:CRMLS
Price summary
- Price:$700,000
About this home
Entitlement-Positioned Residential Development – 8.69 Acres with Density Upside ---
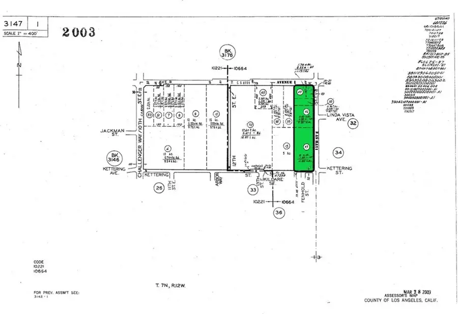
Four contiguous parcels totaling 8.69 acres with frontage along 15th St E from Avenue I to Kettering Street. The site offers a compelling opportunity for re-entitlement and tract development, supported by a split General Plan designation: approximately 4.18 acres of Medium Density Residential (MDR: 6.6–15 du/ac) and 4.51 acres of Urban Residential (UR: 2.1–6.5 du/ac)—allowing flexibility in product type, lot configuration, and overall yield.
A previously approved Tentative Tract Map (TTM) for 38 single-family lots establishes a strong entitlement baseline. While the map has expired following the City’s upgrade to higher-density MDR zoning, it provides significant carry-forward value, including prior engineering studies, site planning, and a detailed record of municipal conditions of approval. This groundwork can materially reduce entitlement risk, inform updated yield scenarios, and accelerate the resubmittal process.
Planning & Entitlement Advantages:
• CEQA Positioning: Prior approvals and studies may support streamlined environmental review, with the potential for addendum or focused analysis rather than a full EIR, subject to City determination.
• Known Development Standards: Existing conditions of approval offer clarity on grading, drainage, circulation, and off-site improvement requirements—reducing uncertainty during entitlement.
• Utility & Infrastructure Context: Prior tract work provides insight into utility access points, capacity considerations, and likely off-site improvement obligations.
• Improved Density Potential: Updated MDR zoning creates an opportunity to increase unit count beyond the prior 38-lot configuration while integrating required affordable housing components.
• Phasing Potential: Parcel configuration and frontage may allow for phased development and flexible absorption strategies.
Well-suited for builders and developers seeking a project with prior agency alignment, documented site constraints, and the ability to leverage existing due diligence to shorten entitlement timelines and move more efficiently toward final map approval and construction....
Contact an agent
Home facts
- Listing ID #:SR26088166
- Added:1 day(s) ago
- Updated:April 24, 2026 at 01:37 AM
Structure and exterior
- Lot area:8.69 Acres
- Lot Features:Corner Lot, Level with Street, Rectangular Lot, Street Level
Utilities
- Water:Public, Water Available
- Sewer:Public Sewer, Sewer Available
Finances and disclosures
- Price:$700,000
New listings near th E Ave I
- Open Sun, 1 to 4pmNew
$335,000Active2 beds 1 baths817 sq. ft.557 W Oldfield Street, Lancaster, CA 93534
MLS# SR26088594Listed by: LUXURY COLLECTIVE - New
$40,000Active9.97 Acres0 Avenue C, Lancaster, CA 93536
MLS# WS26088639Listed by: JPAN REALTY - New
$70,000Active10.21 Acres217 E Avenue K, Lancaster, CA 93535
MLS# CV26088296Listed by: RE/MAX CHAMPIONS - New
$1,100,000Active5.22 Acres0 Avenue L6 7th Stw, Lancaster, CA 93534
MLS# IV26087496Listed by: SPARKLE REALTY - Open Sat, 12 to 2pmNew
$400,000Active2 beds 2 baths932 sq. ft.2827 W Milling, Lancaster, CA 93536
MLS# SR26088090Listed by: EHOMES - New
$524,900Active4 beds 2 baths1,172 sq. ft.1807 W Avenue K8, Lancaster, CA 93534
MLS# SR26088228Listed by: CASTLESTONE PROPERTIES, INC. - New
$260,000Active2 beds 1 baths708 sq. ft.43310 Fairglen Road, Lancaster, CA 93535
MLS# SR26088256Listed by: SAN FERNANDO REALTY, INC. - Open Sat, 12 to 2pmNew
$365,000Active3 beds 1 baths936 sq. ft.3651 W Avenue K15, Lancaster, CA 93536
MLS# SR26088276Listed by: SYNC BROKERAGE, INC - New
$465,000Active3 beds 2 baths1,026 sq. ft.43347 Echard, Lancaster, CA 93536
MLS# SR26087814Listed by: KELLER WILLIAMS REALTY ANTELOPE VALLEY