3833 Randolph, Los Angeles, CA 90032
Local realty services provided by:ERA North Orange County Real Estate
3833 Randolph,Los Angeles, CA 90032
$1,399,000
- 7 Beds
- 5 Baths
- 2,767 sq. ft.
- Multi-family
- Active
Upcoming open houses
- Sun, Apr 1912:00 pm - 03:00 pm
Listed by: maribel munoz
Office: trevino properties, inc.323-302-8400
MLS#:CV26047391
Source:CRMLS
Price summary
- Price:$1,399,000
- Price per sq. ft.:$505.6
About this home
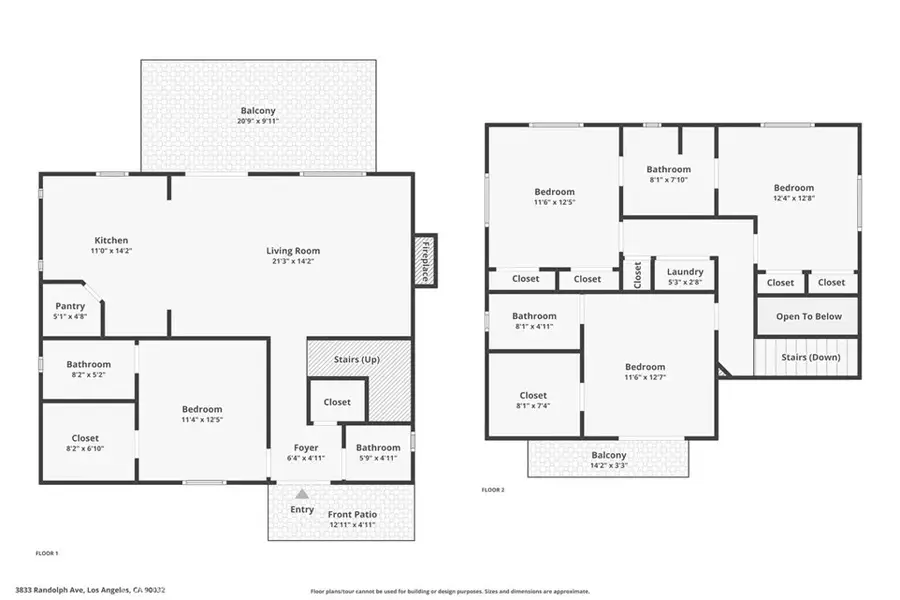
Two Homes on One Lot -BOTH HOMES VACANT– A Rare Opportunity in Elephant Hills
Perfect for multi-generational living, investment, or living in one home while renting the other.
Located in the highly desirable Elephant Hills neighborhood—just two streets off Collis and minutes from South Pasadena, a few minutes from Highland Park—this exceptional property offers two fully independent homes on a generous lot, each with its own parking and separate utilities. A truly unique find in one of Northeast LA’s most sought-after pockets.
Back House – Modern -newer Construction with Stunning Views
A newer, thoughtfully designed home featuring contemporary finishes and a flexible layout:
• First-floor Master bedroom/full bath -Second master bedroom on second floor.
• Guest-friendly half bath on the main level
• Open-concept living, dining, and kitchen ideal for entertaining
• Chef-inspired kitchen with high ceilings, custom cabinetry, pantry, island seating, and double glass doors opening to a spacious balcony overlooking mature trees and twinkling city lights
• Inviting living room with a gas fireplace—perfect for cozy evenings
• Upper level includes a second primary suite with private balcony, plus two additional bedrooms and a full bath
• Central AC and heating for year-round comfort
This home offers privacy, space, and beautiful natural surroundings. Front House – Fully Remodeled with Classic Charm
A beautifully updated 3-bedroom, 1-bath home that blends character with modern convenience:
• Brand-new kitchen cabinets with cork countertops
• Fresh interior paint and refinished hardwood floors
• Remodeled bathroom, new windows, and new roof
• New split AC/heating system
• Large basement ideal for storage, workshop, or creative studio
The expansive front yard features lush green grass—perfect for play, gardening, or enhancing curb appeal.
Outdoor Features & Lot Highlights
• Three tiers of leveled backyard with fruit trees
• Space for small RV parking in the front
• Easy access to major freeways and main streets
• Quick commute to DTLA, USC Medical Center, and all the trendy restaurants, boutiques, and coffee shops in Highland Park...
Contact an agent
Home facts
- Year built:1927
- Listing ID #:CV26047391
- Added:166 day(s) ago
- Updated:April 19, 2026 at 05:40 AM
Rooms and interior
- Bedrooms:7
- Total bathrooms:5
- Full bathrooms:5
- Kitchen Description:Double Oven, Gas Cooktop, Walk In Pantry
- Basement:Yes
- Living area:2,767 sq. ft.
Heating and cooling
- Cooling:Central Air, Wall Window Units
- Central air:Yes
Structure and exterior
- Roof:Composition
- Year built:1927
- Building area:2,767 sq. ft.
- Lot area:0.17 Acres
- Architectural Style:Mid Century Modern, Ranch
- Exterior Features:Patio, Porch
- Levels:1 Story
Utilities
- Water:Public
- Sewer:Public Sewer
Finances and disclosures
- Price:$1,399,000
- Price per sq. ft.:$505.6
Features and amenities
- Appliances:Disposal, Double Oven, Gas Cooktop
- Laundry features:Laundry Room
- Amenities:Rain Gutters, Walk In Closets
Parking
- Parking description:Driveway, One Space, Private
New listings near 3833 Randolph
- New
$1,975,000Active5 beds 4 baths3,825 sq. ft.5936 Vista De La Luz, Woodland Hills, CA 91367
MLS# CV26077248Listed by: EXP REALTY OF GREATER LOS ANGELES - New
$1,350,000Active6 beds -- baths11743 Riverside, Valley Village, CA 91607
MLS# IG26084067Listed by: ACCESS SOUTHLAND REAL ESTATE - New
$1,299,000Active4 beds 3 baths2,758 sq. ft.1971 W Santa Cruz Street, San Pedro, CA 90732
MLS# PV26082702Listed by: KELLER WILLIAMS PALOS VERDES - New
$799,000Active3 beds 1 baths1,075 sq. ft.2738 Thurman, Los Angeles, CA 90016
MLS# SB26084232Listed by: ESTATE PROPERTIES - New
$689,999Active2 beds 1 baths768 sq. ft.2617 Thorpe Avenue, Los Angeles, CA 90065
MLS# CV26084065Listed by: NEXGEN REALTORS - New
$899,950Active3 beds 2 baths1,220 sq. ft.7307 Tyrone Avenue, Van Nuys, CA 91405
MLS# OC26083240Listed by: EXP REALTY OF CALIFORNIA INC - New
$325,000Active3 beds 2 baths1,300 sq. ft.20652 Lassen #99, Chatsworth, CA 91311
MLS# SR26084193Listed by: MISSION REAL ESTATE - New
$1,199,000Active5 beds 3 baths2,184 sq. ft.4813 Topanga Canyon, Woodland Hills, CA 91364
MLS# SR26084198Listed by: ROYAL REP REALTY, INC.
$750,000Pending3 beds 2 baths1,849 sq. ft.4728 Farmdale Avenue, North Hollywood, CA 91602
MLS# 26751807Listed by: COMPASS- New
$799,000Active2 beds 2 baths1,410 sq. ft.10450 Wilshire Boulevard #4G, Los Angeles, CA 90024
MLS# 26748577Listed by: GOLDEN REAL ESTATE GROUP