18431 Coastline Drive, Malibu, CA 90265
Local realty services provided by:Nelson Shelton Real Estate ERA Powered
Listed by: michael edlen, tatiana weiss
Office: coldwell banker realty
MLS#:26661141
Source:CRMLS
Price summary
- Price:$2,225,000
About this home
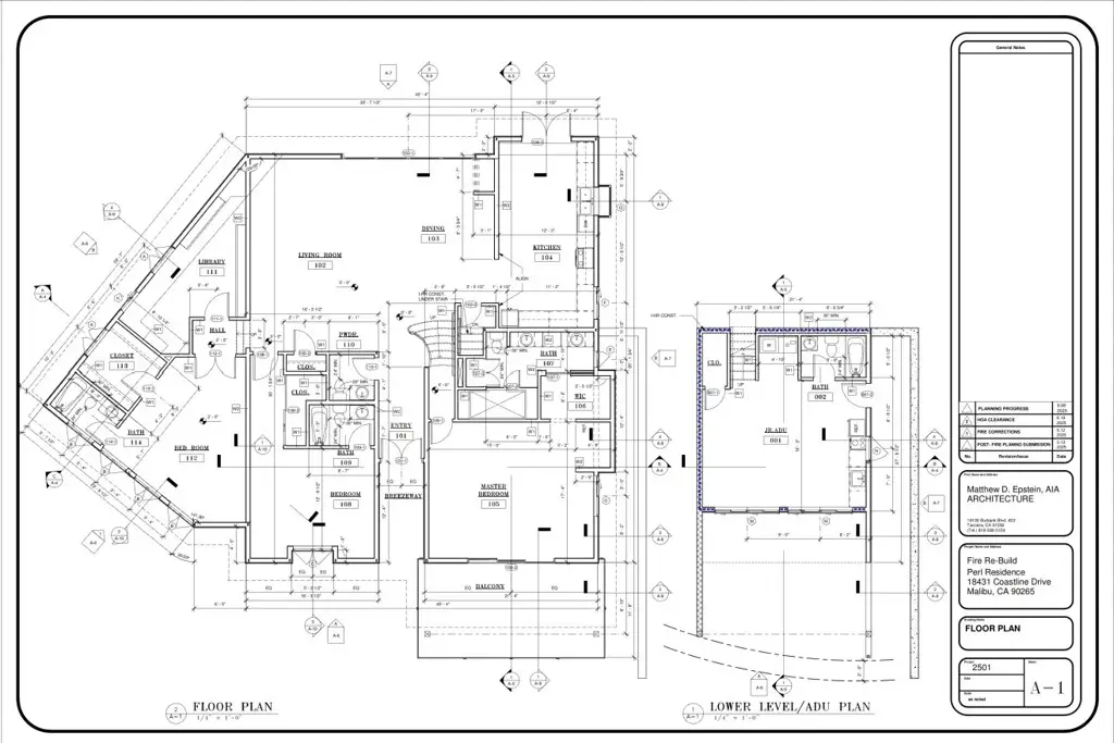
18431 Coastline is a truly exceptional ocean-view lot in Malibu's beloved Sunset Mesa enclave, offered with fully permitted plans and shovel-ready approval to build a stunning 3,166-square-foot residence featuring 4 bedrooms and 4.5 baths. This will save months of your time! Located on one of the premier view parcels in Sunset Mesa locally known as "the Mesa", this rare pie-shaped 7,723 sq ft lot allows for sweeping ocean views from the majority of the home's rooms, a feature seldom found in the neighborhood. The thoughtfully designed floorplan maximizes both the lot and the views, offering an open, flexible layout. Plans include space for a formal backyard, expansive deck, and spa, with the option to add a pool if desired. The project has already been approved by Sunset Mesa's Architectural Committee, making this an exceptionally rare, ready-to-build opportunity. Sunset Mesa is one of Malibu's few master-planned ocean view communities, featuring underground utilities, wide sidewalks, extra-wide streets, no parking restrictions, and protected views enforced by CC&R regulations. The home also boasts a generous backyard and an oversized front balcony perfect for entertaining, with panoramic views stretching from the sandy beaches to the Santa Monica Pier. By night, the coastline lights along PCH create a magical glow across the ocean. Residents enjoy access to the highly regarded Malibu School District, known for its approximately 15:1 student-teacher ratio and neighborhood bus pickup. The Mesa offers exceptional privacy with no retail and no through streets, yet remains conveniently close to Santa Monica (3 miles), the Palisades (1.5 miles), and downtown Malibu (4 miles). Best of all, the beach is just minutes away! Neither Seller nor Broker/Agents guarantee the accuracy of the square footage, lot size, permits or other information concerning the conditions or features of the property. Buyer is advised to independently verify the accuracy of all information (including square footage) through personal inspections and with the appropriate professionals. Views, if any, are based on current conditions and drone imagery taken at the time of listing. Future construction or development may impact views. Buyer to independently verify. See DOCS for Offer Guidelines and plans, etc. See Virtual Tour for view 360. Ask for plans + ADU.
Contact an agent
Home facts
- Listing ID #:26661141
- Added:1 day(s) ago
- Updated:March 11, 2026 at 03:30 AM
Structure and exterior
- Lot area:0.18 Acres
Finances and disclosures
- Price:$2,225,000
New listings near 18431 Coastline Drive
- New
$895,000Active4.95 Acres26907 Sea Vista Drive, Malibu, CA 90265
MLS# 26663335Listed by: VISTA SOTHEBY'S INTERNATIONAL REALTY - New
$13,600,000Active7 beds 11 baths12,508 sq. ft.32180 Mulholland Highway, Malibu, CA 90265
MLS# 26663275Listed by: KELLER WILLIAMS STUDIO CITY - New
$14,950,000Active7 beds 11 baths12,504 sq. ft.27405 Pacific Coast Highway, Malibu, CA 90265
MLS# 26663047Listed by: THE AGENCY - New
$5,695,000Active6 beds 4 baths4,222 sq. ft.31201 Bailard Road, Malibu, CA 90265
MLS# 26662531Listed by: SOTHEBY'S INTERNATIONAL REALTY - New
$1,995,000Active1 beds 1 baths900 sq. ft.22548 Pacific Coast Highway #203, Malibu, CA 90265
MLS# 26663213Listed by: COMPASS - New
$995,000Active2 beds 2 baths992 sq. ft.23901 Civic Center Way #114, Malibu, CA 90265
MLS# 26663005Listed by: COLDWELL BANKER REALTY - New
$150,000Active0.36 Acres21532 Rambla Vista, Malibu, CA 90265
MLS# 26663093Listed by: COLDWELL BANKER REALTY - New
$2,495,000Active3 beds 4 baths2,541 sq. ft.2044 Corral Canyon Road, Malibu, CA 90265
MLS# FR26053387Listed by: DOMBROSKI REALTY - New
$1,495,000Active0.21 Acres3637 Seahorn Drive, Malibu, CA 90265
MLS# 26662903Listed by: COMPASS - New
$2,450,000Active2 beds 3 baths2,290 sq. ft.23971 De Ville Way, Malibu, CA 90265
MLS# 26662837Listed by: EQUITY ADVISORS