2613 Red Tail Hawk Road, Modesto, CA 95357

Local realty services provided by:ERA Carlile Realty Group
2613 Red Tail Hawk Road,Modesto, CA 95357
$559,990
  • 3 Beds
  • 2 Baths
  • 1,557 sq. ft.
  • Single family
  • Pending
Listed by: lisa celestino
Office: kb home sales-northern california inc
MLS#:225151339
Source:MFMLS

Price summary

  • Price:$559,990
  • Price per sq. ft.:$359.66

About this home

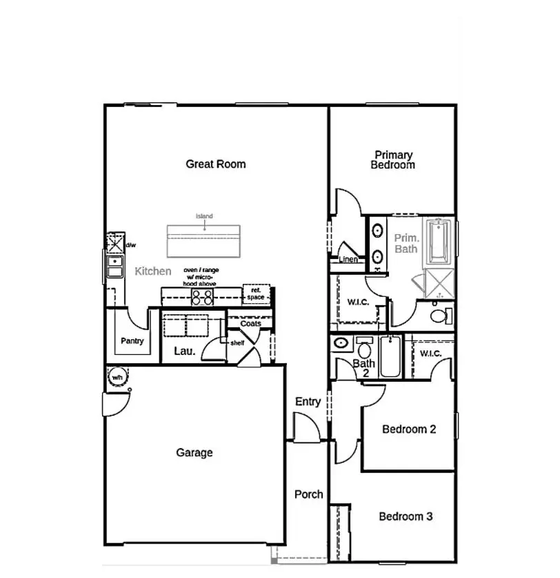
Under Construction, this European cottage-style single-story home features 9-ft. ceilings and an inviting open-concept layout. The well-appointed kitchen showcases almond-stained cabinetry, quartz countertops, a walk-in pantry, a central island overlooking the spacious Great Room, and a Whirlpool® appliance package. A dedicated laundry room adds everyday convenience. Energy-efficient highlights include WaterSense® fixtures, low-E windows, a smart thermostat, and an electric water heater. Located in the new Summerfield at Tivoli community, this home is ideally situated near Highways 99 and 120, offering easy access to nearby cities, shopping and dining, as well as parks, waterways, and outdoor recreation for year-round enjoyment.

Contact an agent

contact an agent

Yes, I would like more information. Please use and/or share my information with an ERA®  affiliated agent to contact me about my real estate needs. By clicking Send message, I request to be contacted by phone or text message and consent to being contacted by automated means. I understand that my consent to receive calls or texts is not a condition of purchasing any property, goods, or services. Alternatively, I understand that I can access real estate services by email or I can contact the agent myself.

If an ERA®  affiliated agent is not available in the area where I need assistance, I agree to be contacted by a real estate agent affiliated with another brand owned or licensed by Anywhere Real Estate (BHGRE® , CENTURY 21® , Coldwell Banker® , Corcoran® , Sotheby's International Realty® ).
 I acknowledge that I have read and agree to theTerms of useandPrivacy notice

Home facts

  • Listing ID #:225151339
  • Added:106 day(s) ago
  • Updated:March 29, 2026 at 07:15 AM

Rooms and interior

  • Bedrooms:3
  • Total bathrooms:2
  • Full bathrooms:2
  • Flooring:Carpet, Vinyl
  • Living area:1,557 sq. ft.

Heating and cooling

  • Cooling:Central
  • Heating:Central

Structure and exterior

  • Roof:Tile
  • Building area:1,557 sq. ft.
  • Lot area:0.14 Acres
  • Construction Materials:Stucco, Wood
  • Foundation Description:Concrete, Slab
  • Levels:1 Story

Utilities

  • Sewer:Public Sewer

Finances and disclosures

  • Price:$559,990
  • Price per sq. ft.:$359.66

Features and amenities

  • Laundry features:Inside Laundry Room

Parking

  • Garage spaces:2
MLS LogoMetroList MLS 2026. This information is being provided by MetroList MLS. All measurements and calculations of area are approximate. Information provided by Seller/Other sources, not verified by Broker. All interested persons should independently verify accuracy of information. Provided properties may or may not be listed by the office/agent presenting the information. Data Updated: March 29, 2026. Information being provided is for consumers' personal, non-commercial use and may not be used for any purpose other than to identify prospective properties consumers may be interested in purchasing. Information deemed reliable but not guaranteed. Any offer of compensation is made only to Participants of MLS where the subject listing is filed and in accordance with such MLS's regulations or rules.