211 Via Dijon, Newport Beach, CA 92663
Local realty services provided by:ERA North Orange County Real Estate
211 Via Dijon,Newport Beach, CA 92663
$3,990,000
- 3 Beds
- 4 Baths
- 2,108 sq. ft.
- Single family
- Active
Listed by: jon flagg
Office: pacific sotheby's int'l realty
MLS#:NP25272137
Source:San Diego MLS via CRMLS
Price summary
- Price:$3,990,000
- Price per sq. ft.:$1,892.79
- Monthly HOA dues:$133.33
About this home
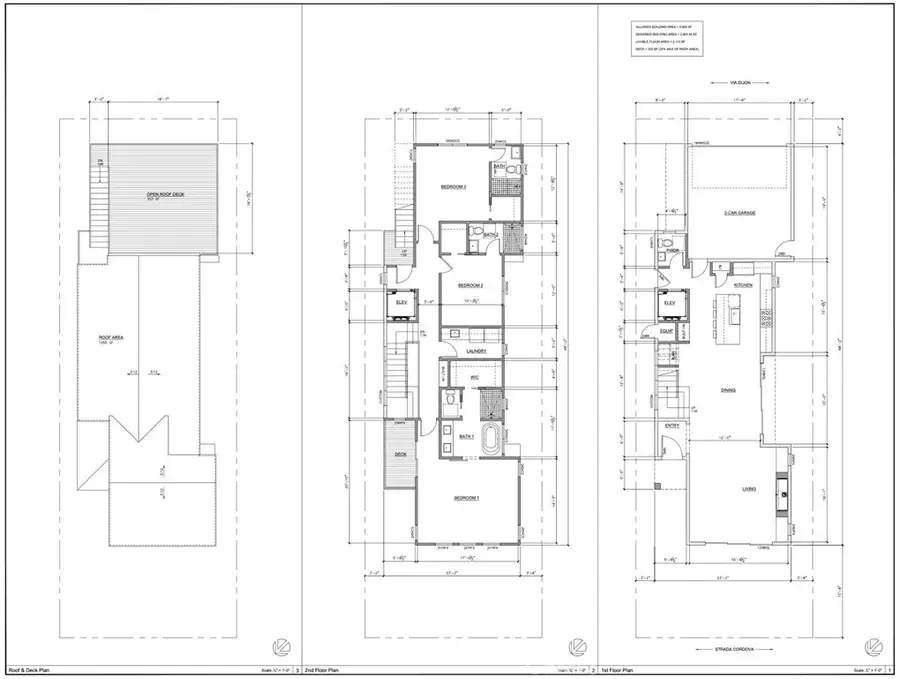
Build Your Dream Home on Lido Isle – Shovel-Ready Opportunity An exceptional opportunity awaits on Lido Isle to create your custom coastal residence without the delays of starting from scratch. The seller has completed all of the heavy lifting—architecture, city, HOA, and engineering approvals—so that the next owner can hit the ground running once the County records the new parcel number. This “shovel-ready” lot includes fully designed plans for a sophisticated 3-bedroom, 3.5-bath home featuring an elevator and rooftop deck, thoughtfully conceived to capture the relaxed yet refined essence of island living. Set within Newport Beach’s premier island enclave, this property offers convenient proximity to the Lido Marina Village, yacht club, tennis and pickleball courts, and the island’s private beaches. Enjoy the rare advantage of beginning your build immediately in one of coastal Orange County’s most desirable neighborhoods—an ideal opportunity to bring your vision to life on Lido Isle. Note: There is not a structure currently on the parcel. Offering is for a lot with plans to build, which will be approved once the APN is recorded. Prior lot was split into two parcels.
Contact an agent
Home facts
- Year built:2025
- Listing ID #:NP25272137
- Added:69 day(s) ago
- Updated:December 14, 2025 at 03:33 PM
Rooms and interior
- Bedrooms:3
- Total bathrooms:4
- Full bathrooms:3
- Half bathrooms:1
- Living area:2,108 sq. ft.
Heating and cooling
- Cooling:Central Forced Air
- Heating:Forced Air Unit
Structure and exterior
- Roof:Slate
- Year built:2025
- Building area:2,108 sq. ft.
Utilities
- Water:Public
- Sewer:Public Sewer
Finances and disclosures
- Price:$3,990,000
- Price per sq. ft.:$1,892.79
New listings near 211 Via Dijon
- New
$1,200,000Active2 beds 2 baths1,397 sq. ft.48 Baycrest Court #32, Newport Beach, CA 92660
MLS# OC25274888Listed by: SOLTERRA ESTATES & LENDING INC - New
$10,995,000Active7 beds 6 baths5,084 sq. ft.3024 Breakers Drive, Corona Del Mar, CA 92625
MLS# NP25275171Listed by: COLDWELL BANKER REALTY - New
$10,995,000Active7 beds 6 baths5,084 sq. ft.3024 Breakers Drive, Corona Del Mar, CA 92625
MLS# NP25275171Listed by: COLDWELL BANKER REALTY - Open Thu, 11am to 2pmNew
$10,995,000Active7 beds 6 baths5,084 sq. ft.3024 Breakers Drive, Corona Del Mar, CA 92625
MLS# NP25275171Listed by: COLDWELL BANKER REALTY - New
$29,750,000Active5 beds 4 baths3,745 sq. ft.2572 Bayshore, Newport Beach, CA 92663
MLS# LG25274127Listed by: PACIFIC SOTHEBYS INTERNATIONAL REALTY - New
$29,750,000Active5 beds 4 baths3,745 sq. ft.2572 Bayshore, Newport Beach, CA 92663
MLS# LG25274127Listed by: PACIFIC SOTHEBYS INTERNATIONAL REALTY - New
$2,950,000Active2 beds 4 baths1,848 sq. ft.1300 W Balboa Boulevard, Newport Beach, CA 92661
MLS# NP25273834Listed by: PACIFIC SOTHEBY'S INT'L REALTY - New
$1,899,000Active2 beds 2 baths961 sq. ft.330 Marguerite #A, Corona Del Mar, CA 92625
MLS# OC25273322Listed by: COLDWELL BANKER REALTY - New
$5,295,000Active3 beds 2 baths2,474 sq. ft.1007 White Sails, Corona Del Mar, CA 92625
MLS# NP25274443Listed by: VALIA PROPERTIES - New
$1,899,000Active2 beds 2 baths961 sq. ft.330 Marguerite #A, Corona Del Mar, CA 92625
MLS# OC25273322Listed by: COLDWELL BANKER REALTY