211 Via Dijon, Newport Beach, CA 92663

Local realty services provided by:ERA North Orange County Real Estate
211 Via Dijon,Newport Beach, CA 92663
$4,200,000
  • 3 Beds
  • 4 Baths
  • 2,108 sq. ft.
  • Single family
  • Active
Listed by: jon flagg
Office: pacific sotheby's int'l realty
MLS#:NP25234271
Source:CRMLS

Price summary

  • Price:$4,200,000
  • Price per sq. ft.:$1,992.41
  • Monthly HOA dues:$133.33

About this home

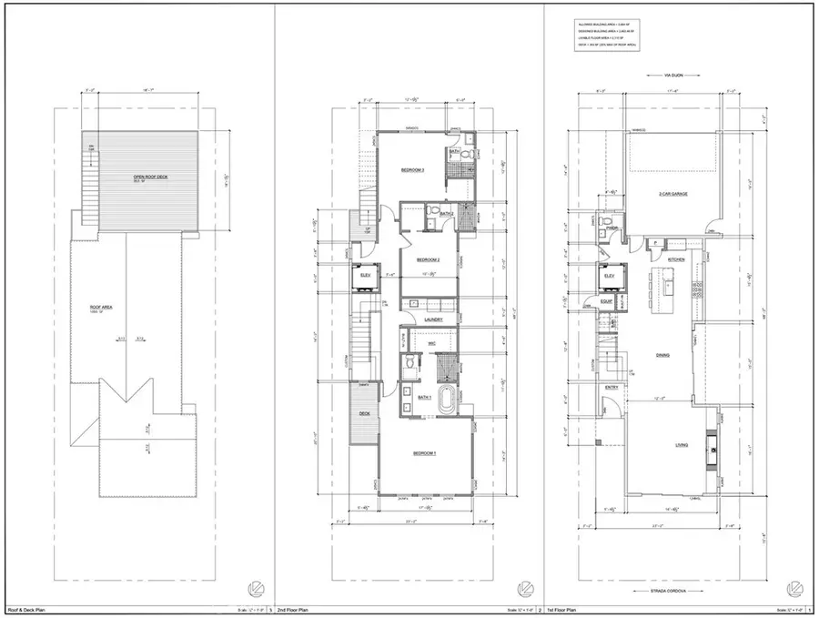
Build Your Dream Home on Lido Isle – Shovel-Ready Opportunity An exceptional opportunity awaits on Lido Isle to create your custom coastal residence without the delays of starting from scratch. The seller has completed all of the heavy lifting—architecture, city, HOA, and engineering approvals—so that the next owner can hit the ground running once the County records the new parcel number. This “shovel-ready” lot includes fully designed plans for a sophisticated 3-bedroom, 3.5-bath home featuring an elevator and rooftop deck, thoughtfully conceived to capture the relaxed yet refined essence of island living. Set within Newport Beach’s premier island enclave, this property offers convenient proximity to the Lido Marina Village, yacht club, tennis and pickleball courts, and the island’s private beaches. Enjoy the rare advantage of beginning your build immediately in one of coastal Orange County’s most desirable neighborhoods—an ideal opportunity to bring your vision to life on Lido

Contact an agent

contact an agent

Yes, I would like more information from ERA®. Please use and/or share my information with an ERA affiliated agent to contact me about my real estate needs. By clicking Send message, I agree an ERA affiliated agent may contact me by phone or text message including by automated means about real estate services, and that I can access real estate services without providing my phone number. I acknowledge that I have read and agree to theTerms of useandPrivacy notice

Home facts

  • Year built:2025
  • Listing ID #:NP25234271
  • Added:44 day(s) ago
  • Updated:November 21, 2025 at 11:48 AM

Rooms and interior

  • Bedrooms:3
  • Total bathrooms:4
  • Full bathrooms:3
  • Half bathrooms:1
  • Living area:2,108 sq. ft.

Heating and cooling

  • Cooling:Central Air
  • Heating:Forced Air

Structure and exterior

  • Roof:Slate
  • Year built:2025
  • Building area:2,108 sq. ft.
  • Lot area:0.06 Acres

Utilities

  • Water:Public
  • Sewer:Public Sewer

Finances and disclosures

  • Price:$4,200,000
  • Price per sq. ft.:$1,992.41
The information being provided by California Regional MLS (Southern California) is for the consumer's personal, non-commercial use and may not be used for any purpose other than to identify prospective properties consumer may be interested in purchasing. Any information relating to real estate for sale referenced on this web site comes from the Internet Data Exchange (IDX) program of the California Regional MLS (Southern California). ERA North Orange County Real Estate is not a Multiple Listing Service (MLS), nor does it offer MLS access. This website is a service of ERA North Orange County Real Estate, a broker participant of California Regional MLS (Southern California). This web site may reference real estate listing(s) held by a brokerage firm other than the broker and/or agent who owns this web site. The accuracy of all information, regardless of source, including but not limited to open house information, square footages and lot sizes, is deemed reliable but not guaranteed and should be personally verified through personal inspection by and/or with the appropriate professionals. The data contained herein is copyrighted by California Regional MLS (Southern California) and is protected by all applicable copyright laws. Any unauthorized dissemination of this information is in violation of copyright laws and is strictly prohibited. Copyright 2021 California Regional MLS (Southern California). All rights reserved.