162 Lost River Drive, Palm Desert, CA 92211

Local realty services provided by:ERA Donahoe Realty
162 Lost River Drive,Palm Desert, CA 92211
$699,000
  • 2 Beds
  • 4 Baths
  • 2,184 sq. ft.
  • Condominium
  • Active
Listed by:terri munselle
Office:the agency
MLS#:219131537DA
Source:CRMLS

Price summary

  • Price:$699,000
  • Price per sq. ft.:$320.05
  • Monthly HOA dues:$1,887

About this home

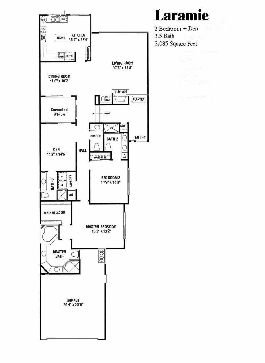
Huge Price Reduction! Lakefront Condo! This Laramie model at The Lakes Country Club has spectacular views of lake & waterfalls. 2 ensuite bedrooms + Den/3rd ensuite bedroom and converted atrium. The private tiled patio has a built-in BBQ and looks right on to the lake and waterfalls...great for bird-watching! The high ceilings and windows with peaked roof provide great light. Private, gated front courtyard leads to a tiled entry that opens to the living & dining areas. Living Room features a wet bar and fireplace, with slider doors to the patio. The kitchen has updated granite counters and opens out to the patio and BBQ area. Atrium was converted to create a separate den/office space, adjoining the 3rd guest bedroom/den. Primary suite features a large walk-in closet - ensuite bathroom has dual sinks, jacuzzi tub and separate shower. Additional ensuite guest room features dual sinks and a shower in the bathroom. Powder Room and a separate laundry room. Attached 2-car garage with

Contact an agent

contact an agent

Yes, I would like more information from ERA®. Please use and/or share my information with an ERA affiliated agent to contact me about my real estate needs. By clicking Send message, I agree an ERA affiliated agent may contact me by phone or text message including by automated means about real estate services, and that I can access real estate services without providing my phone number. I acknowledge that I have read and agree to theTerms of useandPrivacy notice

Home facts

  • Year built:1983
  • Listing ID #:219131537DA
  • Added:110 day(s) ago
  • Updated:October 04, 2025 at 02:16 PM

Rooms and interior

  • Bedrooms:2
  • Total bathrooms:4
  • Full bathrooms:3
  • Half bathrooms:1
  • Living area:2,184 sq. ft.

Heating and cooling

  • Cooling:Central Air
  • Heating:Central, Fireplaces, Natural Gas

Structure and exterior

  • Year built:1983
  • Building area:2,184 sq. ft.
  • Lot area:0.07 Acres

Finances and disclosures

  • Price:$699,000
  • Price per sq. ft.:$320.05
The information being provided by California Regional MLS (Southern California) is for the consumer's personal, non-commercial use and may not be used for any purpose other than to identify prospective properties consumer may be interested in purchasing. Any information relating to real estate for sale referenced on this web site comes from the Internet Data Exchange (IDX) program of the California Regional MLS (Southern California). ERA Donahoe Realty is not a Multiple Listing Service (MLS), nor does it offer MLS access. This website is a service of ERA Donahoe Realty, a broker participant of California Regional MLS (Southern California). This web site may reference real estate listing(s) held by a brokerage firm other than the broker and/or agent who owns this web site. The accuracy of all information, regardless of source, including but not limited to open house information, square footages and lot sizes, is deemed reliable but not guaranteed and should be personally verified through personal inspection by and/or with the appropriate professionals. The data contained herein is copyrighted by California Regional MLS (Southern California) and is protected by all applicable copyright laws. Any unauthorized dissemination of this information is in violation of copyright laws and is strictly prohibited. Copyright 2021 California Regional MLS (Southern California). All rights reserved.