2648 Bandit Lane, Palm Springs, CA 92264

Local realty services provided by:ERA North Orange County Real Estate
2648 Bandit Lane,Palm Springs, CA 92264
$967,835
  • 3 Beds
  • 4 Baths
  • 2,110 sq. ft.
  • Single family
  • Active
Listed by:todd myatt
Office:century 21 masters
MLS#:SW25141278
Source:San Diego MLS via CRMLS

Price summary

  • Price:$967,835
  • Price per sq. ft.:$458.69
  • Monthly HOA dues:$246

About this home

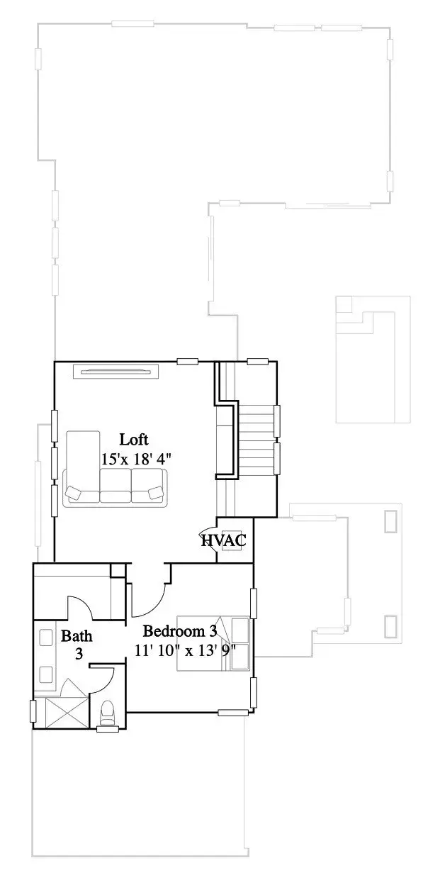
NEW CONSTRUCTION! Solar System Included! This new two-story home features an inviting courtyard and swimming pool to encourage easy outdoor entertainment and leisure. An open-concept layout blends the kitchen, living and dining areas for simple transitions and multitasking, with a luxurious owners suite at the back of the home, complete with a full bathroom and walk-in closet. A secondary bedroom is located near the front just steps from a full bathroom, and a versatile loft on the second floor is easily accessible from an additional bedroom. The kitchen features Miami Vena white quartz countertops and summer breeze cabinetry. Canyon View is a new community of single-family homes for sale in Palm Springs, CA. Residents will enjoy access to an onsite park and an array of shopping, dining and entertainment options in downtown Palm Springs, just five miles away. Plan a fun-filled weekend trip to Agua Caliente Casino for upscale gaming and entertainment, or head out to one of the several

Contact an agent

contact an agent

Yes, I would like more information from ERA®. Please use and/or share my information with an ERA affiliated agent to contact me about my real estate needs. By clicking Send message, I agree an ERA affiliated agent may contact me by phone or text message including by automated means about real estate services, and that I can access real estate services without providing my phone number. I acknowledge that I have read and agree to theTerms of useandPrivacy notice

Home facts

  • Year built:2025
  • Listing ID #:SW25141278
  • Added:102 day(s) ago
  • Updated:October 05, 2025 at 01:53 PM

Rooms and interior

  • Bedrooms:3
  • Total bathrooms:4
  • Full bathrooms:3
  • Half bathrooms:1
  • Living area:2,110 sq. ft.

Heating and cooling

  • Cooling:Central Forced Air
  • Heating:Forced Air Unit

Structure and exterior

  • Year built:2025
  • Building area:2,110 sq. ft.

Utilities

  • Water:Public, Water Connected
  • Sewer:Public Sewer, Sewer Connected

Finances and disclosures

  • Price:$967,835
  • Price per sq. ft.:$458.69
MLS LogoThis information is deemed reliable but not guaranteed. You should rely on this information only to decide whether or not to further investigate a particular property. BEFORE MAKING ANY OTHER DECISION, YOU SHOULD PERSONALLY INVESTIGATE THE FACTS (e.g. square footage and lot size) with the assistance of an appropriate professional. You may use this information only to identify properties you may be interested in investigating further. All uses except for personal, non-commercial use in accordance with the foregoing purpose are prohibited. Redistribution or copying of this information, any photographs or video tours is strictly prohibited. This information is derived from the Internet Data Exchange (IDX) service provided by San Diego MLS®. Displayed property listings may be held by a brokerage firm other than the broker and/or agent responsible for this display. The information and any photographs and video tours and the compilation from which they are derived is protected by copyright. Compilation © 2020 San Diego MLS®, Inc.