18557 Mescal Street, Rowland Heights, CA 91748
Local realty services provided by:ERA North Orange County Real Estate
18557 Mescal Street,Rowland Heights, CA 91748
$835,000
- 3 Beds
- 2 Baths
- 1,372 sq. ft.
- Single family
- Pending
Listed by:rosann rock
Office:berkshire hath hm svcs ca prop
MLS#:CV25112966
Source:San Diego MLS via CRMLS
Price summary
- Price:$835,000
- Price per sq. ft.:$608.6
About this home
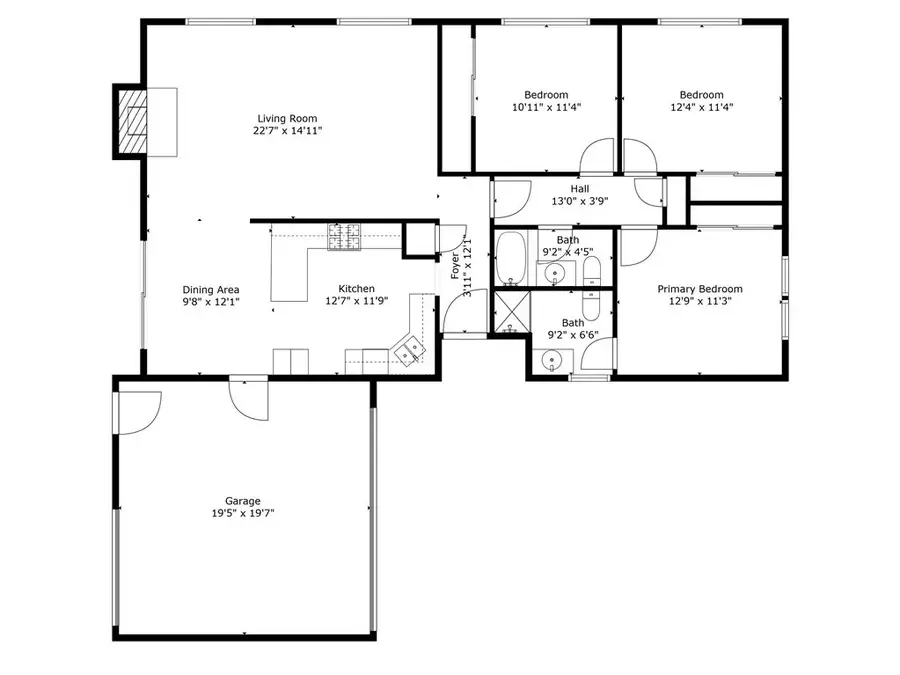
Step into comfort, style, and modern convenience with this beautifully maintained single-story gem!Boasting 3 spacious bedrooms and 2 updated bathrooms across 1,372 sq ft of thoughtfully designed living space, this home sits on an expansive 5,951 sq ft lot in a prime location. Inside, you'll find a light-filled open floor plan where the spacious living room-with its cozy fireplace-sets the tone for both everyday living and effortless entertaining. The updated kitchen features sleek stainless-steel appliances, granite countertops, and a casual breakfast bar that flows seamlessly into the dining area. Glass sliders open to a covered patio-perfect for weekend BBQs or relaxed outdoor lounging-while the private backyard, enhanced with newer fencing, offers plenty of room for play, gardening, or future expansion. The primary suite features its own private en-suite bath, while two additional bedrooms and a full hall bath provide ideal flexibility for guests, family, or a home office. Recent upgrades include fresh interior paint, new flooring, recessed lighting, and a 240 AMP EV charging outlet. The long concrete driveway offers generous parking, and the attached two-car garage includes laundry, direct home access, and a rare rear pass-through door-ideal for backyard projects, extra storage, or easy access. All this, just minutes from top-rated schools, shopping, dining, and convenient commuter access to the 57, 60, and 10 freeways. Move-in ready and packed with value-dont miss your chance to call this one home!
Contact an agent
Home facts
- Year built:1965
- Listing ID #:CV25112966
- Added:131 day(s) ago
- Updated:October 01, 2025 at 07:32 AM
Rooms and interior
- Bedrooms:3
- Total bathrooms:2
- Full bathrooms:2
- Living area:1,372 sq. ft.
Heating and cooling
- Cooling:Central Forced Air
- Heating:Forced Air Unit
Structure and exterior
- Roof:Composition
- Year built:1965
- Building area:1,372 sq. ft.
Utilities
- Water:Public, Water Connected
- Sewer:Public Sewer, Sewer Connected
Finances and disclosures
- Price:$835,000
- Price per sq. ft.:$608.6
New listings near 18557 Mescal Street
- New$1,950,000Active5 beds 4 baths3,245 sq. ft.
20374 20374 Bickford, Walnut, CA 91789
MLS# WS25229211Listed by: SIGNAL REALTY - New$1,550,000Active6 beds 5 baths3,536 sq. ft.
18489 Stonegate Lane, Rowland Heights, CA 91748
MLS# WS25183181Listed by: IRN REALTY - New$888,000Active3 beds 2 baths1,040 sq. ft.
18654 Del Bonita, Rowland Heights, CA 91748
MLS# TR25224959Listed by: CENTURY 21 MASTERS - New$1,168,000Active4 beds 3 baths2,218 sq. ft.
17834 Calle Los Arboles, Rowland Heights, CA 91748
MLS# CV25219358Listed by: RE/MAX 2000 REALTY - New$1,328,000Active5 beds 2 baths2,241 sq. ft.
2503 Donosa, Rowland Heights, CA 91748
MLS# OC25224737Listed by: MCSEN REALTY CORP. - New$828,000Active4 beds 2 baths1,400 sq. ft.
18220 Gallineta Street, Rowland Heights, CA 91748
MLS# WS25223766Listed by: IBUILDER GROUP - New$1,180,000Active5 beds 3 baths2,578 sq. ft.
2503 Toro Dr, Rowland Heights, CA 91748
MLS# WS25224218Listed by: RUBY FIELD CORP - New$828,000Active4 beds 2 baths1,400 sq. ft.
18220 Gallineta Street, Rowland Heights, CA 91748
MLS# WS25223766Listed by: IBUILDER GROUP - $3,300,000Active5 beds 6 baths5,000 sq. ft.
20456 Holcroft Drive, Walnut, CA 91789
MLS# SW25218999Listed by: LISTED SIMPLY - $885,000Active3 beds 2 baths1,202 sq. ft.
18593 Fieldbrook Street, Rowland Heights, CA 91748
MLS# OC25216387Listed by: HARVEST REALTY DEVELOPMENT