1353 W Arrow Highway, San Dimas, CA 91773

Local realty services provided by:Nelson Shelton Real Estate ERA Powered
1353 W Arrow Highway,San Dimas, CA 91773
$1,690,000
  • 1.32 Acres
  • Lots / Land
  • Pending
Listed by: mingli wang
Office: realty one group united310-356-0940
MLS#:SB26001791
Source:CRMLS

Price summary

  • Price:$1,690,000

About this home

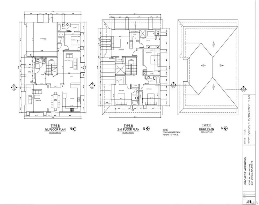
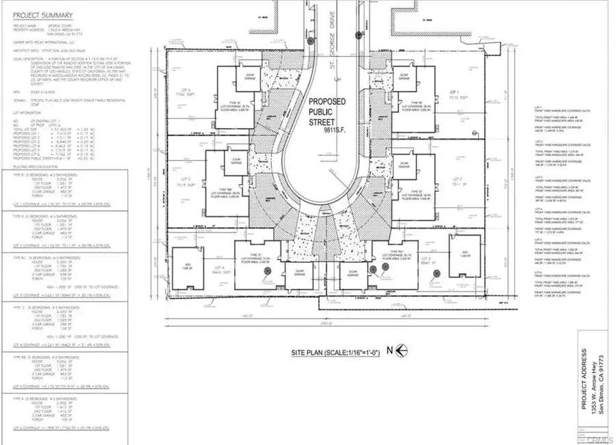
Rare residential development Opportunity in the Heart of San Dimas, this parcel spans approximately 1.32 acres in a residential neighborhood. The property is ideally suited for residential development, offering a flat topography that can help streamline planning and construction, multiple single-family homes with ADUs are possible, subject to buyer verification and local zoning requirements. The property is surrounded by established residential neighborhoods, businesses, schools, and is just minutes from the 210 and 57 freeways, offering superb connectivity and convenience. Enjoy close proximity to shopping, dining, parks, and downtown San Dimas, as well as access to highly regarded local schools. This exceptional vacant lot offers outstanding potential in the thriving city of San Dimas. With limited land availability in the area, this is a rare opportunity for developers, builders, or investors seeking long-term value appreciation. Whether envisioned for a custom...

Contact an agent

contact an agent

Yes, I would like more information. Please use and/or share my information with an ERA®  affiliated agent to contact me about my real estate needs. By clicking Send message, I request to be contacted by phone or text message and consent to being contacted by automated means. I understand that my consent to receive calls or texts is not a condition of purchasing any property, goods, or services. Alternatively, I understand that I can access real estate services by email or I can contact the agent myself.

If an ERA®  affiliated agent is not available in the area where I need assistance, I agree to be contacted by a real estate agent affiliated with another brand owned or licensed by Anywhere Real Estate (BHGRE® , CENTURY 21® , Coldwell Banker® , Corcoran® , Sotheby's International Realty® ).
 I acknowledge that I have read and agree to theTerms of useandPrivacy notice

Home facts

  • Listing ID #:SB26001791
  • Added:341 day(s) ago
  • Updated:May 17, 2026 at 07:26 AM

Structure and exterior

  • Lot area:1.32 Acres
  • Lot Features:Cul De Sac

Finances and disclosures

  • Price:$1,690,000
The information being provided by California Regional MLS (Southern California) is for the consumer's personal, non-commercial use and may not be used for any purpose other than to identify prospective properties consumer may be interested in purchasing. Any information relating to real estate for sale referenced on this web site comes from the Internet Data Exchange (IDX) program of the California Regional MLS (Southern California). Nelson Shelton Real Estate ERA Powered is not a Multiple Listing Service (MLS), nor does it offer MLS access. This website is a service of Nelson Shelton Real Estate ERA Powered, a broker participant of California Regional MLS (Southern California). This web site may reference real estate listing(s) held by a brokerage firm other than the broker and/or agent who owns this web site. The accuracy of all information, regardless of source, including but not limited to open house information, square footages and lot sizes, is deemed reliable but not guaranteed and should be personally verified through personal inspection by and/or with the appropriate professionals. The data contained herein is copyrighted by California Regional MLS (Southern California) and is protected by all applicable copyright laws. Any unauthorized dissemination of this information is in violation of copyright laws and is strictly prohibited. Copyright 2021 California Regional MLS (Southern California). All rights reserved.