9240 Harness St, Spring Valley, CA 91977

Local realty services provided by:ERA Excel Realty
9240 Harness St,Spring Valley, CA 91977
$1,800,000
  • 5 Beds
  • 3 Baths
  • - sq. ft.
  • Single family
  • Active
Listed by: david jefferson
Office: weichert socal
MLS#:250036641SD
Source:CRMLS

Price summary

  • Price:$1,800,000

About this home

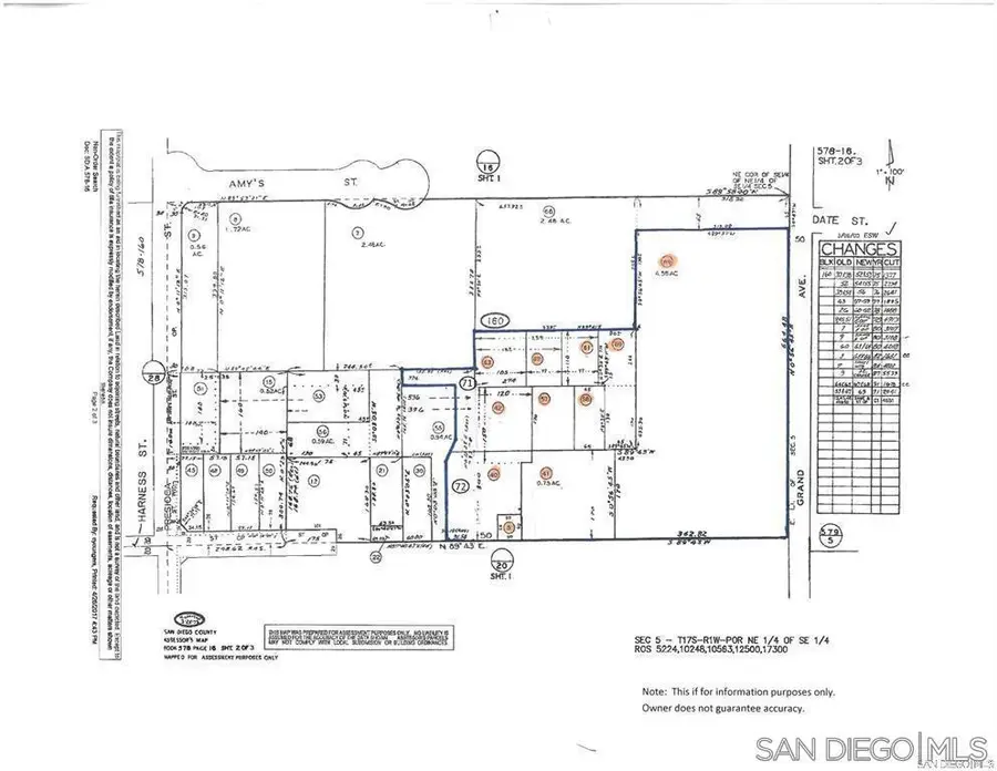
Unique development opportunity: 13 parcels totaling 8 acres in San Diego County. Includes 3 tenant-occupied homes in poor, likely uninhabitable condition—not up to code. Sold as vacant land; no warranties made. Part of the land is undevelopable due to open space easement and topography. Preliminary talks with San Diego County suggest potential for up to 26 lots (6,000 SF each) could be approved. Buyer to verify all info; seller and broker make no guarantees on approvals or development. Buyers & buyers agent to verify all herein prior to submitting an offer! APN #1- 578-160-05-00 APN #2 - 578-160-40-00 APN #3- 578-160-41-00 APN #4- 578-160-42-00 APN #5- 578-160-57-00 APN #6- 578-160-58-00 APN #7- 578-160-61-00 APN #8- 578-160-62-00 APN #9- 578-160-63-00 APN #10- 578-160-66-00 APN #11- 578-160-69-00 APN #12- 578-160-71-00 APN #13 -578-160-72-00

Contact an agent

contact an agent

Yes, I would like more information from ERA®. Please use and/or share my information with an ERA affiliated agent to contact me about my real estate needs. By clicking Send message, I agree an ERA affiliated agent may contact me by phone or text message including by automated means about real estate services, and that I can access real estate services without providing my phone number. I acknowledge that I have read and agree to theTerms of useandPrivacy notice

Home facts

  • Year built:1934
  • Listing ID #:250036641SD
  • Added:92 day(s) ago
  • Updated:November 20, 2025 at 02:18 PM

Rooms and interior

  • Bedrooms:5
  • Total bathrooms:3
  • Full bathrooms:3

Heating and cooling

  • Heating:Natural Gas

Structure and exterior

  • Roof:Shingle
  • Year built:1934

Finances and disclosures

  • Price:$1,800,000
Based on information from California Regional Multiple Listing Service, Inc. as of November 20, 2025 . This information is for your personal, non-commercial use and may not be used for any purpose other than to identify prospective properties you may be interested in purchasing. Display of MLS data is usually deemed reliable but is NOT guaranteed accurate by the MLS. Buyers are responsible for verifying the accuracy of all information and should investigate the data themselves or retain appropriate professionals. Information from sources other than the Listing Agent may have been included in the MLS data. Unless otherwise specified in writing, Broker/Agent has not and will not verify any information obtained from other sources. The Broker/Agent providing the information contained herein may or may not have been the Listing and/or Selling Agent. The information provided is for consumers' personal, non-commercial use and may not be used for any purpose other than to identify prospective properties consumers may be interested in purchasing. All properties are subject to prior sale or withdrawal. All information provided is deemed reliable but is not guaranteed accurate, and should be independently verified.