15315 Tokay Street, Victorville, CA 92395

Local realty services provided by:ERA North Orange County Real Estate
15315 Tokay Street,Victorville, CA 92395
$495,000
  • 0.58 Acres
  • Lots / Land
  • Active
Listed by: barry goodrich909-534-7056
Office: keller williams realty
MLS#:IV25036206
Source:CAREIL

Price summary

  • Price:$495,000

About this home

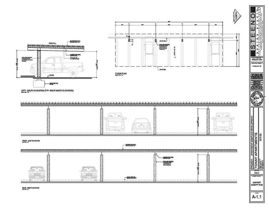
HUGE PRICE REDUCTION !! Shovel-Ready 8-Unit Apartment Complex – Prime Investment Opportunity! Seller financing options available. Skip the wait and start building ASAP with this fully approved 8-unit apartment complex! All plans approved and in place, saving you up to two years of work and ensuring a hassle-free development process. Located in a high-demand area, this project is designed to maximize rental income and deliver strong returns. Each unit is projected to rent for $2,200 per month, generating a value at a 6% cap rate of $3,500,000—a perfect formula for long-term success. Don’t miss this rare shovel-ready opportunity to secure a high-performing asset. Plans and drawings are under the supplements tab. Act now—opportunities like this won’t last! Contact us today for details! This is your chance to hit the ground running. and secure this shovel-ready opportunity!

Contact an agent

contact an agent

Yes, I would like more information. Please use and/or share my information with an ERA®  affiliated agent to contact me about my real estate needs. By clicking Send message, I request to be contacted by phone or text message and consent to being contacted by automated means. I understand that my consent to receive calls or texts is not a condition of purchasing any property, goods, or services. Alternatively, I understand that I can access real estate services by email or I can contact the agent myself.

If an ERA®  affiliated agent is not available in the area where I need assistance, I agree to be contacted by a real estate agent affiliated with another brand owned or licensed by Anywhere Real Estate (BHGRE® , CENTURY 21® , Coldwell Banker® , Corcoran® , Sotheby's International Realty® ).
 I acknowledge that I have read and agree to theTerms of useandPrivacy notice

Home facts

  • Listing ID #:IV25036206
  • Added:237 day(s) ago
  • Updated:February 10, 2026 at 05:30 PM

Structure and exterior

  • Lot area:0.58 Acres

Utilities

  • Water:District - Public

Finances and disclosures

  • Price:$495,000
MLS LogoThe information being provided by Mlslistings Inc is for the consumer's personal, non-commercial use and may not be used for any purpose other than to identify prospective properties consumer may be interested in purchasing. Any information relating to real estate for sale referenced on this web site comes from the Internet Data Exchange (IDX) program of the Mlslistings Inc. ERA North Orange County Real Estate is not a Multiple Listing Service (MLS), nor does it offer MLS access. This website is a service of ERA North Orange County Real Estate, a broker participant of Mlslistings Inc. This web site may reference real estate listing(s) held by a brokerage firm other than the broker and/or agent who owns this web site. The accuracy of all information, regardless of source, including but not limited to open house information, square footages and lot sizes, is deemed reliable but not guaranteed and should be personally verified through personal inspection by and/or with the appropriate professionals. The data contained herein is copyrighted by Mlslistings Inc and is protected by all applicable copyright laws. Any unauthorized dissemination of this information is in violation of copyright laws and is strictly prohibited. Properties in listings may have been sold or may no longer be available. Copyright 2026 Mlslistings Inc. All rights reserved.