7701 S Mobile Way, Centennial, CO 80016
Local realty services provided by:ERA Shields Real Estate
7701 S Mobile Way,Centennial, CO 80016
$660,800
- 4 Beds
- 4 Baths
- 2,270 sq. ft.
- Single family
- Pending
Listed by: tom ullrich
Office: re/max professionals
MLS#:4558423
Source:ML
Price summary
- Price:$660,800
- Price per sq. ft.:$291.1
- Monthly HOA dues:$44
About this home
**Contact builder today about Special Financing for this home - terms and conditions apply**
Anticipated completion June 2026!
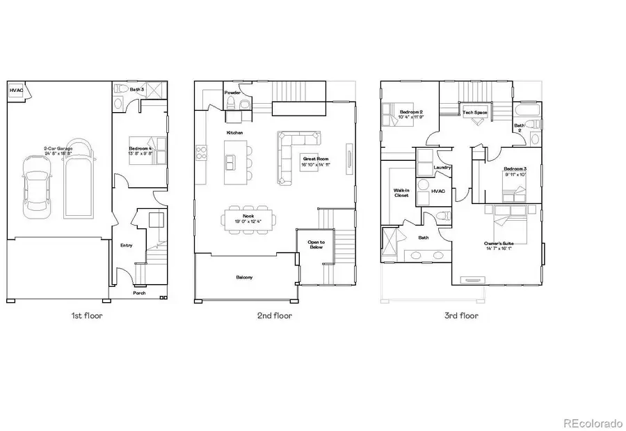
This stunning Horizon 3-story in the brand new Vermilion community features 4 beds (3 upper / 1 lower), 3.5 baths, tech space, great room, kitchen, 2 car garage, spacious balcony and crawlspace. Gorgeous finishes and upgrades throughout including luxury vinyl plank flooring, stainless steel appliances, front balcony low maintenance backyard space and more. This builder provides the latest in energy efficiency and state of the art technology with several fabulous floorplans to choose from. Energy efficiency, and technology/connectivity seamlessly blended with luxury to make your new house a home. Vermilion offers single family homes for every lifestyle.Close to dining, shopping, entertainment and other amenities. Photos are model only and subject to change. Association fee subject to change. Washer, dryer, whole home blinds included with this home. Photos and the Matterport 3D tour are of a model home and are provided for illustrative purposes only. Features, finishes, and layout may vary and are subject to change. Private fencing included with this home. Adjacent to a green space. Enjoy easy access to Tagawa Gardens, nearby Trails and Cherry Creek....
Contact an agent
Home facts
- Year built:2026
- Listing ID #:4558423
Rooms and interior
- Bedrooms:4
- Total bathrooms:4
- Full bathrooms:1
- Half bathrooms:1
- Flooring:Carpet, Tile, Vinyl
- Kitchen Description:Dishwasher, Disposal, Kitchen Island, Microwave, Refrigerator
- Basement:Yes
- Basement Description:Crawl Space
- Living area:2,270 sq. ft.
Heating and cooling
- Cooling:Central Air
- Heating:Electric
- Central air:Yes
Structure and exterior
- Roof:Composition
- Year built:2026
- Building area:2,270 sq. ft.
- Lot area:0.06 Acres
- Construction Materials:Frame
- Exterior Features:Balcony, Front Porch
- Levels:3 or More Stories
Schools
- High school:Grandview
- Middle school:Liberty
- Elementary school:Red Hawk Ridge
Utilities
- Water:Public
- Sewer:Public Sewer
Finances and disclosures
- Price:$660,800
- Price per sq. ft.:$291.1
- Tax amount:$7,797 (2025)
Features and amenities
- Laundry features:In Unit
- Amenities:Carbon Monoxide Detector(s), Double Pane Windows, Smoke Detector(s)
Parking
- Total parking spaces:2
- Parking description:Concrete Driveway
- Garage:Yes
- Garage spaces:2
New listings near 7701 S Mobile Way
- Coming Soon
$795,000Coming Soon5 beds 3 baths3396 E Fair Place, Centennial, CO 80121
MLS# 6826821Listed by: VINTAGE HOMES OF DENVER, INC. - Coming Soon
$600,000Coming Soon3 beds 3 baths7053 E Maplewood Avenue, Centennial, CO 80111
MLS# 2461055Listed by: NOVELLA REAL ESTATE - New
$625,000Active3 beds 3 baths1,763 sq. ft.9000 E Caley Way, Centennial, CO 80111
MLS# 9208568Listed by: BROKERS GUILD REAL ESTATE - New
$750,000Active5 beds 5 baths4,185 sq. ft.5449 S Idalia Way, Centennial, CO 80015
MLS# 4645478Listed by: COLDWELL BANKER REALTY 24 - Open Sat, 12 to 2pmNew
$620,000Active4 beds 3 baths2,049 sq. ft.7022 S Tamarac Street, Centennial, CO 80112
MLS# 9584573Listed by: KELLER WILLIAMS DTC - Coming SoonOpen Sat, 1 to 3:30pm
$649,000Coming Soon4 beds 3 baths21220 E Bellewood Drive, Centennial, CO 80015
MLS# 5553833Listed by: ORCHARD BROKERAGE LLC - New
$970,000Active5 beds 4 baths3,094 sq. ft.7105 S Hudson Circle, Centennial, CO 80122
MLS# 7186243Listed by: MALCOLM REAL ESTATE - Open Sat, 12am to 2pmNew
$575,000Active4 beds 3 baths2,415 sq. ft.18171 E Crestridge Drive, Centennial, CO 80015
MLS# 6500320Listed by: KENTWOOD REAL ESTATE CHERRY CREEK - New
$469,900Active3 beds 3 baths1,890 sq. ft.4338 S Nepal Court, Centennial, CO 80015
MLS# 5475901Listed by: 303 REALTY GROUP INC - New
$695,000Active3 beds 3 baths2,180 sq. ft.7860 S Trenton Street, Centennial, CO 80112
MLS# 6192289Listed by: THE BLOCK INC