7780 S Cherokee Trail, Centennial, CO 80016
Local realty services provided by:RONIN Real Estate Professionals ERA Powered
Listed by: tom ullrichtomrman@aol.com,303-910-8436
Office: re/max professionals
MLS#:8845541
Source:ML
Price summary
- Price:$688,050
- Price per sq. ft.:$266.58
- Monthly HOA dues:$44
About this home
**Contact builder today about Special Financing for this home - terms and conditions apply**
Available NOW!
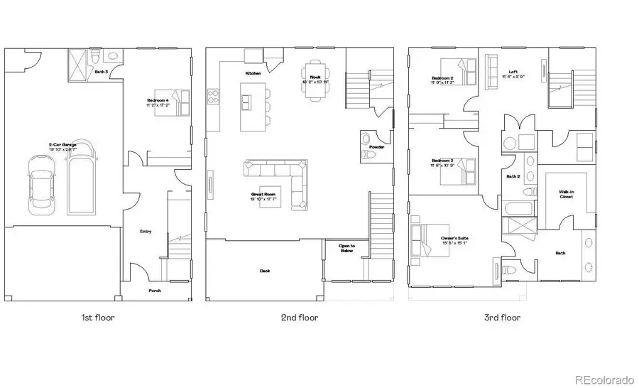
Prime location near expansive green space and landscaped walking paths. Gorgeous Overlook 3-story in the brand new Vermilion community features 4 beds (3 upper / 1 lower), 3.5 baths, loft, great room, kitchen, 2.5 car garage and crawlspace. Gorgeous finishes and upgrades throughout including Quartz package, luxury vinyl plank flooring, stainless steel appliances, spacious balcony and more. The builder provides the latest in energy efficiency and state of the art technology with several fabulous floorplans to choose from. Energy efficiency, and technology/connectivity seamlessly blended with luxury to make your new house a home. Vermilion Creek offers single family homes for every lifestyle. Close to dining, shopping, entertainment and other amenities. Photos are model only and subject to change. Finishes subject to change. Washer/ Dryer / Whole House Blinds / Private Fencing. Enjoy easy access to Tagawa Gardens and the Cherry Creek Trails right outside your neighborhood
Contact an agent
Home facts
- Year built:2025
- Listing ID #:8845541
Rooms and interior
- Bedrooms:4
- Total bathrooms:4
- Full bathrooms:1
- Half bathrooms:1
- Living area:2,581 sq. ft.
Heating and cooling
- Cooling:Central Air
- Heating:Electric
Structure and exterior
- Roof:Composition
- Year built:2025
- Building area:2,581 sq. ft.
- Lot area:0.06 Acres
Schools
- High school:Grandview
- Middle school:Liberty
- Elementary school:Red Hawk Ridge
Utilities
- Water:Public
- Sewer:Public Sewer
Finances and disclosures
- Price:$688,050
- Price per sq. ft.:$266.58
- Tax amount:$8,934 (2024)
New listings near 7780 S Cherokee Trail
- New
$845,000Active4 beds 3 baths3,525 sq. ft.8624 Mineral Circle, Centennial, CO 80112
MLS# 2234901Listed by: THE BRADLEY GROUP LLC - Coming Soon
$1,300,000Coming Soon4 beds 6 baths6320 E Costilla Place, Centennial, CO 80112
MLS# 3375114Listed by: RE/MAX PROFESSIONALS - Coming SoonOpen Sat, 11am to 1:30pm
$989,000Coming Soon3 beds 3 baths4632 E Phillips Place, Centennial, CO 80122
MLS# 1794497Listed by: COLDWELL BANKER REALTY 24 - Coming SoonOpen Sat, 1 to 3pm
$560,000Coming Soon3 beds 3 baths5378 S Sedalia Court, Centennial, CO 80015
MLS# 3375239Listed by: VERITY REAL ESTATE - New
$220,000Active2 beds 1 baths920 sq. ft.140 E Highline Circle #105, Centennial, CO 80122
MLS# 4977809Listed by: REALNET CO - Coming Soon
$650,000Coming Soon5 beds 2 baths40 E Weaver Place, Centennial, CO 80121
MLS# 5732448Listed by: RE/MAX ALLIANCE - Coming SoonOpen Sat, 11am to 2pm
$674,900Coming Soon3 beds 4 baths5772 S Truckee Street, Centennial, CO 80015
MLS# 2642880Listed by: EXIT REALTY DTC, CHERRY CREEK, PIKES PEAK. - Open Tue, 4 to 7pm
$690,000Pending5 beds 4 baths2,994 sq. ft.17732 E Ida Avenue, Centennial, CO 80015
MLS# 1786448Listed by: RE/MAX PROFESSIONALS - Coming Soon
$389,000Coming Soon3 beds 2 baths2220 E Geddes Avenue #F, Centennial, CO 80122
MLS# 4118126Listed by: KEY TEAM REAL ESTATE CORP. - Coming Soon
$599,900Coming Soon4 beds 2 baths6428 S Steele Street, Centennial, CO 80121
MLS# 8070761Listed by: WEICHERT REALTORS PROFESSIONALS