7804 S Cherokee Trail, Centennial, CO 80016

Local realty services provided by:ERA Teamwork Realty
7804 S Cherokee Trail,Centennial, CO 80016
$762,800
  • 4 Beds
  • 4 Baths
  • 2,581 sq. ft.
  • Single family
  • Active
Listed by: tom ullrichtomrman@aol.com,303-910-8436
Office: re/max professionals
MLS#:5301592
Source:ML

Price summary

  • Price:$762,800
  • Price per sq. ft.:$295.54
  • Monthly HOA dues:$44

About this home

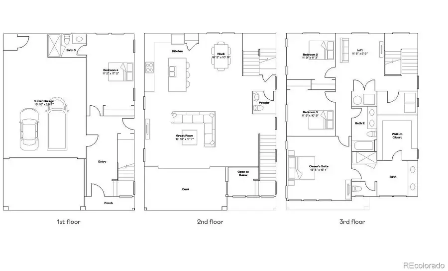
**Contact builder today about Special Financing for this home - terms and conditions apply** Available NOW! Gorgeous Overlook 3-story in the brand new Vermilion community features 4 beds (3 upper / 1 lower), 3.5 baths, loft, great room, kitchen, 2.5 car garage and crawlspace. Gorgeous finishes and upgrades throughout including Quartz package, luxury vinyl plank flooring, stainless steel appliances, spacious balcony and more. The builder provides the latest in energy efficiency and state of the art technology with several fabulous floorplans to choose from. Energy efficiency, and technology/connectivity seamlessly blended with luxury to make your new house a home. Vermilion Creek offers single family homes for every lifestyle. Close to dining, shopping, entertainment and other amenities. Photos are model only and subject to change. Finishes subject to change. Private Fencing / Whole House Blinds included with this home. Adjacent to walkway, open area. Enjoy easy access to

Contact an agent

contact an agent

Yes, I would like more information. Please use and/or share my information with an ERA®  affiliated agent to contact me about my real estate needs. By clicking Send message, I request to be contacted by phone or text message and consent to being contacted by automated means. I understand that my consent to receive calls or texts is not a condition of purchasing any property, goods, or services. Alternatively, I understand that I can access real estate services by email or I can contact the agent myself.

If an ERA®  affiliated agent is not available in the area where I need assistance, I agree to be contacted by a real estate agent affiliated with another brand owned or licensed by Anywhere Real Estate (BHGRE® , CENTURY 21® , Coldwell Banker® , Corcoran® , Sotheby's International Realty® ).
 I acknowledge that I have read and agree to theTerms of useandPrivacy notice

Home facts

  • Year built:2026
  • Listing ID #:5301592

Rooms and interior

  • Bedrooms:4
  • Total bathrooms:4
  • Full bathrooms:1
  • Half bathrooms:1
  • Living area:2,581 sq. ft.

Heating and cooling

  • Cooling:Central Air
  • Heating:Electric

Structure and exterior

  • Roof:Composition
  • Year built:2026
  • Building area:2,581 sq. ft.
  • Lot area:0.06 Acres

Schools

  • High school:Grandview
  • Middle school:Liberty
  • Elementary school:Red Hawk Ridge

Utilities

  • Water:Public
  • Sewer:Public Sewer

Finances and disclosures

  • Price:$762,800
  • Price per sq. ft.:$295.54
  • Tax amount:$9,001 (2025)
MLS LogoBased on information submitted to the MLS GRID as of February 25, 2026 08:45 PM. All data is obtained from various sources and may not have been verified by broker or MLS GRID. Supplied Open House information is subject to change without notice. All information should be independently reviewed and verified for accuracy. Properties may or may not be listed by the office/agent presenting the information.