7828 S Cherokee Trail, Centennial, CO 80016
Local realty services provided by:LUX Real Estate Company ERA Powered
Listed by: tom ullrichtomrman@aol.com,303-910-8436
Office: re/max professionals
MLS#:5126575
Source:ML
Price summary
- Price:$664,400
- Price per sq. ft.:$282
- Monthly HOA dues:$44
About this home
Anticipated Completion March 2026!
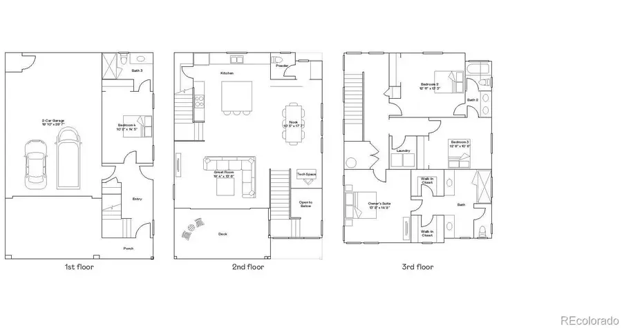
Beautiful Boulevard 3-story plan in the brand new Vermilion community has a beautiful outdoor living balcony and features 4 bedrooms (3 upper / 1 lower), 3.5 baths, great room, kitchen, laundry, 2.5 car garage and a crawlspace. Gorgeous finishes and upgrades throughout including luxury vinyl plank flooring, stainless steel appliances, Quartz package, low maintenance backyard space and more. The builder provides the latest in energy efficiency and state of the art technology with several fabulous floorplans to choose from. Energy efficiency, and technology/connectivity seamlessly blended with luxury to make your new house a home. Vermilion Creek offers single family homes for every lifestyle. Close to dining, shopping, entertainment and other amenities. Association fee subject to change. Photos and the Matterport 3D tour are of a model home and are provided for illustrative purposes only. Features, finishes, and layout may vary and are subject to change. End-position home adjacent to shared green space. Enjoy easy access to Tagawa Gardens and the Cherry Creek Trails right outside your neighborhood....
Contact an agent
Home facts
- Year built:2026
- Listing ID #:5126575
Rooms and interior
- Bedrooms:4
- Total bathrooms:4
- Full bathrooms:1
- Half bathrooms:1
- Flooring:Carpet, Tile, Vinyl
- Kitchen Description:Dishwasher, Disposal, Kitchen Island, Microwave, Oven, Refrigerator
- Basement:Yes
- Basement Description:Crawl Space
- Living area:2,356 sq. ft.
Heating and cooling
- Cooling:Central Air
- Heating:Electric
- Central air:Yes
Structure and exterior
- Roof:Composition
- Year built:2026
- Building area:2,356 sq. ft.
- Lot area:0.06 Acres
- Construction Materials:Frame
- Exterior Features:Front Porch
- Levels:3 or More Stories
Schools
- High school:Grandview
- Middle school:Liberty
- Elementary school:Red Hawk Ridge
Utilities
- Water:Public
- Sewer:Public Sewer
Finances and disclosures
- Price:$664,400
- Price per sq. ft.:$282
- Tax amount:$8,229 (2024)
Features and amenities
- Laundry features:In Unit
- Amenities:Carbon Monoxide Detector(s), Double Pane Windows, Smoke Detector(s)
Parking
- Total parking spaces:2
- Parking description:Concrete Driveway
- Garage:Yes
- Garage spaces:2
New listings near 7828 S Cherokee Trail
- Open Fri, 9am to 7pmNew
$490,000Active3 beds 3 baths2,154 sq. ft.3075 E Long Circle, Centennial, CO 80122
MLS# 3800654Listed by: OPENDOOR BROKERAGE LLC - New
$599,000Active3 beds 2 baths2,062 sq. ft.7228 S Vine Court, Centennial, CO 80122
MLS# 8396081Listed by: RE/MAX PROFESSIONALS - New
$369,000Active2 beds 2 baths1,136 sq. ft.6702 S Ivy Way #B4, Centennial, CO 80112
MLS# 4900495Listed by: RE/MAX NORTHWEST INC - New
$380,000Active2 beds 2 baths1,148 sq. ft.8693 E Dry Creek Road #922, Centennial, CO 80112
MLS# 6242602Listed by: HOMESMART - Open Sun, 12 to 3pmNew
$485,000Active3 beds 3 baths2,536 sq. ft.4332 S Nepal Street, Centennial, CO 80015
MLS# 7926031Listed by: YOUR CASTLE REAL ESTATE INC - Coming Soon
$435,000Coming Soon3 beds 4 baths2756 E Nichols Circle, Centennial, CO 80122
MLS# 5181159Listed by: BCR REALTY INC. - Open Sat, 11am to 2pmNew
$825,000Active6 beds 4 baths3,472 sq. ft.6901 S Uinta Street, Centennial, CO 80112
MLS# 6173657Listed by: EXP REALTY, LLC - Open Sat, 11am to 2pmNew
$1,575,000Active5 beds 4 baths4,579 sq. ft.5919 S Olive Circle, Centennial, CO 80111
MLS# 6306389Listed by: YOUR CASTLE REAL ESTATE INC - New
$949,000Active5 beds 4 baths4,911 sq. ft.7597 S Fillmore Way, Centennial, CO 80122
MLS# 1804384Listed by: LIV SOTHEBY'S INTERNATIONAL REALTY - Coming SoonOpen Sun, 12am to 2pm
$650,000Coming Soon3 beds 2 baths7509 S Trenton Court, Centennial, CO 80112
MLS# 9184358Listed by: EXP REALTY, LLC