9184 Old Divide Drive, Colorado Springs, CO 80908
Local realty services provided by:ERA Teamwork Realty
9184 Old Divide Drive,Colorado Springs, CO 80908
$499,900
- 4 Beds
- 3 Baths
- 2,073 sq. ft.
- Single family
- Pending
Listed by: tom ullrichtomrman@aol.com,303-910-8436
Office: re/max professionals
MLS#:6925855
Source:ML
Price summary
- Price:$499,900
- Price per sq. ft.:$241.15
- Monthly HOA dues:$30
About this home
***Contact builder today about Special Financing for this home - terms and conditions apply**
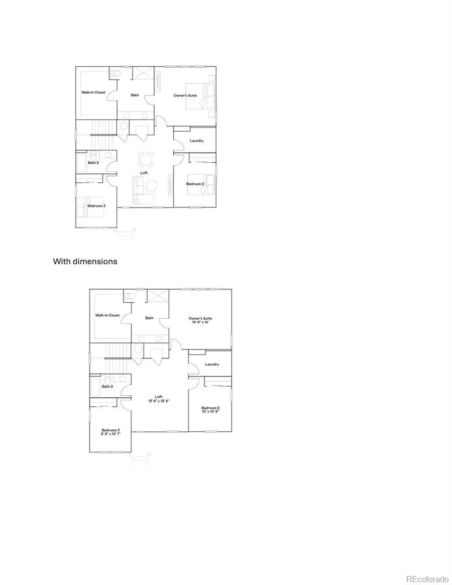
Available NOW!! This gorgeous Marigold 2-story in Percheron features 4 beds (3 upper / 1 main), 2 baths, great room, kitchen, loft, 2 car garage and crawlspace. Beautiful upgrades and finishes throughout including vinyl plank floors, stainless steel appliances, slab Quartz counters and more. This builder provides the latest in energy efficiency and state of the art technology with several fabulous floorplans to choose from. Energy efficiency & technology/connectivity seamlessly blended with luxury to make your new house a home. What some builders consider high-end upgrades, the builder makes a standard inclusion. This community offers single family homes for every lifestyle. Close to dining, shopping, entertainment and other amenities. Don’t wait – this community will sell out quickly! Photos and walkthrough tour are model only and subject to change.
Contact an agent
Home facts
- Year built:2026
- Listing ID #:6925855
Rooms and interior
- Bedrooms:4
- Total bathrooms:3
- Full bathrooms:2
- Flooring:Carpet, Tile, Vinyl
- Kitchen Description:Dishwasher, Disposal, Kitchen Island, Microwave, Pantry, Refrigerator, Self Cleaning Oven
- Basement:Yes
- Basement Description:Crawl Space
- Living area:2,073 sq. ft.
Heating and cooling
- Cooling:Central Air
- Heating:Forced Air, Natural Gas
- Central air:Yes
Structure and exterior
- Roof:Composition
- Year built:2026
- Building area:2,073 sq. ft.
- Lot area:0.14 Acres
- Construction Materials:Frame
- Exterior Features:Private Yard, Rain Gutters
- Levels:2 Story
Schools
- High school:Vista Ridge
- Middle school:Sky View
- Elementary school:Inspiration View
Utilities
- Water:Public
- Sewer:Public Sewer
Finances and disclosures
- Price:$499,900
- Price per sq. ft.:$241.15
- Tax amount:$5,349 (2025)
Features and amenities
- Laundry features:In Unit
- Amenities:Carbon Monoxide Detector(s), Double Pane Windows, Smoke Detector(s)
Parking
- Total parking spaces:2
- Parking description:Concrete Driveway, Tandem
- Garage:Yes
- Garage spaces:2
New listings near 9184 Old Divide Drive
- New
$269,000Active2 beds 2 baths992 sq. ft.6816 Overland Drive, Colorado Springs, CO 80919
MLS# 1268953Listed by: THE CUTTING EDGE - New
$589,999Active4 beds 3 baths1,904 sq. ft.921 Valley Road, Colorado Springs, CO 80904
MLS# 3290751Listed by: FATHOM REALTY COLORADO LLC - New
$575,000Active4 beds 2 baths2,190 sq. ft.2507 Magellan Street, Colorado Springs, CO 80907
MLS# 5627021Listed by: THE PLATINUM GROUP - New
$1,375,000Active6 beds 5 baths4,790 sq. ft.2363 Coyote Crest View, Colorado Springs, CO 80921
MLS# 7098302Listed by: THE CUTTING EDGE - New
$359,000Active4 beds 3 baths3,156 sq. ft.495 Harvard Street, Colorado Springs, CO 80911
MLS# 9743852Listed by: SPRINGS PREMIER BROKERAGE LLC - New
$427,500Active2 beds 2 baths1,058 sq. ft.8649 Cedar Rapids Loop, Colorado Springs, CO 80908
MLS# 3776129Listed by: CLASSIC RESIDENTIAL SERVICES - New
$433,400Active2 beds 2 baths1,304 sq. ft.9361 Traveler Terrace, Colorado Springs, CO 80908
MLS# 4138377Listed by: CLASSIC RESIDENTIAL SERVICES - New
$875,000Active5 beds 5 baths3,912 sq. ft.10409 Marshall Mesa Court, Colorado Springs, CO 80924
MLS# 4320114Listed by: BERKSHIRE HATHAWAY HOMESERVICES ROCKY MOUNTAIN - New
$315,000Active2 beds 1 baths648 sq. ft.415 S Cedar Street, Colorado Springs, CO 80905
MLS# 4670496Listed by: THE PLATINUM GROUP - New
$410,000Active4 beds 3 baths1,993 sq. ft.4127 Coolwater Drive, Colorado Springs, CO 80916
MLS# 4724148Listed by: KELLER WILLIAMS CLIENTS CHOICE REALTY