1757 W 34th Avenue, Denver, CO 80211
Local realty services provided by:ERA Teamwork Realty
1757 W 34th Avenue,Denver, CO 80211
$950,000
- 3 Beds
- 2 Baths
- 2,473 sq. ft.
- Single family
- Active
Listed by: peter hecking
Office: 8z real estate
MLS#:2949985
Source:ML
Price summary
- Price:$950,000
- Price per sq. ft.:$384.15
About this home
1757 W 34th Ave/3420 Quivas by appointment ONLY!!!
Zoned U-TU-B
Property is sold AS IS
Unique investment opportunity!! Corner double lot in highly sought after Lower Highland in Denver. (loHi)
This lot has two separate dwellings. The 2-story main house facing 34th Ave has three bedrooms and two baths. It is structurally compromised and may eventually need to be rebuilt.
The second home, formerly a grocery store, facing Quivas Street has been rented as a Corporate Housing unit. Moat recently rented for $3150 a month. This two-bed, one-bath single-story home, approximately 1,000 sf has an open loft layout with a separate attached sun porch currently used as a second bedroom. (non conforming as it does not have a closet)
Between both structures is a cobblestone-paved courtyard. The property has a relatively new three car garage accessible from the alley on Quivas Street and through the courtyard by foot. The legal address for both is 1757 W 34th Ave. While the back, former grocery store is named 3420 Quivas St on Google Maps, it is technically 1757 W 34th Ave #2.
Currently both units are rented on a monthly basis. The main house is rented at $2600/month and the former grocery store is rented at $3150/month. This provides a total income of $5,750 a month for any investor while they determine changes and procure permits.
All information, claims and statements regarding the use/zoning and potential improvement of this property must be verified by the interested party and are not guaranteed by the Seller/Listing Agent.
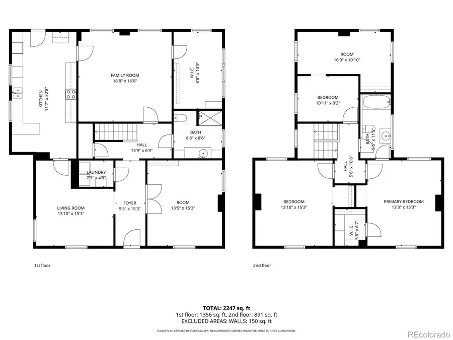
Attached are floor plans of both units and photos of Quivas property only....
Contact an agent
Home facts
- Year built:1896
- Listing ID #:2949985
Rooms and interior
- Bedrooms:3
- Total bathrooms:2
- Full bathrooms:1
- Flooring:Carpet, Tile, Wood
- Kitchen Description:Dishwasher, Disposal, Microwave, Range, Range Hood, Refrigerator
- Basement:Yes
- Basement Description:Cellar
- Living area:2,473 sq. ft.
Heating and cooling
- Cooling:Air Conditioning-Room
- Heating:Forced Air
Structure and exterior
- Roof:Composition
- Year built:1896
- Building area:2,473 sq. ft.
- Lot area:0.16 Acres
- Lot Features:Corner, Level
- Construction Materials:Brick
- Foundation Description:Block
- Levels:2 Story
Schools
- High school:North
- Middle school:Strive Sunnyside
- Elementary school:Valdez
Utilities
- Water:Public
- Sewer:Public Sewer
Finances and disclosures
- Price:$950,000
- Price per sq. ft.:$384.15
- Tax amount:$8,238 (2024)
Features and amenities
- Laundry features:Dryer, Washer
- Amenities:Double Pane Windows, Gas Water Heater
Parking
- Total parking spaces:3
- Garage:Yes
- Garage spaces:3
New listings near 1757 W 34th Avenue
- New
$559,000Active4 beds 3 baths2,613 sq. ft.5030 Titan Court, Denver, CO 80239
MLS# 1674087Listed by: HOMESMART REALTY - New
$1,100,000Active1 beds 2 baths1,392 sq. ft.4200 W 17th Avenue #1013, Denver, CO 80204
MLS# 8174730Listed by: COMPASS - DENVER - Open Sun, 11am to 1pmNew
$515,000Active1 beds 1 baths935 sq. ft.594 S Pennsylvania Street, Denver, CO 80209
MLS# 4284512Listed by: RE/MAX SYNERGY - New
$199,999Active2 beds 1 baths1,032 sq. ft.865 S Quebec Street #302A, Denver, CO 80247
MLS# 4475610Listed by: BROKERS GUILD REAL ESTATE - Open Sun, 12 to 2pmNew
$790,000Active3 beds 3 baths2,957 sq. ft.5053 Valentia Street #101, Denver, CO 80238
MLS# 4535170Listed by: RE/MAX OF CHERRY CREEK - New
$635,000Active2 beds 2 baths1,373 sq. ft.1401 Wewatta Street #504, Denver, CO 80202
MLS# IR1058130Listed by: COMPASS-DENVER - Coming Soon
$658,500Coming Soon2 beds 2 baths3145 Kendall Street, Denver, CO 80214
MLS# 2651208Listed by: COUNTRY COMPASS LLC - New
$475,000Active2 beds 3 baths1,801 sq. ft.1385 S Ulster Street, Denver, CO 80231
MLS# 3529110Listed by: RE/MAX PROFESSIONALS - Coming SoonOpen Sat, 11am to 2pm
$950,000Coming Soon2 beds 2 baths3240 W 29th Avenue, Denver, CO 80211
MLS# 4241903Listed by: LEGACY 100 REAL ESTATE PARTNERS LLC - New
$179,964Active3 beds 2 baths997 sq. ft.875 S Quebec Street, Denver, CO 80247
MLS# 4363624Listed by: KELLER WILLIAMS INTEGRITY REAL ESTATE LLC