2444 S Williams Street, Denver, CO 80210
Local realty services provided by:ERA Teamwork Realty
2444 S Williams Street,Denver, CO 80210
$899,000
- 0.14 Acres
- Lots / Land
- Active
Listed by: david cohendavidraycohen@gmail.com,303-526-8720
Office: alpha real estate associates llc.
MLS#:2675770
Source:ML
Price summary
- Price:$899,000
About this home
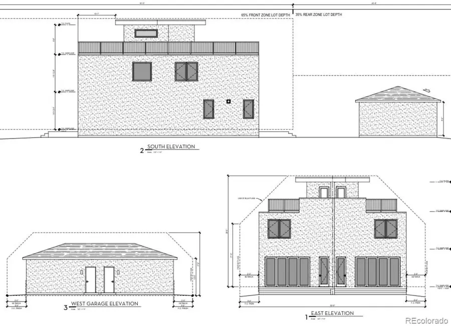
An exceptionally rare opportunity to acquire a truly build-ready lot in one of Denver’s most sought-after neighborhoods. This 6,250-square-foot parcel is zoned E-TU-C. The demo of the existing house is already complete, footers are in, and all of the other heavy lifting has been done. Over $150,000 already into the build. The lot is permit-ready, with extensive due diligence and preparation completed, saving a future buyer significant time, cost, and uncertainty. Included are architectural drawings, survey, soil reports, and all critical pre-construction work required to move efficiently toward permitting. Opportunities like this where a buyer can step in and build immediately rather than wait months or years are increasingly rare. The surrounding block showcases active redevelopment and luxury construction, including high-end duplex's nearby, reinforcing both the upward trajectory of values and the demand for quality new builds in the area. This is a street where modern architecture and thoughtful development are already setting the tone. Located in Harvard Gulch, this site offers the perfect blend of neighborhood charm and urban convenience. Enjoy immediate access to Harvard Gulch Park and Golf Course, tree-lined streets, and a strong sense of community all while being minutes from Wash Park, Old South Pearl, South Broadway, and some of Denver’s best dining, coffee, and boutique shopping. Easy connectivity to downtown and DTC makes this location as practical as it is desirable. Whether you’re a builder, developer, or end-user looking to create something exceptional, this is a turnkey land opportunity in a proven, high-demand neighborhood where vision can become reality without the usual delays.
Contact an agent
Home facts
- Listing ID #:2675770
Structure and exterior
- Lot area:0.14 Acres
Utilities
- Water:Public
- Sewer:Public Sewer
Finances and disclosures
- Price:$899,000
- Tax amount:$2,729 (2024)
New listings near 2444 S Williams Street
- Coming Soon
$235,000Coming Soon2 beds 1 baths3613 S Sheridan Boulevard #6, Denver, CO 80235
MLS# 3042167Listed by: KELLER WILLIAMS REALTY DOWNTOWN LLC - New
$375,000Active2 beds 2 baths1,243 sq. ft.4315 Orleans Street, Denver, CO 80249
MLS# 7246951Listed by: RE/MAX PROFESSIONALS - Open Sat, 12 to 2pmNew
$1,995,000Active5 beds 5 baths4,500 sq. ft.4647 Bryant Street, Denver, CO 80211
MLS# 7283023Listed by: MODUS REAL ESTATE - New
$659,900Active4 beds 2 baths1,777 sq. ft.2600 Colorado Boulevard, Denver, CO 80207
MLS# 9720120Listed by: RE/MAX PROFESSIONALS - Coming Soon
$749,000Coming Soon2 beds 3 baths2051 N Downing Street #5, Denver, CO 80205
MLS# IR1051377Listed by: COLDWELL BANKER REALTY-BOULDER - New
$260,000Active2 beds 1 baths937 sq. ft.2607 E 14th Avenue, Denver, CO 80206
MLS# 3829363Listed by: COLDWELL BANKER REALTY 24 - Coming SoonOpen Sat, 1 to 3pm
$300,000Coming Soon2 beds 2 baths4760 S Wadsworth Boulevard #L103, Littleton, CO 80123
MLS# 4856687Listed by: THE RIGGS BROKERAGE AND ASSOCIATES, LLC - Coming Soon
$479,000Coming Soon2 beds 3 baths9002 E 24th Place #101, Denver, CO 80238
MLS# 5163740Listed by: NU REAL ESTATE - Coming Soon
$579,000Coming Soon4 beds 2 baths3435 S Raleigh Street, Denver, CO 80236
MLS# 7111560Listed by: KELLER WILLIAMS REALTY DOWNTOWN LLC - New
$1,339,000Active4 beds 5 baths3,005 sq. ft.1446 Stuart Street, Denver, CO 80204
MLS# 9954885Listed by: GALA GROUP, LLC