3111 Tejon Street, Denver, CO 80211
Local realty services provided by:LUX Real Estate Company ERA Powered
3111 Tejon Street,Denver, CO 80211
$1,050,000
- 0.08 Acres
- Lots / Land
- Active
Listed by: rachel gallegos
Office: compass - denver
MLS#:7443156
Source:ML
Price summary
- Price:$1,050,000
About this home
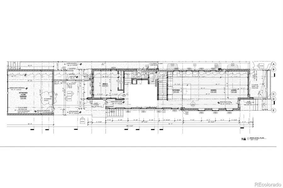
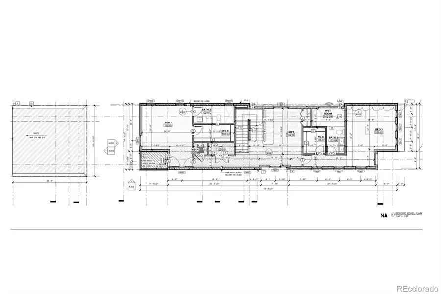
A rare shovel-ready opportunity in the heart of LoHi, ideal for an end user looking to create a truly custom home. This lot comes fully permitted with approved plans for a bold, modern four-level residence featuring seven bedrooms, six-plus bathrooms, Private ADU Lock-off option, and a two-car attached garage with EV charging. Thoughtfully designed across every level, the layout includes a finished basement with a wellness room and media room, multiple roof decks for Colorado living, and elevated design elements throughout. All features are ready to be tailored to your personal style and preferences.
The striking exterior blends matte black standing seam, stucco, and brick for a refined, modern presence in one of Denver’s most desirable infill neighborhoods. Zoned C-MX-3 with entitlements secured and plans approved as of April 2025, the heavy lifting has been done.
This is a rare chance to step into a fully entitled project and customize your dream home from the ground up. Comparable sales support a projected exit value of approximately $2.7M+. Land and plans only. Home to be built by buyer....
Contact an agent
Home facts
- Listing ID #:7443156
Structure and exterior
- Lot area:0.08 Acres
Utilities
- Water:Public
- Sewer:Public Sewer
Finances and disclosures
- Price:$1,050,000
- Tax amount:$2,688 (2024)
New listings near 3111 Tejon Street
- New
$485,000Active3 beds 2 baths1,850 sq. ft.7855 Elder Circle, Denver, CO 80221
MLS# 1936644Listed by: RE/MAX MOMENTUM - New
$407,000Active3 beds 1 baths1,126 sq. ft.2233 S Fox Street, Denver, CO 80223
MLS# 2276005Listed by: MODUS REAL ESTATE - Coming Soon
$250,000Coming Soon2 beds 1 baths4529 S Lowell Boulevard #B, Denver, CO 80236
MLS# 2376352Listed by: EXIT REALTY DTC, CHERRY CREEK, PIKES PEAK. - Open Fri, 2:30 to 4:30pmNew
$775,000Active5 beds 3 baths2,512 sq. ft.846 S Jersey Street, Denver, CO 80224
MLS# 2791235Listed by: CAMBER REALTY, LTD - New
$595,000Active3 beds 3 baths1,642 sq. ft.8939 E 29th Place, Denver, CO 80238
MLS# 4130335Listed by: CAMBER REALTY, LTD - Coming Soon
$920,000Coming Soon3 beds 4 baths471 24th Street, Denver, CO 80205
MLS# 5387540Listed by: INVALESCO REAL ESTATE - Open Sat, 12 to 2pmNew
$1,000,000Active4 beds 4 baths3,287 sq. ft.2356 Akron Street, Denver, CO 80238
MLS# 6646432Listed by: GUIDE REAL ESTATE - Coming Soon
$1,425,000Coming Soon4 beds 5 baths1935 Lowell Boulevard, Denver, CO 80204
MLS# 6947443Listed by: COMPASS - DENVER - New
$1,050,000Active0.08 Acres3111 Tejon Street, Denver, CO 80211
MLS# 7443156Listed by: COMPASS - DENVER - Open Sat, 1 to 4pmNew
$2,550,000Active6 beds 5 baths5,144 sq. ft.1179 S Jackson Street, Denver, CO 80210
MLS# 7934004Listed by: COLDWELL BANKER REALTY 24