- ERA
- Colorado
- Federal Heights
- 9850 Federal Boulevard
9850 Federal Boulevard, Federal Heights, CO 80260
Local realty services provided by:LUX Real Estate Company ERA Powered
9850 Federal Boulevard,Denver, CO 80260
$119,900
- 3 Beds
- 2 Baths
- 1,216 sq. ft.
- Mobile / Manufactured
- Active
Listed by: victor najeravicktor.najera@gmail.com,720-560-7496
Office: lokation real estate
MLS#:3486784
Source:ML
Price summary
- Price:$119,900
- Price per sq. ft.:$98.6
About this home
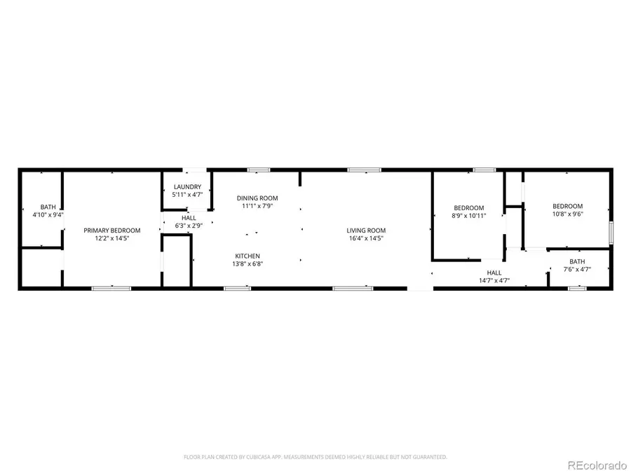
**Welcome to Countryside Village, Lot 218!** This beautiful 76X16 mobile home is nestled in a fantastic all-ages community, making it the perfect place for families and individuals alike. Conveniently located close to schools, shopping, and markets, you’ll enjoy the ease of access to everything you need. Plus, it’s just about 10 miles from downtown Denver, placing city life right at your fingertips! This lovely home features a covered front porch as well as an expansive covered two-car carport, ensuring your vehicles are protected from the elements. The furniture can be negotiated, making it easier for you to personalize the home to your liking. At a price designed to sell fast, this property won’t last long on the market! Don’t miss out on the opportunity to make this nice mobile home your own. For any questions, please feel free to contact me at 720.560.7496. We look forward to welcoming you home!
———————————————————————————————————————————————————————————————————
**¡Bienvenido a Countryside Village, Lote 218!** Este bonito móvil de 76X16 está situado en una comunidad fantástica para todas las edades, lo que lo hace un lugar perfecto para cualquiera. Ubicado convenientemente cerca de escuelas, tiendas y mercados, podrás disfrutar de la facilidad de acceso a todo lo que necesitas. Además, ¡está a solo aproximadamente 10 millas del centro de Denver, poniendo la vida urbana a tu alcance! Esta casa cuenta con un porche cubierto en la entrada y un amplio espacio cubierto para dos autos, asegurando que tus vehículos estén protegidos de los elementos. La muebles pueden negociarse, facilitando que puedas personalizar la casa a tu gusto. Con un precio diseñado para venderse rápidamente, ¡esta propiedad no estará mucho tiempo en el mercado! No pierdas la oportunidad de hacer de esta bonita casa móvil tu hogar. Para cualquier pregunta, no dudes en contactarme al 720.560.7496. ¡Esperamos darte la bienvenida a tu nuevo hogar!
Contact an agent
Home facts
- Year built:1991
- Listing ID #:3486784
Rooms and interior
- Bedrooms:3
- Total bathrooms:2
- Full bathrooms:2
- Living area:1,216 sq. ft.
Heating and cooling
- Cooling:Central Air
- Heating:Forced Air
Structure and exterior
- Roof:Metal
- Year built:1991
- Building area:1,216 sq. ft.
Schools
- High school:Northglenn
- Middle school:Northglenn
- Elementary school:Federal Heights
Utilities
- Water:Public
- Sewer:Public Sewer
Finances and disclosures
- Price:$119,900
- Price per sq. ft.:$98.6
- Tax amount:$100 (2024)
New listings near 9850 Federal Boulevard
- Open Sat, 10am to 2pmNew
$485,000Active6 beds 3 baths2,288 sq. ft.9100 Camenisch Way, Denver, CO 80260
MLS# 4358711Listed by: YOUR CASTLE REAL ESTATE INC - New
$110,000Active3 beds 2 baths1,224 sq. ft.9850 Federal Blvd Boulevard, Federal Heights, CO 80260
MLS# 5542979Listed by: KELLER WILLIAMS AVENUES REALTY - New
$269,000Active2 beds 2 baths910 sq. ft.1401 W 85th Avenue #405, Denver, CO 80260
MLS# IR1050365Listed by: RE/MAX NEXUS - New
$498,000Active3 beds 3 baths2,122 sq. ft.2055 W 86th Avenue, Federal Heights, CO 80260
MLS# 3003760Listed by: RESIDENT REALTY NORTH METRO LLC - New
$52,500Active2 beds 1 baths728 sq. ft.2970 Falcon Street, Denver, CO 80260
MLS# 3912144Listed by: JPAR MODERN REAL ESTATE - Open Sun, 12 to 2pmNew
$89,000Active2 beds 2 baths1,056 sq. ft.1801 W 92nd Avenue, Denver, CO 80260
MLS# 6140087Listed by: REAL BROKER, LLC DBA REAL - New
$500,000Active5 beds 4 baths2,446 sq. ft.8488 Mariposa Street, Denver, CO 80260
MLS# 2877818Listed by: PAISANO REALTY, INC. - New
$104,000Active3 beds 2 baths1,056 sq. ft.9400 Elm Court, Denver, CO 80260
MLS# 2873399Listed by: CELS HOMES REAL ESTATE LLC - New
$384,900Active3 beds 2 baths1,456 sq. ft.2125 W 90th Avenue, Denver, CO 80260
MLS# 9008811Listed by: EISENHARD REALTY GROUP