20 E Main Street #203, Frisco, CO 80443
Local realty services provided by:ERA Shields Real Estate
20 E Main Street #203,Frisco, CO 80443
$2,525,000
- 3 Beds
- 3 Baths
- 2,018 sq. ft.
- Condominium
- Active
Listed by: marty frankMarty@ChristiesSummitCORE.com,970-389-5068
Office: christie's international real estate colorado- summit colorado
MLS#:9126996
Source:ML
Price summary
- Price:$2,525,000
- Price per sq. ft.:$1,251.24
- Monthly HOA dues:$700
About this home
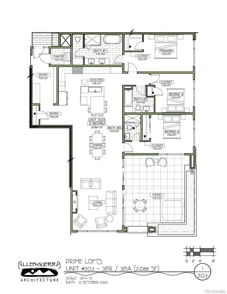
Welcome to Prime Lofts, residence 203! This property faces west and south, towards Madison Avenue. Three bedrooms, plus three bathrooms. The residence features ample storage throughout, as well as a dedicated storage closet for gear. Designed by Allen-Guerra Architecture, this residence is open and airy, with a combined kitchen/dining/living room. Enjoy the Peak One mountain views from your hot tub-ready deck. The builder is offering many upgrade options, including an in-home oxygenation system, an ice maker in the kitchen, an EV charger in the garage, patio ceiling-mounted heaters, and many more! The Prime Lofts development, located at 20 East Main Street in Frisco, Colorado, offers an exclusive, boutique-style living experience on the second and third floors above a new restaurant. Built with a modern architectural flair that honors the charm of Frisco’s historic downtown, each loft offers sweeping views of Main Street and the surrounding mountains through floor-to-ceiling windows. Interiors are finished to luxury standards, featuring sleek, open-concept living areas, gourmet kitchens with high-end appliances, spa-inspired bathrooms, and high ceilings that enhance the open, elegant feel. Residents will enjoy private balconies or terraces—perfect for savoring an evening apéro or starting the day with mountain views—while vaulted ceilings and rich finishes blend contemporary sophistication with cozy alpine warmth....
Contact an agent
Home facts
- Year built:2026
- Listing ID #:9126996
Rooms and interior
- Bedrooms:3
- Total bathrooms:3
- Full bathrooms:2
- Flooring:Carpet, Tile, Wood
- Bathrooms Description:Five Piece Bath
- Kitchen Description:Bar Fridge, Dishwasher, Disposal, Eat-in Kitchen, Kitchen Island, Microwave, Pantry, Range, Range Hood, Refrigerator, Wine Cooler
- Living area:2,018 sq. ft.
Heating and cooling
- Cooling:Central Air
- Heating:Electric, Heat Pump
- Central air:Yes
Structure and exterior
- Roof:Membrane
- Year built:2026
- Building area:2,018 sq. ft.
- Architectural Style:Mountain Contemporary
- Construction Materials:Concrete
- Exterior Features:Balcony, Covered, Deck, Lighting
- Levels:3 or More Stories
Schools
- High school:Summit
- Middle school:Summit
- Elementary school:Frisco
Utilities
- Water:Public
- Sewer:Public Sewer
Finances and disclosures
- Price:$2,525,000
- Price per sq. ft.:$1,251.24
- Tax amount:$6,443 (2025)
Features and amenities
- Laundry features:In Unit
- Amenities:Bar Fridge, Secured Garage/Parking, Security Entrance, Storage, Wine Cooler
Parking
- Total parking spaces:2
- Parking description:Guest Parking, Heated Garage, Tandem, Underground
New listings near 20 E Main Street #203
- New
$889,000Active3 beds 3 baths1,383 sq. ft.410 Bayview Drive #410C, Frisco, CO 80443
MLS# 7044709Listed by: RE/MAX PROPERTIES OF THE SUMMIT - New
$1,200,000Active2 beds 1 baths867 sq. ft.20 E Main Street #303, Frisco, CO 80443
MLS# 5992476Listed by: CHRISTIE'S INTERNATIONAL REAL ESTATE COLORADO- SUMMIT COLORADO - New
$2,600,000Active3 beds 3 baths2,236 sq. ft.20 E Main Street #201, Frisco, CO 80443
MLS# 5485588Listed by: CHRISTIE'S INTERNATIONAL REAL ESTATE COLORADO- SUMMIT COLORADO - New
$2,400,000Active3 beds 3 baths2,035 sq. ft.20 E Main Street #202, Frisco, CO 80443
MLS# 9515490Listed by: CHRISTIE'S INTERNATIONAL REAL ESTATE COLORADO- SUMMIT COLORADO - New
$680,000Active1 beds 1 baths591 sq. ft.910 Copper Road #621, Frisco, CO 80443
MLS# 2766454Listed by: REALTY ONE GROUP PREMIER COLORADO
$3,595,000Active4 beds 5 baths3,306 sq. ft.110 Windflower Lane, Frisco, CO 80443
MLS# 6356798Listed by: REAL ESTATE OF THE SUMMIT
$2,195,000Active4 beds 4 baths2,796 sq. ft.14 Larson Lane #B, Frisco, CO 80443
MLS# 6880478Listed by: SLIFER SMITH & FRAMPTON - SUMMIT COUNTY
$3,395,000Active3 beds 5 baths2,700 sq. ft.318 S 2nd Avenue, Frisco, CO 80443
MLS# 7455287Listed by: ENGEL & VOLKERS DENVER
$525,000Active1 beds 1 baths784 sq. ft.481 W Main Street #B101, Frisco, CO 80443
MLS# 9279067Listed by: MOUNTAIN LIVING REAL ESTATE,INC.