229 Kobe Lane, Johnstown, CO 80534
Local realty services provided by:ERA New Age
229 Kobe Lane,Johnstown, CO 80534
$504,900
- 4 Beds
- 3 Baths
- 2,073 sq. ft.
- Single family
- Active
Listed by: tom ullrichtomrman@aol.com,303-910-8436
Office: re/max professionals
MLS#:7306348
Source:ML
Price summary
- Price:$504,900
- Price per sq. ft.:$243.56
- Monthly HOA dues:$37
About this home
***Contact builder today about Special Financing for this home - terms and conditions apply**
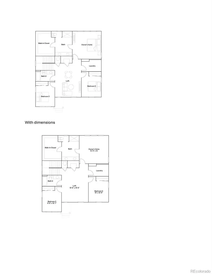
Anticipated completion April 2026!! This gorgeous Marigold 2-story in Ledge Rock features 4 beds (3 upper / 1 main), 2 baths, great room, kitchen, loft, 2 car garage and crawlspace. Beautiful upgrades and finishes throughout including vinyl plank floors, stainless steel appliances, slab Quartz counters and more. This builder provides the latest in energy efficiency and state of the art technology with several fabulous floorplans to choose from. Energy efficiency & technology/connectivity seamlessly blended with luxury to make your new house a home. What some builders consider high-end upgrades, the builder makes a standard inclusion. This community offers single family homes for every lifestyle. Close to dining, shopping, entertainment and other amenities. Don’t wait – this community will sell out quickly! Photos and walkthrough tour are model only and subject to change.
Contact an agent
Home facts
- Year built:2026
- Listing ID #:7306348
Rooms and interior
- Bedrooms:4
- Total bathrooms:3
- Full bathrooms:2
- Flooring:Carpet, Tile, Vinyl
- Kitchen Description:Dishwasher, Disposal, Kitchen Island, Microwave, Pantry, Refrigerator, Self Cleaning Oven
- Basement:Yes
- Basement Description:Crawl Space
- Living area:2,073 sq. ft.
Heating and cooling
- Cooling:Central Air
- Heating:Forced Air, Natural Gas
- Central air:Yes
Structure and exterior
- Roof:Composition
- Year built:2026
- Building area:2,073 sq. ft.
- Lot area:0.17 Acres
- Construction Materials:Frame
- Exterior Features:Private Yard, Rain Gutters
- Levels:2 Story
Schools
- High school:Roosevelt
- Middle school:Milliken
- Elementary school:Elwell
Utilities
- Water:Public
- Sewer:Public Sewer
Finances and disclosures
- Price:$504,900
- Price per sq. ft.:$243.56
- Tax amount:$5,068 (2025)
Features and amenities
- Laundry features:In Unit
- Amenities:Carbon Monoxide Detector(s), Double Pane Windows, Smoke Detector(s)
Parking
- Total parking spaces:2
- Parking description:Concrete Driveway, Tandem
- Garage:Yes
- Garage spaces:2
New listings near 229 Kobe Lane
- Coming Soon
$460,000Coming Soon4 beds 3 baths3907 Heatherwood Circle, Johnstown, CO 80534
MLS# IR1054843Listed by: EXP REALTY LLC - New
$506,200Active4 beds 3 baths2,894 sq. ft.1188 Crown Sparrow Street, Johnstown, CO 80534
MLS# IR1054764Listed by: RE/MAX ALLIANCE-GREELEY - New
$487,050Active3 beds 2 baths2,963 sq. ft.1196 Crown Sparrow Street, Johnstown, CO 80534
MLS# IR1054767Listed by: RE/MAX ALLIANCE-GREELEY - New
$537,950Active4 beds 3 baths3,450 sq. ft.1182 Bitterroot Court, Johnstown, CO 80534
MLS# IR1054769Listed by: RE/MAX ALLIANCE-GREELEY - New
$473,800Active3 beds 2 baths2,738 sq. ft.1156 Bitterroot Court, Johnstown, CO 80534
MLS# IR1054770Listed by: RE/MAX ALLIANCE-GREELEY - New
$490,436Active3 beds 3 baths2,289 sq. ft.4890 Tangerine Street, Johnstown, CO 80534
MLS# IR1054771Listed by: MTN VISTA REAL ESTATE CO., LLC - New
$446,092Active3 beds 3 baths2,744 sq. ft.4855 Grapevine Way, Johnstown, CO 80534
MLS# IR1054772Listed by: MTN VISTA REAL ESTATE CO., LLC - Open Sat, 11am to 1pmNew
$725,000Active5 beds 4 baths3,618 sq. ft.266 Kirkland Lane, Johnstown, CO 80534
MLS# IR1054723Listed by: RE/MAX ALLIANCE-LOVELAND - New
$399,900Active3 beds 3 baths1,541 sq. ft.2445 Harlequin Place, Johnstown, CO 80534
MLS# 4786241Listed by: KELLER WILLIAMS REALTY URBAN ELITE - New
$531,900Active5 beds 3 baths2,415 sq. ft.739 Ayrshire Road, Johnstown, CO 80534
MLS# 3847769Listed by: D.R. HORTON REALTY, LLC