3142 E 152nd Circle, Thornton, CO 80602
Local realty services provided by:LUX Real Estate Company ERA Powered
Listed by: kris cerettokris@thecerettogroup.com,720-939-0558
Office: coldwell banker realty 56
MLS#:6575998
Source:ML
Price summary
- Price:$634,900
- Price per sq. ft.:$245.14
- Monthly HOA dues:$100
About this home
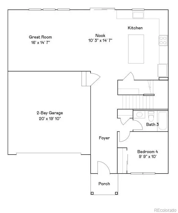
**Available with rates as low as 3.75 % when using builder’s preferred lender – terms and conditions apply – ask for details****Contact builder today about Special Financing for this home - terms and conditions apply**Beautifully Crafted Two-Story Living! Step inside this thoughtfully designed home featuring an open-concept main level where the chef-inspired kitchen flows seamlessly into the cozy dining nook and spacious great room—ideal for everyday living and effortless entertaining. A main-floor bedroom and full bath offer convenient options for guests or multi-generational living.
Upstairs, unwind in the private owner’s suite with a spa-style en-suite bathroom. A flexible loft, two additional bedrooms with walk-in closets, and a full guest bath complete the upper level. This home is also fully electric, offering comfort paired with modern energy efficiency.
Exceptional Location & Outdoor Enjoyment
Situated in a vibrant community close to premier shopping and dining at Denver Premium Outlets and Orchard Town Center, you’ll have everything you need just minutes from home. Outdoor enthusiasts will love nearby Thornton Trail Winds Park with its scenic trails and open spaces. Estimated Completion Date February 2026.
Contact an agent
Home facts
- Year built:2024
- Listing ID #:6575998
Rooms and interior
- Bedrooms:4
- Total bathrooms:3
- Full bathrooms:2
- Living area:2,590 sq. ft.
Heating and cooling
- Cooling:Central Air
- Heating:Electric
Structure and exterior
- Roof:Composition
- Year built:2024
- Building area:2,590 sq. ft.
- Lot area:0.15 Acres
Schools
- High school:Mountain Range
- Middle school:Rocky Top
- Elementary school:Silver Creek
Utilities
- Water:Public
- Sewer:Public Sewer
Finances and disclosures
- Price:$634,900
- Price per sq. ft.:$245.14
- Tax amount:$7,603 (2024)
New listings near 3142 E 152nd Circle
- New
$414,000Active3 beds 2 baths1,160 sq. ft.5425 E 100th Drive, Thornton, CO 80229
MLS# 8226933Listed by: AMERICAN PROPERTY SOLUTIONS - New
$135,000Active1 beds 1 baths606 sq. ft.10211 Ura Lane #7-303, Thornton, CO 80260
MLS# 7181879Listed by: PRIORITY REALTY - New
$36,000Active2 beds 2 baths1,344 sq. ft.3600 E 88th Avenue, Thornton, CO 80229
MLS# 9908699Listed by: JPAR MODERN REAL ESTATE - New
$531,850Active3 beds 3 baths1,868 sq. ft.6887 E 149th Avenue, Thornton, CO 80602
MLS# 2838118Listed by: COLDWELL BANKER REALTY 56 - New
$589,800Active4 beds 4 baths2,166 sq. ft.6897 E 149th Avenue, Thornton, CO 80602
MLS# 9009631Listed by: COLDWELL BANKER REALTY 56 - New
$267,500Active2 beds 1 baths855 sq. ft.9842 Lane Street, Thornton, CO 80260
MLS# IR1048669Listed by: SEARS REAL ESTATE - New
$119,865Active3 beds 2 baths1,296 sq. ft.2100 W 100th Avenue, Thornton, CO 80260
MLS# 7764728Listed by: LOKATION REAL ESTATE - New
$319,900Active2 beds 2 baths1,152 sq. ft.9048 Gale Boulevard #2, Thornton, CO 80260
MLS# 6611997Listed by: RE/MAX ALLIANCE - New
$899,950Active6 beds 5 baths4,122 sq. ft.15333 Poplar Street, Thornton, CO 80602
MLS# 5069443Listed by: RE/MAX PROFESSIONALS - New
$639,900Active4 beds 3 baths2,590 sq. ft.3092 E 152nd Circle, Thornton, CO 80602
MLS# 6619621Listed by: COLDWELL BANKER REALTY 56