6870 Juniper Drive, Thornton, CO 80602
Local realty services provided by:ERA Teamwork Realty
6870 Juniper Drive,Thornton, CO 80602
$499,900
- 3 Beds
- 3 Baths
- - sq. ft.
- Single family
- Sold
Listed by: kris cerettokris@thecerettogroup.com,720-939-0558
Office: coldwell banker realty 56
MLS#:3658220
Source:ML
Sorry, we are unable to map this address
Price summary
- Price:$499,900
- Monthly HOA dues:$185
About this home
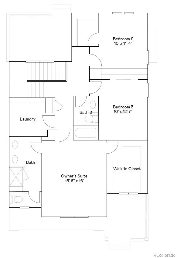
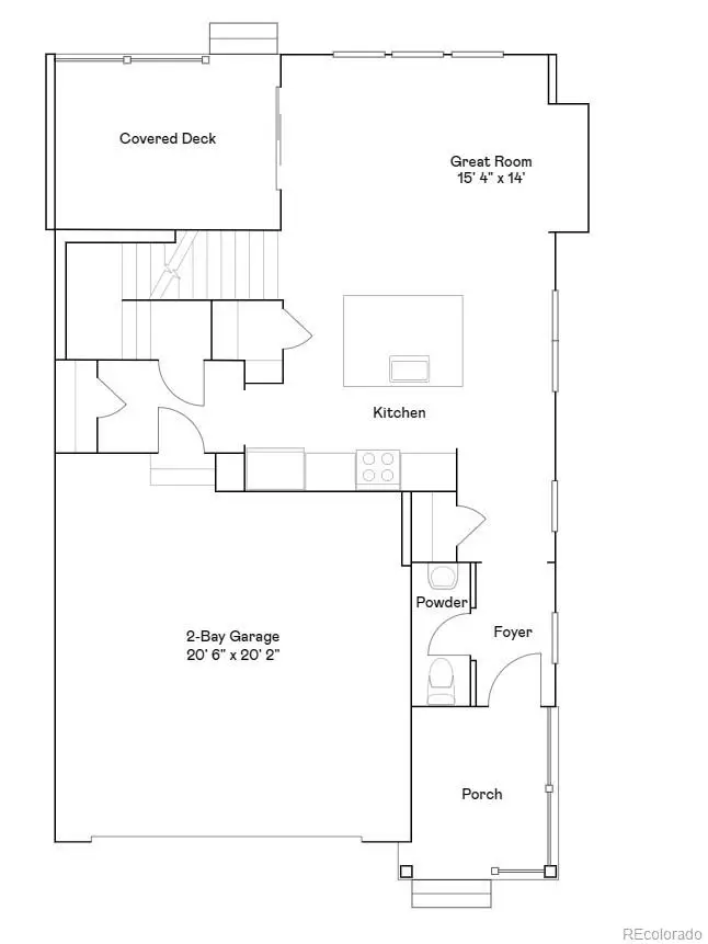
*** This home eligible for Special Financing - Terms and conditions apply - Ask for details!***Discover the perfect blend of style, comfort, and functionality in this beautifully designed paired home. The open-concept main level seamlessly unites the kitchen and Great Room, extending effortlessly to a covered deck—perfect for outdoor dining, morning coffee, or evening relaxation. Upstairs, three inviting bedrooms await, including a refined owner’s suite that offers peaceful privacy and modern comfort. A conveniently located laundry room enhances everyday ease. Elevated finishes throughout—such as luxury vinyl plank flooring and sleek quartz countertops—add a touch of sophistication, while the unfinished basement provides endless potential for future customization.
Located in a thriving community, you’ll enjoy quick access to Denver Premium Outlets for exceptional shopping and dining, as well as abundant recreation at Trail Winds Recreation Center. This home delivers a versatile lifestyle designed to complement every chapter of life. Estimated completion is April 2026....
Contact an agent
Home facts
- Year built:2024
- Listing ID #:3658220
Rooms and interior
- Bedrooms:3
- Total bathrooms:3
- Full bathrooms:1
- Half bathrooms:1
- Flooring:Carpet, Vinyl
- Kitchen Description:Dishwasher, Disposal, Eat-in Kitchen, Kitchen Island, Microwave, Oven, Refrigerator
- Basement:Yes
- Basement Description:Full, Unfinished
Heating and cooling
- Cooling:Central Air
- Heating:Forced Air
- Central air:Yes
Structure and exterior
- Roof:Composition
- Year built:2024
- Architectural Style:Contemporary
- Construction Materials:Frame, Stone
- Exterior Features:Covered, Deck, Front Porch
- Foundation Description:Slab
- Levels:2 Story
Schools
- High school:Riverdale Ridge
- Middle school:Roger Quist
- Elementary school:West Ridge
Utilities
- Water:Public
- Sewer:Public Sewer
Finances and disclosures
- Price:$499,900
- Tax amount:$5,883 (2024)
Features and amenities
- Amenities:Carbon Monoxide Detector(s), Double Pane Windows, Smoke Detector(s)
Parking
- Total parking spaces:2
- Garage:Yes
- Garage spaces:2
New listings near 6870 Juniper Drive
- Coming Soon
$599,000Coming Soon3 beds 2 baths15919 Xanthia Way, Thornton, CO 80602
MLS# 6980297Listed by: MB JM HOMESOURCE - New
$599,000Active2 beds 2 baths4,170 sq. ft.7516 E 148th Place, Thornton, CO 80602
MLS# 8506804Listed by: RE/MAX MOMENTUM - New
$210,000Active1 beds 1 baths600 sq. ft.8853 Colorado Boulevard #106, Thornton, CO 80229
MLS# 5777791Listed by: HOMESMART - New
$506,990Active3 beds 3 baths2,185 sq. ft.16338 Gaylord Street, Thornton, CO 80602
MLS# 3681933Listed by: KERRIE A. YOUNG (INDEPENDENT) - New
$280,000Active-- beds -- baths1,206 sq. ft.8910 Fox Drive #15, Thornton, CO 80260
MLS# 6017820Listed by: HOMESMART REALTY - New
$375,000Active3 beds 3 baths2,152 sq. ft.5333 E 111th Place, Thornton, CO 80233
MLS# 7939600Listed by: WANDERFLOWER & COMPANY - New
$797,900Active5 beds 4 baths3,893 sq. ft.14591 Hudson Street, Thornton, CO 80602
MLS# 9574437Listed by: RE/MAX PROFESSIONALS - New
$569,000Active4 beds 3 baths2,463 sq. ft.13337 Elizabeth Court, Thornton, CO 80241
MLS# IR1054029Listed by: BERKSHIRE HATHAWAY HOMESERVICES COLORADO REAL ESTATE ERIE - New
$524,900Active4 beds 3 baths1,862 sq. ft.15254 Clayton Street, Thornton, CO 80602
MLS# 2225360Listed by: COLDWELL BANKER REALTY 56 - New
$752,000Active5 beds 4 baths4,009 sq. ft.16338 N Milwaukee Street, Thornton, CO 80602
MLS# 6555734Listed by: STAT REALTY GROUP