523 Kennedy St Nw, Washington, DC 20011
Local realty services provided by:ERA Central Realty Group
523 Kennedy St Nw,Washington, DC 20011
$895,000
- - Beds
- - Baths
- 1,580 sq. ft.
- Townhouse
- Active
Listed by: shanu t okwesa
Office: equilibrium realty, llc.
MLS#:DCDC2217886
Source:BRIGHTMLS
Price summary
- Price:$895,000
- Price per sq. ft.:$566.46
About this home
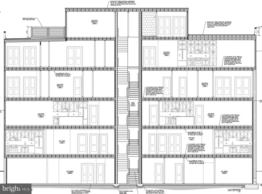
Opportunity Zone. MU-4 zoned rehab property to be delivered with stamped plans and approved permits for 7-unit buildout in Petworth on the hot Kennedy Street Corridor. Perfect for condo conversion. Approved plans are for buildout of a 5-level luxury building plus penthouse, as follows: (4) 1BR/1BA, (1) 2-level 1BR/2BA with Den and loft, (1) 2-level 2BR/2BA and (1) 2-level 3BR/2.5BA. This asset is located in an Opportunity Zone with lots of development in the area and is eligible for significant federal tax benefits for redevelopment investors. The architectural plans are available upon request.
Contact an agent
Home facts
- Year built:1923
- Listing ID #:DCDC2217886
- Added:261 day(s) ago
- Updated:May 18, 2026 at 02:04 PM
Rooms and interior
- Basement:Yes
- Basement Description:Unfinished
- Living area:1,580 sq. ft.
Structure and exterior
- Year built:1923
- Building area:1,580 sq. ft.
- Lot area:0.06 Acres
- Architectural Style:Colonial
- Construction Materials:Brick
- Levels:2 Stories
Utilities
- Water:Public
- Sewer:Public Sewer
Finances and disclosures
- Price:$895,000
- Price per sq. ft.:$566.46
- Tax amount:$30,386 (2024)
New listings near 523 Kennedy St Nw
- New
$249,900Active3 beds 1 baths1,057 sq. ft.7700 Georgia Ave Nw #004, WASHINGTON, DC 20012
MLS# DCDC2262480Listed by: MCWILLIAMS/BALLARD INC. - New
$409,900Active2 beds 2 baths749 sq. ft.2105 M St Ne #10, WASHINGTON, DC 20002
MLS# DCDC2232618Listed by: SAMSON PROPERTIES - New
$214,900Active-- beds 1 baths400 sq. ft.2105 M St Ne #11, WASHINGTON, DC 20002
MLS# DCDC2232664Listed by: SAMSON PROPERTIES - New
$399,900Active1 beds 2 baths641 sq. ft.2105 M St Ne #12, WASHINGTON, DC 20002
MLS# DCDC2232668Listed by: SAMSON PROPERTIES - New
$2,195,000Active4 beds 4 baths2,470 sq. ft.2510 Virginia Nw #1401-n, WASHINGTON, DC 20037
MLS# DCDC2258800Listed by: WINSTON REAL ESTATE, INC. - New
$257,900Active1 beds 1 baths655 sq. ft.1625 Eckington Pl Ne #507, WASHINGTON, DC 20002
MLS# DCDC2262482Listed by: MCWILLIAMS/BALLARD INC. - New
$319,000Active0.04 Acres1016 Harvard St Nw, WASHINGTON, DC 20001
MLS# DCDC2262478Listed by: TTR SOTHEBY'S INTERNATIONAL REALTY
$665,000Pending2 beds 2 baths1,005 sq. ft.910 M St Nw #620, WASHINGTON, DC 20001
MLS# DCDC2261218Listed by: COLDWELL BANKER REALTY - WASHINGTON- Coming SoonOpen Wed, 1 to 7pm
$1,099,900Coming Soon4 beds 5 baths1914 11th St Nw, WASHINGTON, DC 20001
MLS# DCDC2262470Listed by: COMPASS - New
$775,000Active2 beds 2 baths911 sq. ft.1470 Chapin St Nw #3, WASHINGTON, DC 20009
MLS# DCDC2262132Listed by: COMPASS