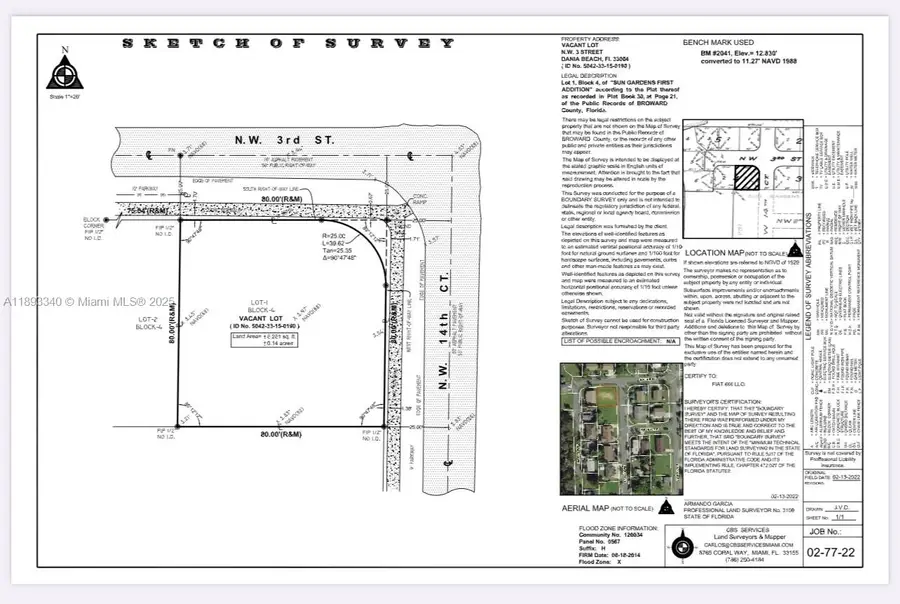
3 Nw St, Dania Beach, FL 33004
Local realty services provided by:First Service Realty ERA Powered
Listed by:asmaa el kouhen
Office:brokers, llc.
MLS#:A11893340
Source:SEFMLS
Price summary
- Price:$155,000
About this home
CORNER Vacant Land on the best location of Dania Beach. 6262 Square Feet Ready to Build Your Dream House. Walking Distance to all the New Neighboring Developments which include the 102-acre premier mixed-use Dania Pointe with 1 million square feet retail stores and restaurants. Close to I-95, the Ft Lauderdale Airport and the Everglades Cruise Port. Do not miss this opportunity. Driving Directions: To access, put on the GPS this address: 280 NW 14th Way, Dania Beach FL 33004. The vacant lot is just behind this property. Clear Vacant Lot. Area in full expansion! See all pictures.Public utilities appear to be in the area; buyer to verify availability, setbacks, flood zone, and impact fees with the City of Dania Beach.
Contact an agent
Home facts
- Listing ID #:A11893340
- Updated:October 12, 2025 at 11:55 PM
Structure and exterior
- Lot area:0.14 Acres
Finances and disclosures
- Price:$155,000
- Tax amount:$1,823 (2024)
New listings near 3 Nw St
- New$169,000Active1 beds 1 baths800 sq. ft.
206 SE 10th St #303, Dania Beach, FL 33004
MLS# A11889012Listed by: BEACHFRONT REALTY INC - New$319,000Active2 beds 3 baths1,379 sq. ft.
4972 Leeward Lane #3905, Dania Beach, FL 33312
MLS# R11131902Listed by: BALISTRERI REAL ESTATE INC - New$140,000Active0.12 Acres
29 NW 5th Ave, Dania Beach, FL 33004
MLS# F10531276Listed by: BROKERS, LLC - New$132,958Active2 beds 1 baths672 sq. ft.
2631 SW 54th Street, Dania Beach, FL 33312
MLS# R11131635Listed by: CAMPBELL&ROSEMURGY REAL ESTATE - New$1,250,000Active3 beds 2 baths2,200 sq. ft.
4717 SW 35th Ave, Dania Beach, FL 33312
MLS# F10531149Listed by: FIDELITY REAL ESTATE GROUP LLC - New$1,190,000Active4 beds 4 baths1,492 sq. ft.
311 NE 2nd Ct, Dania Beach, FL 33004
MLS# A11892938Listed by: RE/MAX 5 STAR REALTY - New$509,900Active3 beds 2 baths1,131 sq. ft.
5521 SW 24th Ave, Dania Beach, FL 33312
MLS# A11893776Listed by: LOKATION - New$500,000Active3 beds 2 baths1,605 sq. ft.
4610 SW 43rd Ter, Dania Beach, FL 33314
MLS# A11893648Listed by: SMART MIAMI REALTY 2 LLC - New$198,000Active2 beds 2 baths1,144 sq. ft.
201 SE 11th Ter #302, Dania Beach, FL 33004
MLS# A11893568Listed by: MADISON ALLIED LLC - New$699,999Active3 beds 3 baths1,205 sq. ft.
4101 SW 48th Ct, Dania Beach, FL 33314
MLS# F10530727Listed by: SVS REALTY GROUP INC