3102 Goldfinch Terrace, Englewood, FL 34224
Local realty services provided by:Gulf Shores Realty ERA Powered
Listed by: christie-elyse turbiville
Office: re/max palm realty
MLS#:C7517289
Source:MFRMLS
Price summary
- Price:$215,000
- Price per sq. ft.:$168.76
- Monthly HOA dues:$16.67
About this home
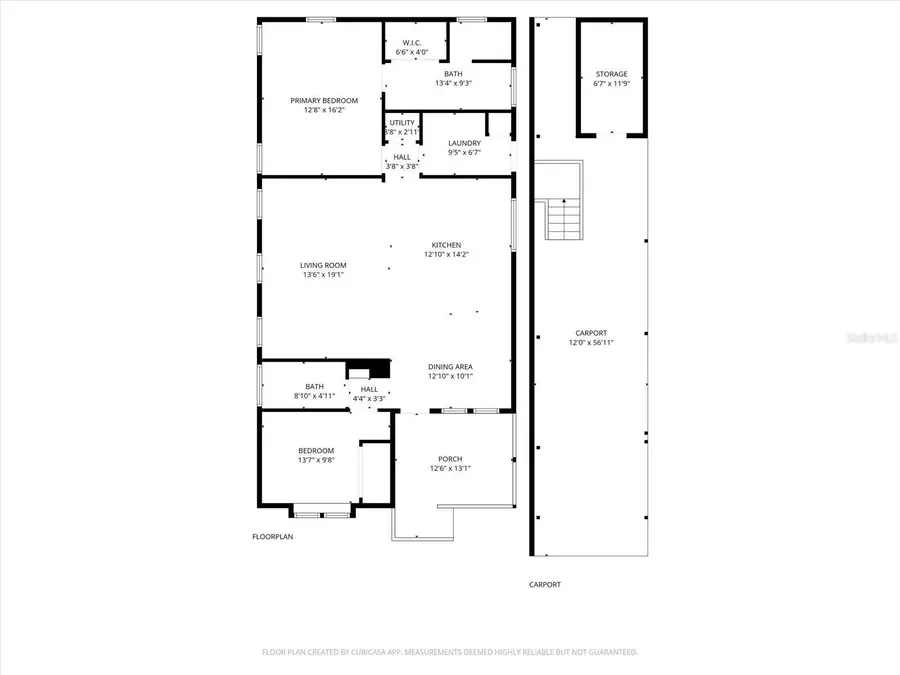
Discover an extraordinary opportunity in the heart of southwest Florida – a brand-new 2024 double-wide manufactured home that feels and lives like a custom single-family residence, yet is being offered at a stunning discount to what the seller paid to build it. Located in the sought-after 55+ community in the Gasparilla Pines subdivision of Sandalhaven Estates in Charlotte County, this beautifully designed 2-bed / 2-bath home rests on its own land (no lot rent) and is listed for just $225,000 — far below the seller’s total investment of approximately $280,000 for the home, carport, and shed. Step inside the top-of-the-line Palm Harbor Homes “Summer Breeze IV” model and you’ll immediately appreciate the elevated finishes: luxury vinyl plank flooring throughout the living, kitchen and baths; 9-foot ceilings with crown molding; ceiling fans in every room; and an open-concept kitchen, living and dinette area featuring a large island, modern design and oversized new appliances (upgraded fridge and range beyond the original builder package). The split floor plan creates a gracious guest zone up front and a private owner’s retreat at the rear overlooking the peaceful pond. The primary suite includes dual vanities, a walk-in shower and spacious walk-in closet; the guest bath offers a tub/shower combo and single vanity. Outside you’ll find a freshly built 2024 carport and an 8 × 10 shed with built-in shelving—ideal for extra storage, hobbies, or gear. The front porch features wood-look flooring and a ceiling fan, offering classic southern coastal charm where you can relax and enjoy your surroundings. Built to HUD Wind Zone III, exposure C standards this home provides peace of mind and long-term quality. The extremely low HOA of just $200 per year (approximately $16.67/month) adds tremendous value. The park is pet-friendly with no breed or weight restrictions—perfect for your furry companions. Beyond the home, the location is simply outstanding. Situated within minutes of six environmental preserves—including the spectacular Amberjack Environmental Park on Gasparilla Pines Blvd, Charlotte County, FL —you’re immersed in nature, kayaking launches, birding, hiking and peaceful water views. The nearby Gasparilla Sound–Charlotte Harbor Aquatic Preserve offers rich estuarine waterways, abundant wildlife and exceptional fishing and paddling opportunities. For lovers of sand and surf, you are equidistant to the pristine beaches of Boca Grande and the charming shores of Englewood Beach / Manasota Key—perfect for weekend escapes or daily breezy strolls. And for golf lovers, the area is a true paradise: from the acclaimed Riverwood Golf Club in Port Charlotte (an 18-hole championship layout) to numerous other highly-rated public courses within a short drive. Dining is diverse and plentiful, with coastal-style seafood restaurants and local favorites just minutes away. If you’ve been searching for that “steal of the century,” this listing delivers amazing value: a fully constructed 2024 home, premium upgrades, lake/pond view with fishing access, no lot rent, low HOA, pet-friendly community, and a location that combines nature, beach lifestyle and recreation—all for $225,000, far below the original build cost. Whether you’re looking for a full-time residence, a vacation home or a rental (with association approval) this property checks every box. Don’t let this rare combination slip away—schedule your visit today and claim the lifestyle you deserve.
Contact an agent
Home facts
- Year built:2024
- Listing ID #:C7517289
- Added:107 day(s) ago
- Updated:February 22, 2026 at 08:48 AM
Rooms and interior
- Bedrooms:2
- Total bathrooms:2
- Full bathrooms:2
- Living area:1,274 sq. ft.
Heating and cooling
- Cooling:Central Air
- Heating:Central
Structure and exterior
- Roof:Shingle
- Year built:2024
- Building area:1,274 sq. ft.
- Lot area:0.14 Acres
Schools
- High school:Lemon Bay High
- Middle school:L.A. Ainger Middle
- Elementary school:Vineland Elementary
Utilities
- Water:Public, Water Connected
- Sewer:Public, Public Sewer, Sewer Connected
Finances and disclosures
- Price:$215,000
- Price per sq. ft.:$168.76
- Tax amount:$874 (2024)
New listings near 3102 Goldfinch Terrace
- New
$229,000Active2 beds 2 baths1,296 sq. ft.6222 Falcon Drive, ENGLEWOOD, FL 34224
MLS# D6146163Listed by: PARADISE EXCLUSIVE INC - New
$359,000Active2 beds 2 baths988 sq. ft.3000 Bourbon Street, ENGLEWOOD, FL 34224
MLS# D6146248Listed by: PARADISE EXCLUSIVE INC - New
$325,000Active2 beds 2 baths1,341 sq. ft.8340 Palmetto Court, ENGLEWOOD, FL 34224
MLS# N6143007Listed by: EXIT KING REALTY - New
$350,000Active2 beds 2 baths1,070 sq. ft.1551 Beach Road #202, ENGLEWOOD, FL 34223
MLS# D6146252Listed by: PARADISE EXCLUSIVE INC - New
$198,800Active2 beds 2 baths1,370 sq. ft.854 Calle Menuda, ENGLEWOOD, FL 34224
MLS# D6146270Listed by: KEY REALTY, INC. - Open Sun, 12:30 to 4pmNew
$299,900Active2 beds 2 baths1,385 sq. ft.1104 Yosemite Drive, ENGLEWOOD, FL 34223
MLS# N6142980Listed by: COLDWELL BANKER REALTY - New
$350,000Active2 beds 2 baths1,591 sq. ft.689 Linden Drive, ENGLEWOOD, FL 34223
MLS# C7522201Listed by: RE/MAX HARBOR REALTY - New
$305,000Active3 beds 2 baths1,756 sq. ft.7062 Beardsley Street, ENGLEWOOD, FL 34224
MLS# A4683446Listed by: WEICHERT REALTORS HALLMARK PRO - New
$259,900Active2 beds 2 baths1,562 sq. ft.257 Park Forest Boulevard, ENGLEWOOD, FL 34223
MLS# D6146182Listed by: RE/MAX ALLIANCE GROUP - New
$980,000Active2 beds 3 baths1,800 sq. ft.10467 Sherman Street, ENGLEWOOD, FL 34224
MLS# D6146181Listed by: RE/MAX ALLIANCE GROUP