1621 Brookview S Drive, Jacksonville, FL 32246
Local realty services provided by:ERA Fernandina Beach Realty
1621 Brookview S Drive,Jacksonville, FL 32246
$300,000
- 4 Beds
- 2 Baths
- 1,300 sq. ft.
- Multi-family
- Active
Listed by: christina welch, kimberly worbington
Office: keller williams st johns
MLS#:2136722
Source:JV
Price summary
- Price:$300,000
- Price per sq. ft.:$230.77
About this home
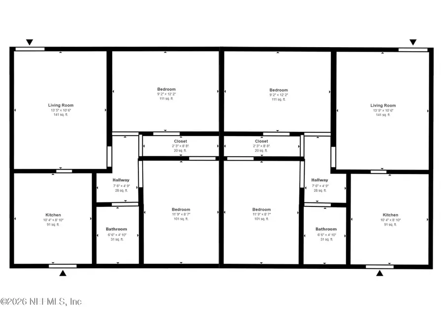
Rare Duplex Investment Opportunity in Jacksonville's Southside! This 100% occupied duplex offers immediate cash flow with significant upside. Perfectly suited for an investor or an owner-occupant looking to 'house hack' by living in one unit while renting the other. Each unit features 2 beds/1 bath, attached laundry, a charming covered porch, and a spacious backyard with serene nature view. Ample parking also included. The property is ideally located within walking distance to shops, dining, and medical offices. Its central location ensures consistent demand from military and civilian personnel, with quick access to Downtown, Beaches, 295, and Mayport Naval Base. Bonus Value: Zoned CCG-2, offering versatile future use potential. Listing price is for 1621/1623 Brookview Dr. The neighboring duplex 1613/1615 is also available MLS #2136720 (sold together or separately). Don't miss this turnkey addition to your portfolio in a high-demand area!
Contact an agent
Home facts
- Year built:1958
- Listing ID #:2136722
- Added:1 day(s) ago
- Updated:March 26, 2026 at 12:50 PM
Rooms and interior
- Bedrooms:4
- Total bathrooms:2
- Full bathrooms:2
- Kitchen Description:Electric Range, Refrigerator
- Living area:1,300 sq. ft.
Heating and cooling
- Cooling:Central Air
- Heating:Central
- Central air:Yes
Structure and exterior
- Year built:1958
- Building area:1,300 sq. ft.
- Lot area:0.35 Acres
- Lot Features:Wooded
- Construction Materials:Block, Concrete
- Levels:1 Story
Schools
- High school:Englewood
- Middle school:Kernan
- Elementary school:Brookview
Utilities
- Water:Public, Water Connected
- Sewer:Public Sewer, Sewer Connected
Finances and disclosures
- Price:$300,000
- Price per sq. ft.:$230.77
- Tax amount:$2,918 (2025)
Parking
- Parking description:Additional Parking, Attached
New listings near 1621 Brookview S Drive
- New
$69,900Active2 beds 1 baths758 sq. ft.3222 Warrington Street, Jacksonville, FL 32254
MLS# 2136856Listed by: ONE REALTY CORP - New
$399,000Active8 beds 4 baths2,704 sq. ft.1006 W 25th Street #1-4, Jacksonville, FL 32209
MLS# 2136860Listed by: EVERRISE REALTY GROUP LLC - Open Sat, 11am to 2pmNew
$524,990Active4 beds 3 baths2,222 sq. ft.12124 Weatherwood Estates W Drive, Jacksonville, FL 32223
MLS# 2136866Listed by: UNITED REAL ESTATE GALLERY - New
$289,900Active3 beds 2 baths1,618 sq. ft.6111 Bucking Bronco Drive, Jacksonville, FL 32234
MLS# 2136875Listed by: MOMENTUM REALTY - New
$459,900Active4 beds 3 baths2,660 sq. ft.10013 Blossom Creek Lane, Jacksonville, FL 32222
MLS# 2136876Listed by: HOMESMART - New
$211,500Active3 beds 2 baths1,678 sq. ft.4906 Chivalry Drive, Jacksonville, FL 32208
MLS# 2136877Listed by: UNITED REAL ESTATE GALLERY - New
$244,990Active2 beds 3 baths1,220 sq. ft.162 Brazil Nut Circle, Jacksonville, FL 32218
MLS# 2136878Listed by: CENTURY COMMUNITIES OF FLORIDA - New
$399,000Active3 beds 2 baths1,840 sq. ft.9989 Leahy Road, JACKSONVILLE, FL 32246
MLS# NS1087746Listed by: YOUNG REAL ESTATE - New
$209,900Active3 beds 2 baths1,206 sq. ft.7990 Baymeadows Road #201, Jacksonville, FL 32256
MLS# 2136846Listed by: 904 REALTY LLC - New
$282,000Active4 beds 2 baths1,650 sq. ft.7571 Capers Place, Jacksonville, FL 32244
MLS# 2136847Listed by: KELLER WILLIAMS REALTY ATLANTIC PARTNERS