2304 Sunset Bluff Drive, Jacksonville, FL 32216
Local realty services provided by:ERA Fernandina Beach Realty
2304 Sunset Bluff Drive,Jacksonville, FL 32216
$245,000
- 3 Beds
- 3 Baths
- 1,619 sq. ft.
- Townhouse
- Active
Listed by: norman rodriguez
Office: navy to navy homes llc.
MLS#:2111203
Source:JV
Price summary
- Price:$245,000
- Price per sq. ft.:$151.33
- Monthly HOA dues:$206.67
About this home
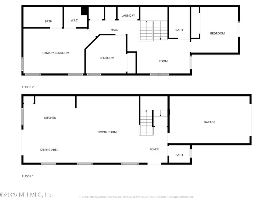
Bright end-unit townhome with space, light, and a smart layout. Main level opens to a large living/dining area with wood floors and recessed lighting. Kitchen offers stainless appliances, solid-surface counters, tile backsplash, pendant lighting, and a breakfast bar. Half bath off the foyer; attached garage for easy parking/storage. Upstairs, the private primary suite features a double-tray ceiling and walk-in closet; two additional bedrooms share a full bath. Flexible loft/bonus room plus upstairs laundry. Fresh updates: all new interior paint on every wall, baseboard, and trim—clean and move-in ready. Corner placement = extra windows and only one shared wall. Community perks include low HOA fees and a new City of Jacksonville park nearby at Villages of Summer Lakes. Tile in kitchen/dining, wood in main living, carpet in bedrooms. Neutral finishes, great storage, and an easy, low-maintenance lifestyle in a convenient location near shopping, dining, and commuter routes.
Contact an agent
Home facts
- Year built:2006
- Listing ID #:2111203
- Added:97 day(s) ago
- Updated:January 06, 2026 at 02:47 PM
Rooms and interior
- Bedrooms:3
- Total bathrooms:3
- Full bathrooms:2
- Half bathrooms:1
- Living area:1,619 sq. ft.
Heating and cooling
- Cooling:Central Air
- Heating:Central
Structure and exterior
- Year built:2006
- Building area:1,619 sq. ft.
- Lot area:0.09 Acres
Utilities
- Water:Public, Water Connected
- Sewer:Sewer Connected
Finances and disclosures
- Price:$245,000
- Price per sq. ft.:$151.33
- Tax amount:$4,277 (2024)
New listings near 2304 Sunset Bluff Drive
- New
$360,000Active4 beds 2 baths1,707 sq. ft.887 Panther Lake Parkway, Jacksonville, FL 32221
MLS# 2123598Listed by: JASON MITCHELL REAL ESTATE FLORIDA, LLC. - New
$318,000Active3 beds 2 baths1,176 sq. ft.1297 Plymouth Place, Jacksonville, FL 32205
MLS# 2123599Listed by: FLORIDA HOMES REALTY & MTG LLC
$119,900Active0.75 Acres15592 W Shark W Road, Jacksonville, FL 32226
MLS# 2091856Listed by: PONTE VEDRA PALM VALLEY REAL ESTATE COMPANY LLC- New
$89,000Active3 beds 2 baths1,485 sq. ft.1049 Hammond Boulevard, Jacksonville, FL 32221
MLS# 2123591Listed by: BEYCOME OF FLORIDA LLC - New
$369,900Active4 beds 2 baths1,759 sq. ft.6015 Shindler Drive, Jacksonville, FL 32222
MLS# 2123582Listed by: RPB REALTY,INC - New
$435,000Active4 beds 3 baths1,623 sq. ft.10205 Moncrief-dinsmore Road, Jacksonville, FL 32219
MLS# 2123585Listed by: UNITED REAL ESTATE GALLERY - Open Sat, 2 to 4pmNew
$238,900Active2 beds 2 baths1,229 sq. ft.13703 Richmond Park Drive #1406, Jacksonville, FL 32224
MLS# 2123575Listed by: FLORIDA HOMES REALTY & MTG LLC - New
$369,900Active4 beds 2 baths1,648 sq. ft.6467 Flowers Avenue, Jacksonville, FL 32244
MLS# 2123576Listed by: RPB REALTY,INC - New
$339,900Active4 beds 2 baths1,759 sq. ft.421 Sago Avenue, Jacksonville, FL 32218
MLS# 2123579Listed by: RPB REALTY,INC - New
$259,900Active3 beds 2 baths1,209 sq. ft.7059 Harrell Avenue, Jacksonville, FL 32219
MLS# 2123572Listed by: RPB REALTY,INC