1812 Pine Bay Drive, Lake Mary, FL 32746
Local realty services provided by:ERA Advantage Realty, Inc.
1812 Pine Bay Drive,Lake Mary, FL 32746
$569,900
- 4 Beds
- 3 Baths
- 2,142 sq. ft.
- Single family
- Pending
Listed by: patrick urbainczyk, pa
Office: keller williams heritage realty
MLS#:O6365689
Source:MFRMLS
Price summary
- Price:$569,900
- Price per sq. ft.:$198.02
- Monthly HOA dues:$71
About this home
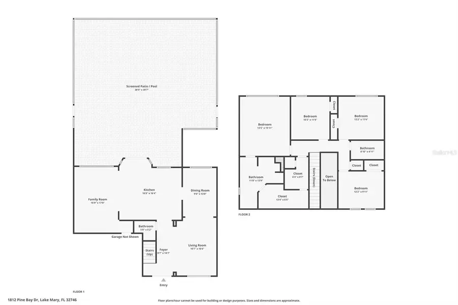
Welcome to 1812 Pine Bay Circle, a beautifully updated 4-bedroom, 2.5-bathroom pool home offering 2,142 square feet of comfortable, refined living located in the Huntington Pointe subdivision. From the moment you arrive, you’ll appreciate the peaceful setting with no front or rear neighbors, offering serene views of the greenspace both across the street and in the backyard. Step inside through the foyer and immediately feel the warmth of the natural light that fills both the living and dining rooms. The open sightlines and bright, airy atmosphere create a welcoming first impression and set the tone for the rest of the home. At the heart of the property is a stunningly renovated kitchen designed for both style and functionality. Featuring solid wood cabinetry, quartz countertops, stainless steel appliances, and a central island perfect for prep or gathering, this kitchen is truly a showstopper. The layout was thoughtfully modified to create a more open flow, seamlessly connecting the kitchen to the family room and enhancing the overall livability of the home. Engineered wood flooring runs through both spaces, adding warmth, durability, and contemporary appeal. A convenient half bathroom is located just off the kitchen—a perfect spot for guests. Upstairs, you’ll find LVP flooring throughout, including on the staircase with an updated stair rail that elevates the home’s modern feel. The spacious primary bedroom offers plenty of room to unwind, while the tastefully updated primary bathroom features beautiful finishes and a layout that feels fresh and current. The oversized walk-in closet provides exceptional storage and organization. The secondary bedrooms are well-sized and versatile—ideal for family members, visiting guests, a home office, or hobby rooms. The updated secondary bathroom is equally impressive, offering clean, modern design that matches the home’s sophisticated aesthetic. Outdoor living is truly exceptional here. Enjoy Florida living at its best in your screened-in pool area, complete with a covered lanai perfect for morning coffee, evening relaxation, or weekend gatherings. With no rear neighbors, the setting feels private and peaceful, allowing you to fully enjoy your outdoor retreat. Located in highly sought-after Lake Mary, this home provides convenient access to top-rated schools, shopping, dining, parks, and major roadways while still offering a quiet, tucked-away feel. With thoughtful updates throughout, a smart floorplan, and a beautiful private pool area, 1812 Pine Bay Circle is truly move-in ready and waiting for its next owner.
Contact an agent
Home facts
- Year built:1998
- Listing ID #:O6365689
- Added:21 day(s) ago
- Updated:December 30, 2025 at 08:52 AM
Rooms and interior
- Bedrooms:4
- Total bathrooms:3
- Full bathrooms:2
- Half bathrooms:1
- Living area:2,142 sq. ft.
Heating and cooling
- Cooling:Central Air
- Heating:Central
Structure and exterior
- Roof:Shingle
- Year built:1998
- Building area:2,142 sq. ft.
- Lot area:0.17 Acres
Schools
- High school:Lake Mary High
- Middle school:Markham Woods Middle
- Elementary school:Woodlands Elementary
Utilities
- Water:Public, Water Connected
- Sewer:Public Sewer, Sewer Connected
Finances and disclosures
- Price:$569,900
- Price per sq. ft.:$198.02
- Tax amount:$2,383 (2024)
New listings near 1812 Pine Bay Drive
- New
$465,000Active4 beds 2 baths1,555 sq. ft.308 Bent Way Lane, LAKE MARY, FL 32746
MLS# O6369478Listed by: EMPIRE NETWORK REALTY - New
$489,000Active3 beds 3 baths1,976 sq. ft.1834 Piedmont Place, LAKE MARY, FL 32746
MLS# O6369006Listed by: COLDWELL BANKER REALTY - New
$235,000Active2 beds 2 baths1,044 sq. ft.412 N Niblick Lane, LAKE MARY, FL 32746
MLS# O6368528Listed by: KELLER WILLIAMS WINTER PARK - New
$299,990Active3 beds 3 baths1,764 sq. ft.7031 Kirkland Way #7031, LAKE MARY, FL 32746
MLS# O6368936Listed by: EXP REALTY LLC - New
$678,500Active4 beds 3 baths2,022 sq. ft.810 Lakeworth Circle, LAKE MARY, FL 32746
MLS# B4902139Listed by: CLEMENTS REAL ESTATE - New
$429,900Active3 beds 2 baths1,592 sq. ft.633 Regina Lane, LAKE MARY, FL 32746
MLS# O6369045Listed by: CFRP REALTY LLC - New
$499,000Active3 beds 2 baths1,642 sq. ft.472 Arrowmount Place, LAKE MARY, FL 32746
MLS# O6367627Listed by: PADOVAN REALTY CORP. - New
$185,000Active2 beds 2 baths1,242 sq. ft.107 Vista Verdi Circle #201, LAKE MARY, FL 32746
MLS# O6368718Listed by: DALTON WADE INC - New
$624,999Active2.57 Acres3525 Michigan Street, LAKE MARY, FL 32746
MLS# O6368786Listed by: YASMINE KHRINO
$599,900Active4 beds 3 baths1,996 sq. ft.353 Pine Tree Road, Lake Mary, FL 32746
MLS# R11148669Listed by: DALTON WADE INC