3690 SE 54th Avenue, Morriston, FL 32668
Local realty services provided by:ERA American Suncoast
3690 SE 54th Avenue,Morriston, FL 32668
$599,000
- 3 Beds
- 2 Baths
- 1,566 sq. ft.
- Mobile / Manufactured
- Active
Listed by: jason anderson
Office: keller williams cornerstone re
MLS#:OM710299
Source:MFRMLS
Price summary
- Price:$599,000
- Price per sq. ft.:$304.68
About this home
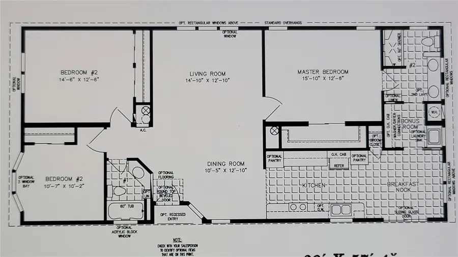
Super Rare riverfront property located directly on the crystal clear water of the Wekiva river run! This 2011 Jacobson home is like new as sellers used the property as a weekend getaway and family retreat. The 3.5 ton a/c was replaced in 2022 as well as the refrigerator and includes a brand new washer and dryer. Brand new roof just replaced this year! This is a custom built home made for a seaside customer with hurricane rated windows and doors. The home was assembled here on site in 2011 and is truly "overbuilt" for the area (Built to A Zone Specifications) and is 53' Long. 1545 Square foot with 3 beds and 2 baths with 9' ceilings, with all furnishings. The well pumps water from near the spring and is practically water bottle ready. The deep well has a water treatment system from the previous seller; including Hydrogen Peroxide injection just to be safe.
This is a truly one of a kind piece of property located north of CR. 326 just west of CR. 343 near Henry Beck Park. It's located on the Wekiva Spring Run. The Clear Blue Spring water stays at a constant 72 degrees and flows along the west property boundary in the back. This property has an astonishing 450 feet on Wekiva River with an older Dock and very high river bank. Driving is just 15 minutes to Bronson, 40 Minutes to Gainesville, 30 minutes to Ocala and Crystal River, 20 minutes to Dunnellon. Property has Underground Electric Service with pad mounted transformer from Central Florida Electric located on Property. The seller had the main power lined buried to the main connection site, and there is plenty of parking for rv's and guests. Significant Lime Rock Road constructed into Property. Circular Drive in and out of property to accommodate Motorhomes and Fifth Wheels. Improved paths throughout property. There is a lockable water-tight Connex container that conveys with the property that is 9' High Conex for safe storage of equipment or personal stuff. Property cleared selectively and well maintained to maintain Natural Environment. Fenced with front gate. The home is FULLY FURNISHED (minus a few personal items). This is a great get away or permanent home! There are about 20 deer that call this area home and frequently walk the property. There is not enough room here to express how beautiful and unique this riverfront property is. You must request a showing on this nearly 11 acre property today!!
Contact an agent
Home facts
- Year built:2011
- Listing ID #:OM710299
- Added:53 day(s) ago
- Updated:November 18, 2025 at 12:58 PM
Rooms and interior
- Bedrooms:3
- Total bathrooms:2
- Full bathrooms:2
- Living area:1,566 sq. ft.
Heating and cooling
- Cooling:Central Air
- Heating:Electric, Heat Pump
Structure and exterior
- Roof:Shingle
- Year built:2011
- Building area:1,566 sq. ft.
- Lot area:10.8 Acres
Utilities
- Water:Well
- Sewer:Septic Tank
Finances and disclosures
- Price:$599,000
- Price per sq. ft.:$304.68
- Tax amount:$5,954 (2024)
New listings near 3690 SE 54th Avenue
- New
$449,000Active2 beds 2 baths1,092 sq. ft.6550 SE 143rd Court, MORRISTON, FL 32668
MLS# OM713409Listed by: SHOWCASE PROPERTIES OF CENTRAL - New
$400,000Active3 beds 2 baths1,620 sq. ft.5150 SE 117 Avenue, MORRISTON, FL 32668
MLS# OM712938Listed by: HOMES TO RANCHES REALTY INC - New
$325,000Active10.26 AcresTBD SE 150th Avenue, MORRISTON, FL 32668
MLS# OM713212Listed by: HARRIETT DOWNS REAL ESTATE LLC - New
$385,000Active3 beds 2 baths1,404 sq. ft.12991 SE 77th Street, MORRISTON, FL 32668
MLS# O6357441Listed by: LP REALTY GROUP
$65,000Pending2 beds 2 baths1,216 sq. ft.3090 SE 109th Court, MORRISTON, FL 32668
MLS# OM712961Listed by: COLDWELL REALTY SOLD GUARANTEE
$2,499,000Active2 beds 3 baths2,400 sq. ft.4991 SE 212th Court, MORRISTON, FL 32668
MLS# OM712908Listed by: LOKATION
$875,000Active15.85 Acres19597 SE 70th Lane, MORRISTON, FL 32668
MLS# OM712740Listed by: GILTRAP GROUP REALTY LLC
$3,660,000Active7 beds 4 baths1,512 sq. ft.18800 SE 47th Place, MORRISTON, FL 32668
MLS# OM712721Listed by: PEGASUS REALTY & ASSOC INC
$850,000Active7 beds 6 baths2,734 sq. ft.7505 NW 137th Avenue, MORRISTON, FL 32668
MLS# OM712254Listed by: THE KEYES COMPANY
$2,275,000Active4 beds 2 baths2,514 sq. ft.15921 NW Highway 464b, MORRISTON, FL 32668
MLS# OM712057Listed by: OCALA HORSE PROPERTIES, LLC