6661 Desoto Street, Navarre, FL 32566
Local realty services provided by:ERA American Real Estate
6661 Desoto Street,Navarre, FL 32566
$416,990
- 4 Beds
- 2 Baths
- 2,249 sq. ft.
- Single family
- Pending
Listed by: trish lohela
Office: holiday builders of the gulf coast llc.
MLS#:996779
Source:FL_NABOR
Price summary
- Price:$416,990
- Price per sq. ft.:$185.41
About this home
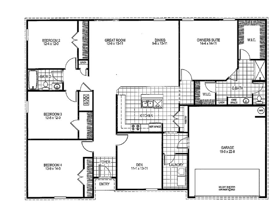
As you enter through the foyer, a den sits just off the entry, offering a flexible space that can serve as a home office, study area, or additional living room. Beyond the foyer, the layout opens into the heart of the home where the kitchen, dining area, and great room come together in one seamless space. The kitchen features a central island, a pantry, and clear sightlines into the dining and great room, making it easy to stay connected whether you are preparing meals or hosting friends. Just off the great room, a 10-by-8 outdoor living area extends your space outside for morning coffee or relaxed evenings. Three secondary bedrooms are located along one side of the home, sharing a full guest bath with a convenient linen closet. This wing provides privacy while keeping everyone close.
Contact an agent
Home facts
- Year built:2026
- Listing ID #:996779
- Added:51 day(s) ago
- Updated:April 18, 2026 at 07:16 AM
Rooms and interior
- Bedrooms:4
- Total bathrooms:2
- Full bathrooms:2
- Flooring:Floor Tile, Floor WW Carpet New
- Bathrooms Description:Shower Only, Tile, Walk-In Closet
- Kitchen Description:Dishwasher, Microwave, Stove/Oven Electric
- Bedroom Description:Carpeted, First Floor
- Living area:2,249 sq. ft.
Heating and cooling
- Cooling:Ridge Vent
Structure and exterior
- Year built:2026
- Building area:2,249 sq. ft.
- Lot area:0.45 Acres
- Architectural Style:Craftsman Style
- Construction Materials:Brick
- Exterior Features:Sprinkler System
- Levels:1 Story
Schools
- High school:Navarre
- Middle school:Eastbay K-8
- Elementary school:Eastbay K-8
Utilities
- Water:Public Water
- Sewer:Septic Tank
Finances and disclosures
- Price:$416,990
- Price per sq. ft.:$185.41
- Tax amount:$593 (2025)
Features and amenities
- Appliances:Stove/Oven Electric
- Amenities:Kitchen Island, Lighting Recessed, Owner's Closet, Pantry, Split Bedroom, Water Heater - Elect
Parking
- Parking description:Garage Attached
- Garage spaces:2
New listings near 6661 Desoto Street
- New
$475,000Active4 beds 2 baths2,167 sq. ft.7739 Ramona Drive, Navarre, FL 32566
MLS# 1001393Listed by: REALTY ONE GROUP EMERALD COAST - New
$365,000Active3 beds 2 baths1,681 sq. ft.7933 Skyview Boulevard, Navarre, FL 32566
MLS# 1000695Listed by: REALTY PRO GROUP LLC - New
$149,990Active3 beds 2 baths1,104 sq. ft.9028 Larker Woods Road, Navarre, FL 32566
MLS# 1001382Listed by: COLDWELL BANKER REALTY - New
$949,900Active2 beds 3 baths1,925 sq. ft.7937 White Sands Boulevard, Navarre, FL 32566
MLS# 1001386Listed by: LEVIN RINKE REALTY - New
$319,000Active3 beds 2 baths1,548 sq. ft.2549 Weeping Willow Lane, Navarre, FL 32566
MLS# 1001381Listed by: NAVARRE REAL ESTATE SOURCE - Open Sat, 11am to 1pmNew
$899,500Active5 beds 6 baths3,504 sq. ft.6808 Santa Clara Dr, Navarre, FL 32566
MLS# 681474Listed by: LEVIN RINKE REALTY - New
$1,232,400Active4 beds 3 baths3,160 sq. ft.6770 Tom King Bayou Road, Navarre, FL 32566
MLS# 1001336Listed by: KELLER WILLIAMS REALTY NAVARRE - New
$625,000Active5 beds 3 baths3,162 sq. ft.3531 Moonstone Drive, Navarre, FL 32566
MLS# 1001340Listed by: KELLER WILLIAMS REALTY NAVARRE - New
$379,900Active3 beds 2 baths1,614 sq. ft.9028 Quail Roost Drive, Navarre, FL 32566
MLS# 1001352Listed by: KELLER WILLIAMS REALTY NAVARRE - New
$85,000Active1.13 Acres9288 Timber Lane, Navarre, FL 32566
MLS# 1001305Listed by: REALTY SOLUTIONS NWF LLC.