10052 Sandbar Street, Orlando, FL 32825
Local realty services provided by:Countywide Properties ERA Powered
10052 Sandbar Street,Orlando, FL 32825
$415,000
- 3 Beds
- 2 Baths
- 1,599 sq. ft.
- Single family
- Active
Listed by: kathiuzka chiquito
Office: most trusted investments llc.
MLS#:A11992707
Source:SEFMLS
Price summary
- Price:$415,000
- Price per sq. ft.:$69.17
About this home
Beautiful one story single home with 3 bedrooms and 2 bathrooms, family room, dining room, florida room, den/office/library, fenced back yard with private passage hall to take out the trash can or for service entry for your future pool/barbeque area. You will love the home layout all rooms to the left side and the kitchen to the right to avoid food smell and noise. With enclosed porch for your late coffee time and deliveries, garden with a lot potencial if you love to do gardening. Laundry room, garage for 2 vehicles and 2 extra spaces driveway for 2 more vehicles total 4, and attic storage to keep your holidays stuff. New roof only 4 year old. Near to everything.
Contact an agent
Home facts
- Year built:1992
- Listing ID #:A11992707
- Updated:April 01, 2026 at 11:41 AM
Rooms and interior
- Bedrooms:3
- Total bathrooms:2
- Full bathrooms:2
- Flooring:Carpet
- Dining Description:Breakfast Area, Living/Dining Room
- Kitchen Description:Dishwasher, Kitchen Island, Refrigerator, Water Purifier
- Bedroom Description:Walk-In Closets
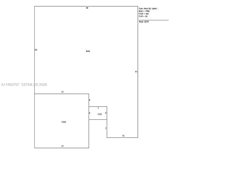
- Living area:1,599 sq. ft.
Heating and cooling
- Cooling:Ceiling Fans, Central Air
- Heating:Central
- Central air:Yes
Structure and exterior
- Roof:Shingle
- Year built:1992
- Building area:1,599 sq. ft.
- Architectural Style:Detached, One Story
- Construction Materials:Block, Stucco
- Exterior Features:Enclosed Porch, Fence, Patio, Porch, Screened, Wrap Around
- Levels:1 Story
Utilities
- Water:Public
- Sewer:Public Sewer
Finances and disclosures
- Price:$415,000
- Price per sq. ft.:$69.17
- Tax amount:$5,927 (2025)
Features and amenities
- Appliances:Dishwasher, Dryer, Electric Water Heater, Refrigerator, Solar Hot Water, Washer, Water Purifier
- Laundry features:Dryer, Dryer Hookup, Washer, Washer Hookup
- Amenities:Closet Cabinetry, Impact Glass Windows, Smoke Detectors, Vaulted Ceilings
Parking
- Parking description:Attached, Covered, Driveway, Garage, Garage Door Opener
- Garage:Yes
- Garage spaces:2
New listings near 10052 Sandbar Street
- New
$329,999Active3 beds 2 baths1,335 sq. ft.2614 Rio Lane, ORLANDO, FL 32805
MLS# O6393671Listed by: RESOURCE ONE REALTY - New
$445,900Active4 beds 2 baths2,020 sq. ft.5317 Deer Creek Drive, ORLANDO, FL 32821
MLS# O6395338Listed by: CASSA REALTY CORP - New
$650,000Active3 beds 3 baths1,782 sq. ft.722 Tucker Avenue, ORLANDO, FL 32807
MLS# O6395000Listed by: HOMEVEST REALTY - New
$4,400,000Active3 beds 3 baths3,007 sq. ft.4610 Oak Cove Lane, ORLANDO, FL 32806
MLS# O6395265Listed by: HOMEVEST REALTY - Open Sat, 11am to 1pmNew
$275,000Active3 beds 2 baths1,150 sq. ft.235 Story Partin Road, ORLANDO, FL 32833
MLS# O6395358Listed by: KELLER WILLIAMS ADVANTAGE 2 REALTY - New
$315,000Active2 beds 3 baths1,546 sq. ft.6001 Twain Street #106, ORLANDO, FL 32835
MLS# O6395360Listed by: LEGENDS REALTY - New
$449,999Active3 beds 3 baths1,932 sq. ft.9654 Cypress Pine Street, ORLANDO, FL 32827
MLS# S5146765Listed by: EMPIRE NETWORK REALTY - Open Sat, 1 to 3pmNew
$445,000Active4 beds 3 baths2,271 sq. ft.1656 Anna Catherine Drive, ORLANDO, FL 32828
MLS# O6394770Listed by: KELLER WILLIAMS ADVANTAGE 2 REALTY - New
$950,000Active4 beds 5 baths3,460 sq. ft.7972 Esta Lane, ORLANDO, FL 32827
MLS# O6394136Listed by: KELLER WILLIAMS ADVANTAGE III - New
$150,000Active1 beds 1 baths794 sq. ft.6340 Raleigh Street #1001, ORLANDO, FL 32835
MLS# O6394493Listed by: EXP REALTY LLC