13138 Paloma Drive, Orlando, FL 32837

Local realty services provided by:Bingham Realty ERA Powered
13138 Paloma Drive,Orlando, FL 32837
$604,900
  • 4 Beds
  • 3 Baths
  • 3,567 sq. ft.
  • Single family
  • Active
Listed by: joseph doher
Office: berkshire hathaway homeservices results realty
MLS#:O6352202
Source:MFRMLS

Price summary

  • Price:$604,900
  • Price per sq. ft.:$129.58
  • Monthly HOA dues:$35

About this home

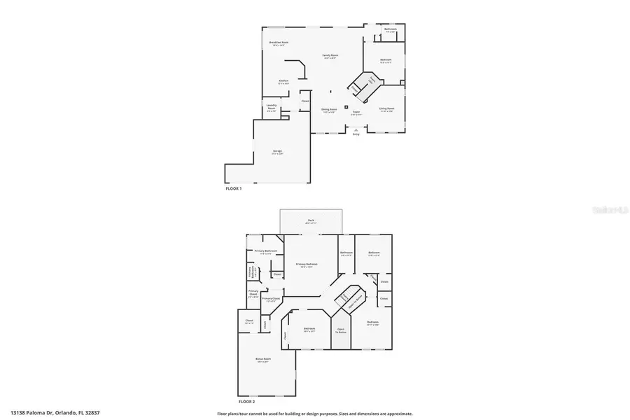
Welcome! This spacious pool home resides in the heart of Hunter’s Creek, minutes from modern conveniences, and ready for life’s everchanging needs. Boasting 3,567 square feet of versatile living space, with four bedrooms, three full bathrooms, and two bonus rooms that can easily be converted into additional bedrooms, there is no shortage of space to relax. Its expansive footprint allows for generously sized bedrooms, providing everyone with a charming retreat, especially the primary suite, which features a private balcony only accessible from the main bedroom, perfect for unwinding each day. The covered patio and in-ground pool serve as the centerpieces for outdoor entertainment and relaxation, perfect for cooling off during warm days or hosting gatherings with friends and family. Its location provides exceptional convenience with minutes to schools, medical facilities, and primary services covering all of your primary needs, while quick access to Publix and bustling shopping plazas

Contact an agent

contact an agent

Yes, I would like more information. Please use and/or share my information with an ERA®  affiliated agent to contact me about my real estate needs. By clicking Send message, I request to be contacted by phone or text message and consent to being contacted by automated means. I understand that my consent to receive calls or texts is not a condition of purchasing any property, goods, or services. Alternatively, I understand that I can access real estate services by email or I can contact the agent myself.

If an ERA®  affiliated agent is not available in the area where I need assistance, I agree to be contacted by a real estate agent affiliated with another brand owned or licensed by Anywhere Real Estate (BHGRE® , CENTURY 21® , Coldwell Banker® , Corcoran® , Sotheby's International Realty® ).
 I acknowledge that I have read and agree to theTerms of useandPrivacy notice

Home facts

  • Year built:2003
  • Listing ID #:O6352202
  • Added:129 day(s) ago
  • Updated:February 24, 2026 at 03:25 PM

Rooms and interior

  • Bedrooms:4
  • Total bathrooms:3
  • Full bathrooms:3
  • Living area:3,567 sq. ft.

Heating and cooling

  • Cooling:Central Air
  • Heating:Central, Electric

Structure and exterior

  • Roof:Shingle
  • Year built:2003
  • Building area:3,567 sq. ft.
  • Lot area:0.22 Acres

Schools

  • High school:Freedom High School
  • Middle school:Hunter's Creek Middle
  • Elementary school:West Creek Elem

Utilities

  • Water:Public, Water Connected
  • Sewer:Public Sewer

Finances and disclosures

  • Price:$604,900
  • Price per sq. ft.:$129.58
  • Tax amount:$5,203 (2024)
MLS LogoThe information being provided by Stellar Mls is for the consumer's personal, non-commercial use and may not be used for any purpose other than to identify prospective properties consumer may be interested in purchasing. Any information relating to real estate for sale referenced on this web site comes from the Internet Data Exchange (IDX) program of the Stellar Mls. Bingham Realty ERA Powered is not a Multiple Listing Service (MLS), nor does it offer MLS access. This website is a service of Bingham Realty ERA Powered, a broker participant of Stellar Mls. This web site may reference real estate listing(s) held by a brokerage firm other than the broker and/or agent who owns this web site. The accuracy of all information, regardless of source, including but not limited to open house information, square footages and lot sizes, is deemed reliable but not guaranteed and should be personally verified through personal inspection by and/or with the appropriate professionals. The data contained herein is copyrighted by Stellar Mls and is protected by all applicable copyright laws. Any unauthorized dissemination of this information is in violation of copyright laws and is strictly prohibited. Properties in listings may have been sold or may no longer be available. Copyright 2026 Stellar Mls. All rights reserved.