9604 Duflo Way, Orlando, FL 32827
Local realty services provided by:Gulf Shores Realty ERA Powered
Listed by: michelle trapp llanos
Office: ici select realty
MLS#:O6388757
Source:MFRMLS
Price summary
- Price:$1,972,039
- Price per sq. ft.:$313.97
- Monthly HOA dues:$178.33
About this home
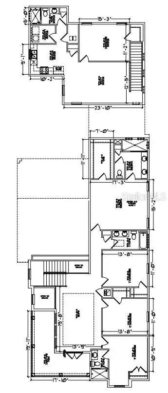
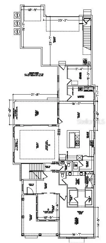
Welcome to The Fiji, a beautifully designed custom home offering over 4,700 square feet of thoughtfully crafted living space, where elegant design, flexible living areas, and inviting outdoor spaces come together to create a home that is perfect for both everyday comfort and memorable entertaining. With six bedrooms, five and a half baths, this residence offers generous room for family and guests while maintaining a layout that feels both open and intimate. Step inside the foyer and the home opens to a spacious main living area filled with natural light. Large windows and sliding glass doors lead to the covered lanai and private pool, seamlessly blending indoor and outdoor living and creating a true Florida retreat. At the heart of the home, the expansive living room flows into the deluxe kitchen and dining area, creating a beautifully connected open-concept space ideal for gatherings. The chef-inspired kitchen features premium appliances, a large center island, and a hidden pantry, offering both functionality and style. Just beyond, the dining area provides a warm setting for everyday meals or special occasions, while the lanai and pool area invite you to relax, entertain, and enjoy Florida’s year-round sunshine. The first-floor primary suite is privately tucked away and designed as a luxurious retreat, complete with dual walk-in closets and a spa-inspired bath featuring dual vanities and a walk-in shower. A nearby flex room adds versatility and can easily function as a home office, library, or additional guest room. Upstairs, the home continues to impress with a second primary suite, offering its own private retreat ideal for multigenerational living or long-term guests. Three additional bedrooms with two additional bathrooms, while a spacious game room creates the perfect space for movie nights, gaming, or relaxing with family and friends. From the second floor, step out onto the balcony overlooking the pond, where peaceful water views provide a beautiful backdrop for quiet mornings or evening relaxation. Adding even more flexibility is a private one-bedroom, one-bath apartment above the garage, complete with its own kitchen and laundry area. This separate living space is ideal for extended family, visiting guests, a private home office, or potential rental opportunities. This home is built by ICI Homes, one of Florida’s largest privately owned homebuilders with more than 40 years of experience crafting high-quality homes throughout the state. Known for their commitment to craftsmanship and customization, ICI Homes allows buyers to personalize floor plans and design features so their home truly reflects their lifestyle. Located in the highly desirable Laureate Park community in Lake Nona, residents enjoy an exceptional lifestyle surrounded by parks, scenic trails, lakes, and vibrant neighborhood gathering spaces. The community features an aquatic center, fitness facilities, tennis and basketball courts, playgrounds, dog parks, and miles of walking and biking trails, along with dining, shopping, and entertainment just minutes away. With close proximity to Medical City, Orlando International Airport, and major highways, Laureate Park offers both convenience and a true sense of community. Beautifully designed with flexible living spaces, stunning water views, and exceptional indoor-outdoor living, The Fiji offers a lifestyle as remarkable as the home itself....
Contact an agent
Home facts
- Year built:2026
- Listing ID #:O6388757
- Added:9 day(s) ago
- Updated:March 17, 2026 at 07:50 AM
Rooms and interior
- Bedrooms:6
- Total bathrooms:6
- Full bathrooms:5
- Half bathrooms:1
- Flooring:Luxury Vinyl, Tile
- Kitchen Description:Built-In Oven, Cooktop, Dishwasher, Disposal, Exhaust Fan, Microwave
- Living area:4,780 sq. ft.
Heating and cooling
- Cooling:Central Air
- Heating:Central, Electric, Exhaust Fan, Heat Pump
- Central air:Yes
Structure and exterior
- Roof:Shingle
- Year built:2026
- Building area:4,780 sq. ft.
- Lot area:0.22 Acres
- Construction Materials:Block, Cement Siding, Frame, Stucco
- Foundation Description:Slab
- Levels:2 Story
Schools
- High school:Lake Nona High
- Middle school:Lake Nona Middle School
- Elementary school:Laureate Park Elementary
Utilities
- Water:Public, Water Connected
- Sewer:Public Sewer, Sewer Connected
Finances and disclosures
- Price:$1,972,039
- Price per sq. ft.:$313.97
- Tax amount:$1,008 (2025)
Features and amenities
- Appliances:Built-in Oven, Cooktop, Dishwasher, Disposal, Electric Water Heater, Exhaust Fan, Irrigation Equipment, Microwave
- Laundry features:Inside
- Amenities:Cable Available, Crown Molding, Irrigation Equipment
- Pool features:In Ground, Private Pool
Parking
- Parking description:Attached Garage
- Garage:Yes
- Garage spaces:3
New listings near 9604 Duflo Way
- New
$820,000Active4 beds 3 baths2,369 sq. ft.4901 Chuluota Road, ORLANDO, FL 32820
MLS# O6391001Listed by: GLOBAL PROPERTIES SALES & MGMT - New
$175,000Active2 beds 2 baths1,000 sq. ft.3012 S Semoran Boulevard #G5, ORLANDO, FL 32822
MLS# O6391118Listed by: THE REALTY MEDICS - New
$549,900Active4 beds 3 baths2,447 sq. ft.10145 Armando Circle, ORLANDO, FL 32825
MLS# O6387396Listed by: MBA REALTY GROUP, INC - New
$509,000Active3 beds 4 baths2,126 sq. ft.52 W Harding Street #A, ORLANDO, FL 32806
MLS# O6391042Listed by: ALIGN REAL ESTATE LLC - New
$310,000Active2 beds 1 baths804 sq. ft.2617 E Washington Street, ORLANDO, FL 32803
MLS# O6391083Listed by: BHHS FLORIDA REALTY - New
$375,000Active4 beds 4 baths1,800 sq. ft.3243 & 3245 Split Willow Drive, ORLANDO, FL 32808
MLS# O6388991Listed by: DMIC INVESTMENTS LLC - New
$365,000Active3 beds 2 baths1,188 sq. ft.3916 Valencia Grove Lane, ORLANDO, FL 32817
MLS# O6390980Listed by: KELLER WILLIAMS ADVANTAGE REALTY - New
$645,000Active4 beds 4 baths2,908 sq. ft.9819 Brown Burrow Street, ORLANDO, FL 32829
MLS# O6390931Listed by: REAL BROKER, LLC - Open Sat, 11am to 2pmNew
$339,900Active3 beds 2 baths1,590 sq. ft.6929 Crescent Ridge Road, ORLANDO, FL 32810
MLS# O6390906Listed by: RE/MAX PRIME PROPERTIES - New
$255,000Active2 beds 2 baths1,065 sq. ft.4117 Fairview Vista Point #305, ORLANDO, FL 32804
MLS# O6390526Listed by: WEMERT GROUP REALTY LLC