410 Coastal Canopy Ln, Port Saint Joe, FL 32456
Local realty services provided by:ERA Neubauer Real Estate, Inc.
Listed by: mark miles
Office: dr horton realty of emerald coast, llc.
MLS#:326351
Source:FL_RAFGC
Price summary
- Price:$275,900
- Price per sq. ft.:$238.26
- Monthly HOA dues:$82.67
About this home
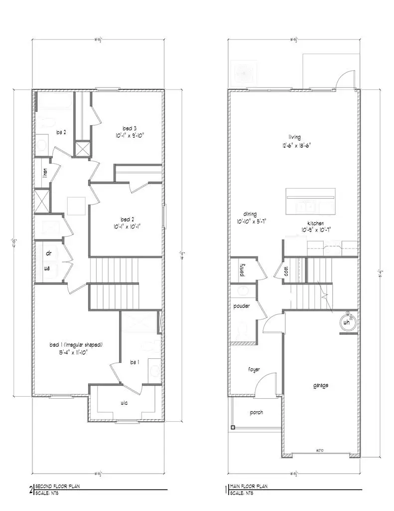
Welcome to the Alderbrook, a new home featured at Salt Pines in Port Saint Joe, Florida. The Alderbrook is a charming two-story home featuring 2 bedrooms, 2.5 bathrooms and offering 1,158 square feet of living space with a 1-car garage. The bottom floor features 9-foot ceilings and the upper level has 8-foot ceilings. This cozy home is perfect for the comfortable vibes that Port Saint Joe is known for. A front porch welcomes you into the home and opens to the kitchen which includes granite counters, quality cabinets, stainless steel appliances and an open concept floorplan. The bottom level also features a half-bathroom and pantry next to the kitchen and stairs. Upstairs, the primary bedroom has an attractive ensuite bathroom that features a granite vanity countertop and quality cabinetry. Enjoy additional storage with a spacious walk-in closet located off the primary bathroom. Your secondary bedroom features quality carpet flooring and a closet, and can be used as a bedroom, office, work out space or other bonus room. The possibilities are endless with the Alderbrook floor plan. Additional features include EVP flooring in entry, living room, and all wet areas with soft carpet in the bedrooms. There are granite counter tops in all bathrooms and kitchen as well as a Smart Home Technology package allowing one central hub that talks to all the devices in your home. You can control the lights, thermostat and locks, all from your cellular device. On the Exterior you will see quality vinyl siding, a covered front porch, and a patio in the back yard to enjoy the beautiful Florida weather. After a day of enjoying all that Port Saint Joe has to offer, enjoy a quiet neighborhood with friends and family in this cozy home. To learn more about the Alderbrook plan and about Salt Pines, get connected with us today by requesting more information, or stop by the community in person. We look forward to to telling you more about these lovely homes....
Contact an agent
Home facts
- Year built:2026
- Listing ID #:326351
- Added:51 day(s) ago
- Updated:April 04, 2026 at 02:53 PM
Rooms and interior
- Bedrooms:2
- Total bathrooms:3
- Full bathrooms:2
- Half bathrooms:1
- Flooring:Carpet
- Bathrooms Description:Garden Tub, Separate Shower
- Kitchen Description:Dishwasher, Disposal, Exhaust Fan, Microwave, Pantry, Range Hood
- Living area:1,158 sq. ft.
Heating and cooling
- Central air:Yes
Structure and exterior
- Roof:Shingle
- Year built:2026
- Building area:1,158 sq. ft.
- Lot area:0.06 Acres
- Lot Features:Sidewalks
- Architectural Style:2+ Story, Craftsman
- Construction Materials:Frame, HardiPlank Type
- Exterior Features:Landscaped
- Foundation Description:Slab
- Levels:2 Story
Utilities
- Water:Public, Water Available
- Sewer:Public Sewer, Sewer Available
Finances and disclosures
- Price:$275,900
- Price per sq. ft.:$238.26
Features and amenities
- Laundry features:Washer/Dryer Hookup
- Amenities:Computer Controlled Security System, Fire Alarm/Sprinkler System, Pantry, Security System, Smoke Detector, Washer/Dryer Hookup
- Smart home:Yes
Parking
- Total parking spaces:2
- Parking description:Driveway, Garage Attached
New listings near 410 Coastal Canopy Ln
- New
$149,000Active0.19 Acres521 9th St, Port St. Joe, FL 32456
MLS# 327944Listed by: BEMAJOR GULF COAST REALTY - New
$279,900Active3 beds 2 baths651 sq. ft.1404 Long Ave, Port St. Joe, FL 32456
MLS# 327943Listed by: BEACH REALTY OF CAPE SAN BLAS, INC. - New
$1,145,000Active4 beds 3 baths2,501 sq. ft.2291 Sr 30-a, Port St. Joe, FL 32456
MLS# 327941Listed by: NAUMANN GROUP REAL ESTATE, INC. - SGI - New
$1,290,000Active5 beds 3 baths2,648 sq. ft.108 Seagrass Cir, Port St. Joe, FL 32456
MLS# 327934Listed by: BAY PROPERTIES REAL ESTATE GROUP, LLC - New
$1,690,000Active4 beds 5 baths3,438 sq. ft.434 Windmark Way, Port St. Joe, FL 32456
MLS# 327922Listed by: 98 REAL ESTATE GROUP, LLC - New
$507,000Active4 beds 3 baths2,134 sq. ft.850 Backwater Rd, Port St. Joe, FL 32456
MLS# 327923Listed by: BEACH REALTY OF CAPE SAN BLAS, INC. - BRANCH - New
$1,192,960Active0.6 Acres6287 Cape San Blas Road, Port St Joe, FL 32456
MLS# 787806Listed by: RISH REAL ESTATE GROUP - New
$549,000Active3 beds 3 baths2,215 sq. ft.208 Sixteenth Street, Port St Joe, FL 32456
MLS# 787807Listed by: REAL BROKER LLC - New
$749,000Active4 beds 2 baths2,048 sq. ft.248 Ponce De Leon St, Port St. Joe, FL 32456
MLS# 327909Listed by: REAL BROKER LLC - New
$189,900Active0.53 Acres120 Chapel Ln, Port St. Joe, FL 32456
MLS# 327908Listed by: 98 REAL ESTATE GROUP, LLC