7045 N Tamiami Trail #101-, Sarasota, FL 34243
Local realty services provided by:Gulf Shores Realty ERA Powered
Listed by: richard tyson
Office: preferred shore llc.
MLS#:A4688488
Source:MFRMLS
Price summary
- Price:$555,885
- Price per sq. ft.:$495.88
About this home
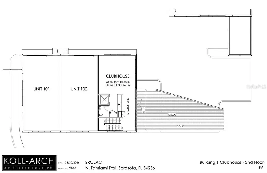
Pre-Construction. To be built. Unit 101: Experience a new level of automotive luxury at The Motor Enclave Sarasota, where a limited collection of just 59 customizable private garage residences has been thoughtfully designed for discerning car enthusiasts. These units range from approximately 796 to nearly 3,336 square feet, offering exceptional flexibility to create a space that reflects both your collection and your lifestyle. Located within a secure, gated campus in a prime setting just west of I-75 and minutes from SRQ Airport, the property is ideally positioned only 6 miles from downtown Sarasota, approximately 10 miles south of the end of Lido Key, 15 miles to the south end of Siesta Key, and just 15 miles to Anna Maria Island—placing world-class dining, beaches, and entertainment all within easy reach. Each private garage is purpose-built for collectors who value both functionality and sophistication, featuring impressive 24-foot clear ceiling heights ideal for vehicle lifts, oversized vehicles, and multi-level displays. The construction is second to none, with a robust tilt-wall design, hurricane-rated specifications, and a reinforced 6-inch foundation that ensures durability and peace of mind. Each unit is also equipped with plumbing, allowing owners to easily incorporate kitchens, bathrooms, or fully customized build-outs tailored to their vision. Owners enjoy a suite of premium features, including full roof-mounted HVAC systems, garage doors up to 16 feet tall, county-approved full mezzanine build-outs, optional balconies and patios for elevated entertaining, and available gas rooftop generators for added resilience. In addition, a private onsite clubhouse offers an exclusive space for unit owners to entertain guests and socialize within the community. Whether showcasing an exotic collection, creating a private lounge, or designing a multi-functional automotive retreat, these luxury garage condos offer a rare opportunity to own a truly unique space in one of Florida’s most desirable markets....
Contact an agent
Home facts
- Year built:2026
- Listing ID #:A4688488
- Added:50 day(s) ago
- Updated:May 23, 2026 at 01:46 PM
Rooms and interior
- Total bathrooms:1
- Full bathrooms:1
- Flooring:Concrete
- Bedroom Description:High Ceilings
- Living area:1,121 sq. ft.
Heating and cooling
- Cooling:Central Air
- Heating:Electric
- Central air:Yes
Structure and exterior
- Roof:Membrane
- Year built:2026
- Building area:1,121 sq. ft.
- Lot area:7.07 Acres
- Construction Materials:Concrete
- Foundation Description:Slab
- Levels:1 Story
Utilities
- Water:Public
- Sewer:Public Sewer
Finances and disclosures
- Price:$555,885
- Price per sq. ft.:$495.88
Features and amenities
- Amenities:High Ceilings, Natural Gas Connected
- Pool features:Public Pool
New listings near 7045 N Tamiami Trail #101-
- New
$529,800Active3 beds 3 baths2,248 sq. ft.3140 Espanola Drive, SARASOTA, FL 34239
MLS# A4694405Listed by: COLDWELL BANKER REALTY - Open Sun, 1 to 4pmNew
$899,000Active4 beds 3 baths3,147 sq. ft.3424 Tanglewood Drive, SARASOTA, FL 34239
MLS# A4694194Listed by: PREMIER SOTHEBY'S INTERNATIONAL REALTY - New
$499,000Active2 beds 2 baths1,570 sq. ft.4820 Kestral Park Circle #18, SARASOTA, FL 34231
MLS# A4694438Listed by: MICHAEL SAUNDERS & COMPANY - New
$629,000Active3 beds 2 baths2,040 sq. ft.1475 Landings Circle #43, SARASOTA, FL 34231
MLS# A4694471Listed by: MICHAEL SAUNDERS & COMPANY - New
$369,900Active2 beds 2 baths1,224 sq. ft.2822 Safe Harbor Circle, SARASOTA, FL 34231
MLS# A4694591Listed by: DEBBIE HERING REALTY & ASSOC. - New
$2,850,000Active0.59 Acres0 Roberts Point Road, SARASOTA, FL 34242
MLS# A4694385Listed by: DOUGLAS ELLIMAN - New
$159,500Active2 beds 2 baths864 sq. ft.5221 Beechmont Avenue, SARASOTA, FL 34234
MLS# A4694538Listed by: EXIT KING REALTY - New
$450,000Active3 beds 3 baths1,837 sq. ft.3644 Tin Cup Boulevard, SARASOTA, FL 34232
MLS# A4694311Listed by: KELLER WILLIAMS ON THE WATER S - New
$4,950,000Active0.53 Acres1122 Crescent Street, SARASOTA, FL 34242
MLS# A4694114Listed by: KONA REALTY - New
$189,900Active1 beds 1 baths822 sq. ft.1000 Villagio Circle #106, SARASOTA, FL 34237
MLS# A4694275Listed by: ROSEBAY INTERNATIONAL REALTY, INC